Diese charmante und klassische Kaffeemühle steht zu allen Seiten frei und ist von einem großzügigen, eingewachsenen und besonders sonnigen Garten umgeben. Die Räume sind lichtdurchflutet und der gute Grundriss ermöglicht auf allen Ebenen vielfältige Raumkonzepte. Für die Sanierung des Hauses liegt bereits eine besonders schöne Planung vor, mit der sehr attraktive Erweiterungsmöglichkeiten geschaffen werden. Die vorbereitenden Abrissarbeiten sind schon erfolgt und eine Baugenehmigung auf Basis dieses Konzeptes liegt vor, so dass Sie als zukünftiger Eigentümer unmittelbar mit der Umsetzung und dem Bau Ihres neuen Zuhauses beginnen können. Eine Kostenschätzung liegt ebenfalls vor und der Architekt des aktuellen Konzeptes steht gern für Fragen zur Planung und Umsetzung zur Verfügung. Selbstverständlich ist diese Variante nicht bindend, das Haus bietet zahlreiche Möglichkeiten, Ihre eigenen Ideen umzusetzen.
Traumhaus - Kaffeemühle mit großem, sonnigen Grundstück & attraktiver Erweiterungsmöglichkeit
Kirschenstieg 1,
22297 Hamburg
Auf Karte anzeigen
Finanzierungszertifikat
In nur zwei Minuten zu Ihrem persönlichen Finanzierungszertifkat.
Infos
| Haustyp | Einfamilienhaus |
|---|---|
| Etagenzahl | 2 |
| Wohnfläche ca. | 272 m2 |
| Grundstücksfläche | 914 m2 |
| Bezugsfrei ab | ab sofort |
| Zimmer | 6 |
| Schlafzimmer | 4 |
| Badezimmer | 1 |
| Garage/Stellplatz | Garage |
Kosten
| Kaufpreis |
1.695.000 € |
|---|---|
| Provision |
3 % vom Kaufpreis inkl. MwSt I jeweils für den Käufer und Verkäufer |
Finanzierungsrechner:
Kaufpreis:
600.000 €
Eigenkapital:
600.000 €
Monatliche Rate
0 €
Effektiver Jahreszins
0 %
Sollzinsbindung
10 Jahre
Bausubstanz & Energieausweis
| Baujahr | 1932 |
|---|---|
| Objektzustand | Renovierungsbedürftig |
| Qualität der Austattung | Normal |
| Energieausweis | liegt vor |
| Energieausweistyp | Bedarfsausweis |
| Energieverbrauchskennwert | 253,9 kWh/(m²*a) |
| Energieeffizienzklasse | H |
253,9
kWh/(m²*a)
Energieeffizienzklasse H
- A+
- A
- B
- C
- D
- E
- F
- G
- H
- 0
- 25
- 50
- 75
- 100
- 125
- 150
- 175
- 200
- 225
- >250
Beschreibung des Objekts
Lage
Der Kirschenstieg liegt im beliebten Alsterdorf, einem Stadtteil, der mit zahlreichen Schulen und Kindergärten, Geschäften für den den täglichen Bedarf und der Anbindung an den öffentlichen Nahverkehr eine attraktive und gewachsene Infrastruktur bietet.
Sonstige Angaben
Wir würden uns freuen, Sie auf dem Weg zu Ihrem neuen Zuhause begleiten und Ihnen dieses besondere Haus bald vorstellen zu können.
Herzlichst
Gesine Nennecke & Jessica Widenmann
Weitere Dokumente
E-Ausweis Kirschenstieg 1,Flurkarte Kirschenstieg 1
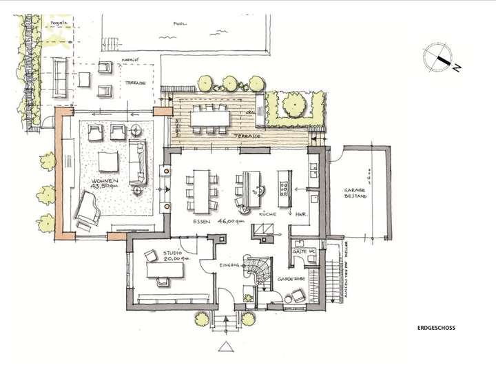
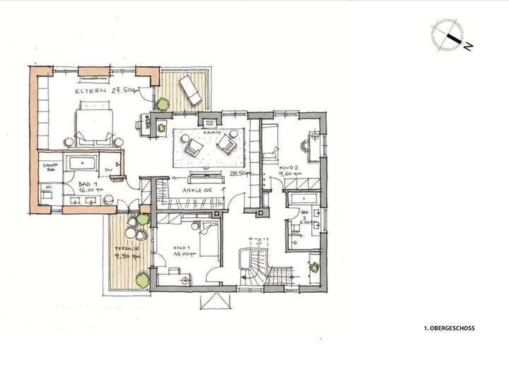
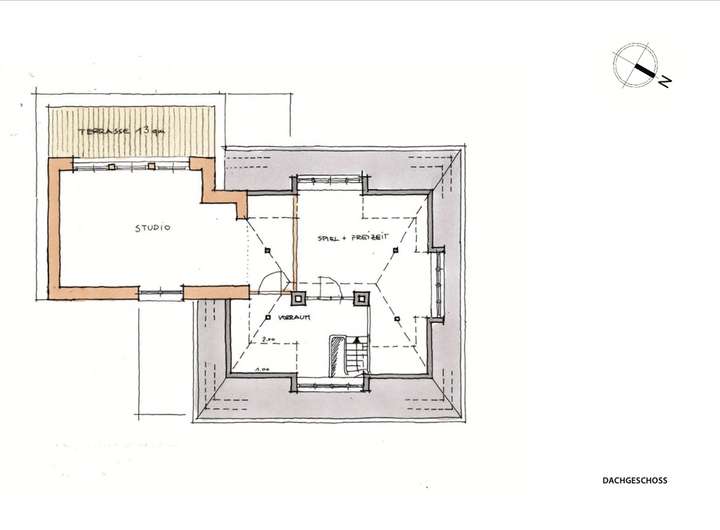
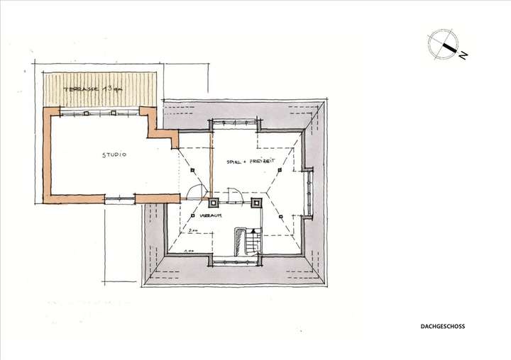
Grundriss
Pläne
>
>
Ansicht Original
>
>
Plan zur Erweiterung
>
>
Plan zur Erweiterung
>
>
Plan zur Erweiterung
>
>
Plan zur Erweiterung
>
PDF
Download
>
PDF Download
PDF Download
PDF Download
Adresse
Kirschenstieg 1, 22297 Hamburg
Interessante Orte
Preis- und Lageinformationen
Preistrend für Bestandsimmobilien in Alsterdorf