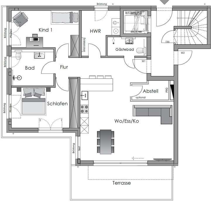
Die Wohnung W1 überzeugt mit einem praktischen, offenen und lichtdurchfluteten Grundriss:
Wohn-/Ess-/Küchenbereich:
Der großzügige offene Raum vereint Wohnen, Essen und Kochen in einem fließenden Layout. Die Küche liegt elegant integriert am Rand des Raums, während der Essbereich zentral positioniert ist. Große Fensterfronten öffnen sich direkt zur Südwest-Terrasse, die in den eigenen Garten führt – ideal für Sonne am Nachmittag und entspannte Abende.
Schlafzimmer:
Direkt neben dem Wohnbereich befindet sich das Schlafzimmer mit Blick und Zugang zum Garten, sodass viel Tageslicht hineinströmt und ein privater Rückzugsort entsteht.
Kinder-/Arbeitszimmer:
Ein separates Zimmer bietet Platz für ein Kinderzimmer, ein Homeoffice oder ein Ausweichzimmer – flexibel nutzbar je nach Lebenssituation.
Badezimmer:
Das Hauptbad ist mit bodengleicher Dusche, WC und Waschtisch hochwertig ausgestattet. Zusätzlich gibt es ein Gäste-WC für Besucher.
Hauswirtschaftsraum (HWR):
Praktischer Abstell- und Technikraum für Waschmaschine, Trockner und Lagerfläche.
Abstellraum:
Optional nutzbarer Raum für Vorräte oder Haushaltsgeräte.
Flur:
Verteilt die Zimmer optimal, sodass Privatsphäre und kurze Wege garantiert sind.
Terrasse & Garten:
Südwest-Terrasse direkt vom Wohn-/Essbereich zugänglich, mit direktem Zugang zum Garten. Perfekt für sonnige Nachmittage, Grillabende oder Kinder zum Spielen.
Die Wohnung ist optimal für Paare, kleine Familien oder Alleinstehende, die ein zusätzliches Ausweichzimmer benötigen und Wert auf offene Räume, Tageslicht und naturnahes Wohnen legen.
Finanzierungszertifikat
In nur zwei Minuten zu Ihrem persönlichen Finanzierungszertifkat.
Infos
| Wohnungskategorie | Erdgeschosswohnung |
|---|---|
| Etage | 0 von 2 |
| Wohnfläche ca. | 101 m2 |
| Bezugsfrei ab | 2027 |
| Zimmer | 3 |
| Schlafzimmer | 2 |
| Badezimmer | 2 |
| Garage/Stellplatz | Außenstellplatz |
| Anzahl Garage/Stellplatz | 1 |
Kosten
| Kaufpreis |
461.500 € |
|---|---|
| Preis für Garage/Stellplatz | 10.000 € |
| Provision | Nein |
Finanzierungsrechner:
Kaufpreis:
600.000 €
Eigenkapital:
600.000 €
Monatliche Rate
0 €
Effektiver Jahreszins
0 %
Sollzinsbindung
10 Jahre
Bausubstanz & Energieausweis
| Baujahr | 2026 |
|---|---|
| Objektzustand | Erstbezug |
| Qualität der Austattung | Gehoben |
| Heizungsart | Wärmepumpe |
| Wesentliche Energieträger | Strom |
| Energieausweis | liegt vor |
| Energieausweistyp | Bedarfsausweis |
| Energieverbrauchskennwert | 19,9 kWh/(m²*a) |
| Energieeffizienzklasse | A+ |
19,9
kWh/(m²*a)
Energieeffizienzklasse A+
- A+
- A
- B
- C
- D
- E
- F
- G
- H
- 0
- 25
- 50
- 75
- 100
- 125
- 150
- 175
- 200
- 225
- >250
Beschreibung des Objekts
Ausstattung
Massivbauweise mit Kalksandstein und Wärmedämmverbundsystem (16 cm, WLG 032)
Dreifach verglaste Kunststoff-/Alufenster, außen grau, innen weiß
Elektrische Rollläden bzw. Raffstores
Effiziente Luft/Wasser-Wärmepumpe (Bosch Compress Serie) Fußbodenheizung in allen Räumen
Hochwertige Innen- und Wohnungseingangstüren (weiß, Edelstahl-Drücker)
Großformatige Feinsteinzeugfliesen (60 × 60 cm) in Küche, Bäder, Flure und Abstellräume
Bodengleiche Dusche mit Edelstahl-Duschrinne
Sanitärausstattung von Diana und Hansgrohe, spülrandlose WCs, moderne Waschtische
Glasfaseranschluss, CAT7-Verkabelung
Balkon/Terrasse mit Keramikplatten 60 × 60 cm
Natursteinfensterbänke innen & außen
Energieeffizienter Neubau gemäß GEG, nachhaltige Heiztechnik, hochwertige Materialien und moderne Architektur – ideal für Käufer, die Wert auf Qualität, Komfort und Energieeinsparung legen.
Lage
Die Neubauwohnungen befinden sich in Limburg-Linter, einer attraktiven und ruhigen Gemeinde im Herzen von Hessen. Die Lage vereint ländliche Ruhe mit guter Infrastruktur:
Zentrale Anbindung: Nur wenige Minuten zur B8 und A3 – schnelle Verbindung nach Limburg, Gießen oder Frankfurt
Nahversorgung: Supermärkte, Apotheken, Bäcker und Restaurants bequem erreichbar auch zu Fuß
Bildung & Betreuung: Kindergärten, Grundschule und weiterführende Schulen in unmittelbarer Nähe
Freizeit & Natur: Zahlreiche Rad- und Wanderwege, Naherholungsgebiete und Spielplätze in der Umgebung
ÖPNV: Bushaltestellen in fußläufiger Entfernung, gute Anbindung an den Bahnhof Limburg
Die Lage bietet hohe Lebensqualität für Familien, Paare und Pendler, die Wert auf eine ruhige Wohnumgebung mit kurzen Wegen in die Stadt legen.
Weitere Dokumente
W1 2025-08-08FFP 2025-07-31
KG 2025-07-11
Grundriss
2025-07-11 Grundriss W1
>
>
Adresse
Alte Str. 11, 65550 Limburg an der Lahn
Interessante Orte
Preis- und Lageinformationen
Preistrend für Bestandsimmobilien in Limburg an der Lahn