Auf diesem Grundstück können lt B-Plan 2 MFH, oder 2 DHH gebaut werden.
Wir haben eine Beispiel-Planung, die natürlich nach Ihren Wünschen angepasst und optimiert werden kann!
1. MFH 13 m * 15 m, 2,5 geschossig = 460 m² Wohnfläche
2. MFH 10 m * 13 m, 2,5 geschossig = 343 m² Wohnfläche
ges.: 803 m² Wohnfläche
Der durchschnittliche Mietpreis in Velbert liegt bei 8,62 €/m² * 803 m² = 6921,86 € / Mo
83.062,- pro Jahr, bei Neubau natürlich mit Optimierungspotenzial!
Alternative Planungsidee:
Grundstück teilen als 2 Projekte.
Grundstücksfläche gesamt: 1.039 m² (Flur 11, Flurstücke 371, 392, 393)
Kaufpreis Grundstück gesamt: 350.000,- € (Gebote erwünscht)
Bodenrichtwert (BRW): 320,- €/m²
INVESTITIONSCHANCE VELBERT-MITTE
Exklusives Mehrfamilienhaus-Projekt mit 10 Wohneinheiten
________________________________________
OBJEKTBESCHREIBUNG
Grundstück, 42551 Velbert
Zentrale Lage mit hervorragendem Entwicklungspotenzial
Wir präsentieren Ihnen eine außergewöhnliche Investitionsgelegenheit in bester Lage von Velbert-Mitte: Ein vollständig erschlossenes Baugrundstück mit 1.039 m² Gesamtfläche, auf dem gemäß B-Plan zwei moderne Mehrfamilienhäuser mit insgesamt 10 Wohneinheiten und 803 m² Wohnfläche realisiert werden können.
Es handelt sich hier nur um ein Beispiel, eine genaue Planung kann Ihnen ein Architekt erstellen!
IHRE INVESTITIONSVORTEILE AUF EINEN BLICK:
✓ Erstklassige Zentrumslage – Optimale Infrastruktur, höchste Vermietungssicherheit
✓ Genehmigungsfähige Planung – Bebauungsplan 671.2 ermöglicht WA III, GRZ 0,4, GFZ 1,2
✓ Maximale Flexibilität – Zwei unabhängige Mehrfamilienhäuser für optimierte Vermietung
✓ Attraktive Fördermöglichkeiten – Bis zu 35% Tilgungsnachlass durch NRW-Wohnraumförderung
✓ Solide Renditeerwartung – Kalkulierte Eigenkapitalrendite über 7% p.a.
✓ Professionelle Baupartnerschaft – ScanHaus Marlow als erfahrener Mehrfamilienhauspartner
________________________________________
Beispiel PROJEKTPLANUNG - ZWEI MODERNE MEHRFAMILIENHÄUSER
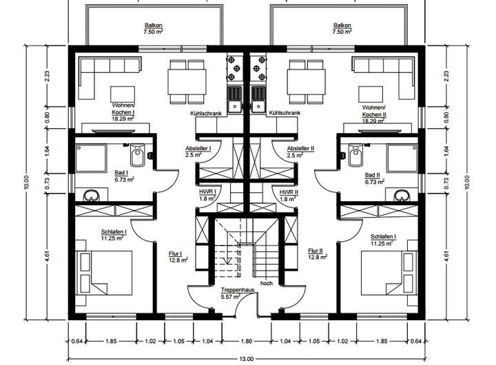
Mehrfamilienhaus 1 (Flurstück 392)
• Grundfläche: 13 m × 15 m
• 2,5 Geschosse mit Satteldach
• 6 Wohneinheiten
• 460 m² Wohnfläche
• Moderne, barrierefreie Planung nach KfW-EH 40 Standard
Mehrfamilienhaus 2 (Flurstück 393)
• Grundfläche: 10 m × 13 m
• 2,5 Geschosse mit Satteldach
• 4 Wohneinheiten
• 343 m² Wohnfläche
• Energieeffiziente Fertighaus-Bauweise
Stellplätze (Flurstück 371)
• Separate Parzelle (200 m²)
• 10 Stellplätze gemäß Stellplatzschlüssel 1:1
• Optional: Carports oder überdachte Stellplätze
________________________________________
Beispiel INVESTITIONSRECHNUNG GESAMTPROJEKT
KAUFPREIS & BAUKOSTEN
Position
Grundstück gesamt (1.039 m²) 350.000 €
Mehrfamilienhaus 1 (6 WE, 460 m²) 480.000 €
Mehrfamilienhaus 2 (4 WE, 343 m²) 410.000 €
Stellplätze & Außenanlagen 35.000 €
Baunebenkosten (8%) 74.000 €
Notar & Grunderwerbsteuer (8,5%) 29.750 €
GESAMTINVESTITION 1.378.750 €
FINANZIERUNG MIT NRW-WOHNRAUMFÖRDERUNG
Bei Inanspruchnahme der öffentlichen Wohnraumförderung NRW:
Fördervariante Details
Förderfähige Wohnfläche 803 m²
Grunddarlehen (ca. 3.100 €/m²) 2.489.300 €
Tilgungsnachlass 30% -746.790 €
Effektive Baukosten nach Förderung ca. 1.143.210 €
Förderersparnis ca. 235.540 €
Hinweis: Bei Förderung entstehen Mietpreis- und Belegungsbindungen für 30 Jahre
________________________________________
Beispiel RENDITEBERECHNUNG
MIETEINNAHMEN (JÄHRLICH)
Berechnung Betrag
Wohnfläche gesamt 803 m²
Ø Neubau-Miete Velbert 10,50 €/m²
Brutto-Jahresmiete 101.178 €
Stellplätze (10 × 40 €/Monat) 4.800 €
Gesamteinnahmen p.a. 105.978 €
AUSGABEN (JÄHRLICH)
Position Betrag
Verwaltung (3%) -3.179 €
Instandhaltung (0,80 €/m²/Monat) -7.709 €
Mietausfallwagnis (2%) -2.120 €
Grundsteuer & Versicherung -3.500 €
Summe Ausgaben -16.508 €
Netto-Jahresüberschuss 89.470 €
FINANZIERUNG (BEISPIELRECHNUNG OHNE F
Kapitalanlage der Extraklasse: Projektentwicklung von 10 Wohneinheiten in Velbert-Mitte, 2 MFH
42551 Velbert
Die vollständige Adresse der Immobilie erhalten Sie vom Anbieter.
Auf Karte anzeigen
Die vollständige Adresse der Immobilie erhalten Sie vom Anbieter.
Finanzierungszertifikat
In nur zwei Minuten zu Ihrem persönlichen Finanzierungszertifkat.
Infos
| Vermarktungsart | Kaufen |
|---|---|
| Grundstücksfläche | 1.039 m2 |
| Grundflächenzahl (GRZ) | 0.4 |
| Geschossflächenzahl (GFZ) | 1.2 |
| Bebaubar nach | Bebauungsplan |
Kosten
| Miete pro Jahr |
350.000 € |
|---|---|
| Provision |
4,76% Alle Angaben sind ohne Gewähr und basieren ausschließlich auf Informationen, die uns von unserem Auftraggeber übermittelt wurden. Wir übernehmen keine Gewähr für die Vollständigkeit, Richtigkeit und Aktualität dieser Angaben. Es fällt bei notarieller Beurkundung eine Käuferprovision i.H.v. 4,76% inkl. MwSt. an. |
Finanzierungsrechner:
Kaufpreis:
600.000 €
Eigenkapital:
600.000 €
Monatliche Rate
0 €
Effektiver Jahreszins
0 %
Sollzinsbindung
10 Jahre
Beschreibung des Objekts
Lage
Zentral in Velbert gelegen, bietet dieses Grundstück eine hervorragende Kombination aus urbanem Lebensstil und naturnaher Umgebung. Die zentrale Lage ermöglicht es Ihnen, alle Annehmlichkeiten des täglichen Bedarfs bequem zu Fuß oder mit dem Fahrrad zu erreichen. Einkaufsmöglichkeiten, Restaurants, Schulen und öffentliche Verkehrsmittel sind in unmittelbarer Nähe und tragen zu einer hohen Lebensqualität bei.
Die gute Anbindung an das Verkehrsnetz sorgt dafür, dass Sie schnell in die umliegenden Städte gelangen und die Vorzüge der Region genießen können. Ob für Familien, Paare oder Investoren – die Lage dieses Grundstücks in Velbert ist ideal für vielfältige Nutzungsmöglichkeiten.
Umgeben von einer freundlichen Nachbarschaft und grünen Flächen, bietet dieses Grundstück nicht nur eine attraktive Investitionsmöglichkeit, sondern auch ein ideales Zuhause für Ihre Zukunft. Lassen Sie sich von der Lage und den Möglichkeiten inspirieren!
Sonstige Angaben
Alle Angaben sind ohne Gewähr und basieren ausschließlich auf Informationen, die uns von unserem Auftraggeber übermittelt wurden. Wir übernehmen keine Gewähr für die Vollständigkeit, Richtigkeit und Aktualität dieser Angaben.
Es fällt bei notarieller Beurkundung eine Käuferprovision i.H.v. 4,76% inkl. MwSt. an.
Sie wollen selbst eine Immobilie verkaufen? Wir erstellen für Sie eine realistische Wertermittlung Ihrer Immobilie und stimmen unser Vermarktungskonzept individuell auf Sie ab.
Sie wollen selbst nicht verkaufen und kennen jemanden, der verkaufen möchte? Profitieren Sie von unserem Tippgebermodell:
https://www.immobye.de/ueber-uns/tippgeber/