Auf diesem Grundstück kann lt B-Plan ein MFH gebaut werden.
Wir haben eine Beispiel-Planung erstellt, die natürlich nach Ihren Wünschen angepasst und optimiert werden kann!
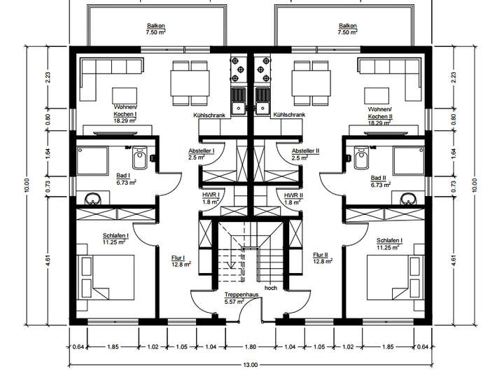
MFH 10 m * 13 m, 2,5 geschossig = 343 m² Wohnfläche 4-6 WE
Das angebotene Grundstück liegt in zentraler Lage in Velbert-Mitte.
Eine Bebauung muss mittels Bauvoranfrage durch den Käufer geprüft werden,
Architekt kann vermittelt werden.
Preise sind Verhandlungsbasis!
es handelt sich um 2 Teil-Grundstücke, die natürlich auch zusammen gekauft werden können, hier wird ein Grundstück angeboten:
Flur 11,
Flurstück 393, = 344 m², Preis= 157.000,-€
WA III, GRZ 0,4, GFZ 1,2
Bebauungsplan online 671.2
Bebauungsplan Nr. 671.1
§ 30 BauGB
§ 1a Abs.3 Satz 5 BauGB
Objekt: Baugrundstück in Velbert
Grundstücksgröße: 344 m²
Grundstückspreis: 157.000 €
Bauvorschlag: Mehrfamilienhaus von Scanhaus (4 WE, 343 m² WF)
Kompakt, lukrativ und sofort umsetzbar – Das ideale Einsteiger-Investment
Dieses klar abgegrenzte, hintere Baugrundstück ist die perfekte Möglichkeit für Kapitalanleger, die mit einer überschaubaren Investition in den lukrativen Mietwohnungsmarkt von Velbert einsteigen möchten. Bauen Sie das effiziente 4-Familienhaus von Scanhaus. (natürlich können Sie auch Ihren eigenen Haushersteller nehmen)
Das MFH "Velbert" im Überblick:
4 helle und moderne Wohneinheiten auf 2,5 Etagen
343 m² Wohnfläche
Zeitgemäße Ausstattung: Wärmepumpe, kontrollierte Lüftung, Fußbodenheizung
KfW 40 EE Standard für minimale Energiekosten
Inklusive Planung für 4 Stellplätze
Wirtschaftlichkeit & Rendite (Einzelgrundstück 393):
Beschreibung Ohne Förderung Mit Förderung (Sozialer Wohnungsbau)
Gesamtinvestition (ca.) 567.000 € (396.900 €)
- Grundstück 157.000 € (157.000 €)
- Baukosten (MFH) 410.000 € (410.000 €)
- abzgl. Tilgungszuschuss (30%) 0 € -170.100 €
Mietertrag p.a. (netto kalt) 35.480 € 28.384 € (angepasste Miete)
Rendite (Cashflow) ca. 6,3 % ca. 7,2 %
Perfekt für Anleger, die auf eine langfristige, krisensichere Wertentwicklung setzen. Das geförderte Modell bietet eine hervorragende Rendite bei geringerem Eigenkapitaleinsatz.
Die Chance:
Das Grundstück ist sofort bebaubar. Durch die Zusammenarbeit mit Scanhaus erhalten Sie ein schlüsselfertiges Haus aus einer Hand, ohne Baurisiko. Nutzen Sie die staatliche Förderung für den sozialen Wohnungsbau, um Ihre Investitionskosten signifikant zu senken.
Baugrundstück in Velbert mit Vorschlag Projektierung MFH
42551 Velbert
Die vollständige Adresse der Immobilie erhalten Sie vom Anbieter.
Auf Karte anzeigen
Die vollständige Adresse der Immobilie erhalten Sie vom Anbieter.
Finanzierungszertifikat
In nur zwei Minuten zu Ihrem persönlichen Finanzierungszertifkat.
Infos
| Vermarktungsart | Kaufen |
|---|---|
| Grundstücksfläche | 344 m2 |
| Grundflächenzahl (GRZ) | 0.4 |
| Geschossflächenzahl (GFZ) | 1.2 |
| Bebaubar nach | Bebauungsplan |
Kosten
| Miete pro Jahr |
157.000 € |
|---|---|
| Provision |
4,76% Alle Angaben sind ohne Gewähr und basieren ausschließlich auf Informationen, die uns von unserem Auftraggeber übermittelt wurden. Wir übernehmen keine Gewähr für die Vollständigkeit, Richtigkeit und Aktualität dieser Angaben. Es fällt bei notarieller Beurkundung eine Käuferprovision i.H.v. 4,76% inkl. MwSt. an. |
Finanzierungsrechner:
Kaufpreis:
600.000 €
Eigenkapital:
600.000 €
Monatliche Rate
0 €
Effektiver Jahreszins
0 %
Sollzinsbindung
10 Jahre
Beschreibung des Objekts
Lage
Zentral in Velbert gelegen, bietet dieses Grundstück eine hervorragende Kombination aus urbanem Lebensstil und naturnaher Umgebung. Die zentrale Lage ermöglicht es Ihnen, alle Annehmlichkeiten des täglichen Bedarfs bequem zu Fuß oder mit dem Fahrrad zu erreichen. Einkaufsmöglichkeiten, Restaurants, Schulen und öffentliche Verkehrsmittel sind in unmittelbarer Nähe und tragen zu einer hohen Lebensqualität bei.
Die gute Anbindung an das Verkehrsnetz sorgt dafür, dass Sie schnell in die umliegenden Städte gelangen und die Vorzüge der Region genießen können. Ob für Familien, Paare oder Investoren – die Lage dieses Grundstücks in Velbert ist ideal für vielfältige Nutzungsmöglichkeiten.
Umgeben von einer freundlichen Nachbarschaft und grünen Flächen, bietet dieses Grundstück nicht nur eine attraktive Investitionsmöglichkeit, sondern auch ein ideales Zuhause für Ihre Zukunft. Lassen Sie sich von der Lage und den Möglichkeiten inspirieren!
Sonstige Angaben
Alle Angaben sind ohne Gewähr und basieren ausschließlich auf Informationen, die uns von unserem Auftraggeber übermittelt wurden. Wir übernehmen keine Gewähr für die Vollständigkeit, Richtigkeit und Aktualität dieser Angaben.
Es fällt bei notarieller Beurkundung eine Käuferprovision i.H.v. 4,76% inkl. MwSt. an.
Sie wollen selbst eine Immobilie verkaufen? Wir erstellen für Sie eine realistische Wertermittlung Ihrer Immobilie und stimmen unser Vermarktungskonzept individuell auf Sie ab.
Sie wollen selbst nicht verkaufen und kennen jemanden, der verkaufen möchte? Profitieren Sie von unserem Tippgebermodell:
https://www.immobye.de/ueber-uns/tippgeber/
>
>