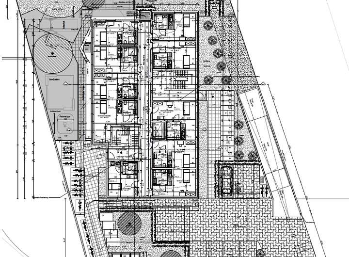
Zum Verkauf steht ein Grundstück mit 1.503 m² Fläche, bebaut mit einem älteren Gebäude, das für einen Neubau abgerissen werden muss.
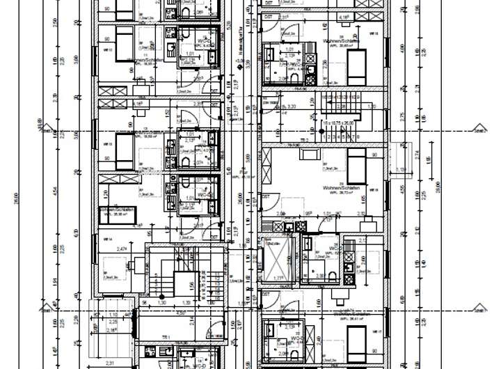
Eine Baugenehmigung für ein modernes Studentenwohnheim mit 52 Appartements 1439qm Wohnfläche auf 6 Etagen liegt bereits vor – Sie können sofort mit dem Bau beginnen!
Das Grundstück befindet sich in absoluter Top-Lage:
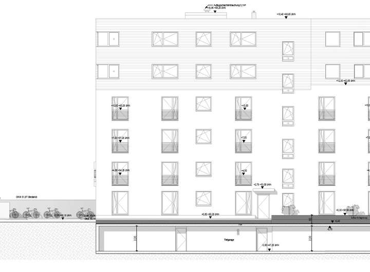
Supermärkte, Krankenhaus, Straßenbahn und Autobahnanschluss in unmittelbarer Nähe
Perfekte Infrastruktur und hohe Nachfrage nach studentischem Wohnraum.
Mischgebiet – alternative Bebauung möglich (z. B. Büro, Praxis, Hotel oder Mehrfamilienhaus)
Highlights:
1.503 m² Grundstücksfläche
Genehmigtes Bauprojekt (Studentenwohnheim mit 52 Einheiten)
Sofortiger Baustart möglich
Flexible Nutzung durch Mischgebiet
Hervorragende Lage mit idealer Anbindung
Fazit:
Eine absolute Rarität auf dem Markt – ideal für Investoren, Bauträger oder Entwickler, die ein renditestarkes Projekt in bester Lage realisieren möchten.
Seltene Gelegenheit: Baugrundstück mit genehmigtem Projekt für Studentenwohnheim in 1A-Lage!
51109 Köln
Die vollständige Adresse der Immobilie erhalten Sie vom Anbieter.
Auf Karte anzeigen
Die vollständige Adresse der Immobilie erhalten Sie vom Anbieter.
Finanzierungszertifikat
In nur zwei Minuten zu Ihrem persönlichen Finanzierungszertifkat.
Infos
| Vermarktungsart | Kaufen |
|---|---|
| Grundstücksfläche | 1.503 m2 |
| Erschließung | Erschlossen |
| Bebaubar nach | Bebauungsplan |
| Verfügbar ab | 11.10.2025 |
Kosten
| Miete pro Jahr |
2.800.000 € |
|---|---|
| Provision | Nein |
Finanzierungsrechner:
Kaufpreis:
600.000 €
Eigenkapital:
600.000 €
Monatliche Rate
0 €
Effektiver Jahreszins
0 %
Sollzinsbindung
10 Jahre