Angeboten wird hier von der PSD Immobilienwelten GmbH ein sehr Interessantes Einfamilienhaus mit Keller und Garage in Bürstadt- Bobstadt, nur 60 Meter bis zum Feldrand entfernt.
Durch geschickte Grundstücksoptimierung beim Bau des massiv gebauten Hauses wurde das Kellergeschoss/ Gartengeschoss so gestaltet, dass die Räume zur Gartenseite komplett belichtet sind. Es entstanden 4 helle, beheizte Räume mit großen Fenstern. Das Haus bietet viele Möglichkeiten, da es einen zweiten Eingang gibt.
.
Im Erdgeschoss befinden sich das große Wohnzimmer, 1 Esszimmer, 2 Schlafzimmer, Küche mit Abstellkammer, Tageslichtbad und ein extra Tageslicht-Gäste-WC auf ca. 122 qm Wohnfläche.
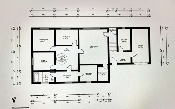
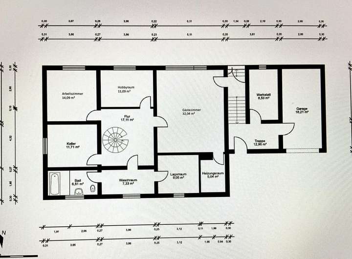
Weitere 3 Zimmer sind wohnlich gestaltete Nutzfläche im Gartengeschoss/Untergeschoss mit Heizung und Fenstern mit ca. 80 qm Fläche, die mit einem eigenen Eingang sowohl von der Straßenseite aus zu erreichen sind als auch über die Innentreppe. Ideal für ein Homeoffice oder auch denkbar als separates Kosmetikstudio bzw. Fußpflegstudio. Darüber hinaus gibt es noch ein Tageslichtbad mit Wanne, 1 Kellerraum, 1 Waschraum, 1 Lagerraum, 1 Heizungsraum und eine Werkstatt.
Zusätzlich im Dachgeschoss sind nochmals 2 Räume: 1 Studiozimmer mit Heizung und Fenster und einen Speicher mit einer gesamten Grundfläche/ Bodenfläche von nochmals ca.119 qm , die über eine große Treppe bequem zu erreichen sind.
Das Haus bietet sich zum renovieren/sanieren an. Gestalten Sie jetzt Ihr neues Zuhause wie Sie möchten und bringen Sie ihren ganz eigenen Stil mit ein.
Die Liegenschaft kann sofort an Sie übergeben werden.
Bürstadt Bobstadt, schönes Einfamilienhaus mit vielen Möglichkeiten, nur 60 Meter zum Feldrand.
68642 Bürstadt
Die vollständige Adresse der Immobilie erhalten Sie vom Anbieter.
Auf Karte anzeigen
Die vollständige Adresse der Immobilie erhalten Sie vom Anbieter.
Finanzierungszertifikat
In nur zwei Minuten zu Ihrem persönlichen Finanzierungszertifkat.
Infos
| Haustyp | Einfamilienhaus |
|---|---|
| Etagenzahl | 1 |
| Wohnfläche ca. | 123 m2 |
| Grundstücksfläche | 639 m2 |
| Zimmer | 4 |
| Badezimmer | 2 |
| Garage/Stellplatz | Garage |
| Anzahl Garage/Stellplatz | 1 |
Kosten
| Kaufpreis |
425.000 € |
|---|---|
| Provision |
3,57 % inkl. ges. MwSt. Der Verkäufer bezahlt im Erfolgsfall eine Verkäufer-Provision in Höhe von 3,57 % inklusive gesetzlicher Mehrwertsteuer vom beurkundeten Kaufpreis. Die Verkäufer-Provision ist verdient und fällig mit der Beurkundung des notariellen Kaufvertrages. Der Immobilienmakler wird mit dem Käufer einen provisionspflichtigen Maklervertrag in gleicher Höhe abschließen (§ 656c BGB). |
Finanzierungsrechner:
Kaufpreis:
600.000 €
Eigenkapital:
600.000 €
Monatliche Rate
0 €
Effektiver Jahreszins
0 %
Sollzinsbindung
10 Jahre
Bausubstanz & Energieausweis
| Baujahr | 1976 |
|---|---|
| Qualität der Austattung | Normal |
| Heizungsart | Zentralheizung |
| Wesentliche Energieträger | Öl |
| Energieausweis | liegt vor |
| Energieausweistyp | Bedarfsausweis |
| Energieverbrauchskennwert | 229,8 kWh/(m²*a) |
| Energieeffizienzklasse | G |
229,8
kWh/(m²*a)
Energieeffizienzklasse G
- A+
- A
- B
- C
- D
- E
- F
- G
- H
- 0
- 25
- 50
- 75
- 100
- 125
- 150
- 175
- 200
- 225
- >250
Beschreibung des Objekts
Ausstattung
Individuelle Ausstattungsmerkmale:
- Einbauküche
Lage
Das Haus ist nur 60 Meter bis zum Feldrand entfernt, ideal für Hundefreunde, Jogger, E- Biker und alle die einfach nur spazieren gehen wollen.
Bobstadt beeindruckt mit einer exzellenten Infrastruktur. In der unmittelbaren Umgebung finden sich zahlreiche Einkaufsmöglichkeiten, die von großen Supermärkten bis hin zu gemütlichen Fachgeschäften reichen, die zum Stöbern einladen. Eltern werden die Vielfalt an Bildungseinrichtungen schätzen, darunter mehrere Kindergärten und Schulen.
Für die Freizeitgestaltung steht eine Reihe von Einrichtungen zur Verfügung, darunter ein modernes Schwimmbad, mehrere Sportvereine und ein gut ausgestattetes Kulturzentrum, das regelmäßig Veranstaltungen und Workshops für alle Altersgruppen anbietet.
Die Nähe zur unberührten Natur rund um Bobstadt lädt zu ausgedehnten Spaziergängen und Radtouren auf beschilderten Wegen ein, die durch malerische Wälder und über weite Felder führen. Die nahgelegene Stadt Bürstadt bietet eine Vielzahl von kulturellen und kulinarischen Angeboten. Von traditionellen Restaurants und Cafés bis hin zu modernen Bars und jährlichen Stadtfesten wird für jeden Geschmack etwas geboten.
Die Verkehrsanbindung ist ebenso vorteilhaft. Die nahegelegene Bundesstraße B 44 sowie die nur etwa 13 Kilometer entfernte Bundesautobahn A 6 sichern eine schnelle und unkomplizierte Erreichbarkeit der umliegenden Ballungsgebiete. Darüber hinaus ist die Anbindung an den öffentlichen Nahverkehr hervorragend ausgebaut, mit regelmäßigen Bus- und Bahnverbindungen, die es den Bewohnern ermöglichen, sowohl berufliche als auch private Ziele zeitnah und bequem zu erreichen.
*** Wir suchen für unsere Kunden weitere Reihenhäuser/ Einfamilienhäuser / Mehrfamilienhäuser in Bürstadt und näherer Umgebung bis Euro 2.000.000 ,- zum Kauf. Sie möchten ihr Haus auch gerne verkaufen?
Profitieren auch Sie von unseren interessanten Tippgebermodell auch innerhalb der Familie.
Wir erstellen Ihnen eine kostenlose Marktwertermittlung. Rufen Sie uns an Telefon: 06196-9383802 ( Peter Kohler) oder senden Sie uns eine E-Mail an mail@psd-immobilien.de zu Händen von Peter Kohler ***
Sonstige Angaben
Der Maklervertrag verpflichtet die PSD Immobilienwelten GmbH zum Nachweis der Gelegenheit zum Abschluss oder zur Vermittlung eines Vertrages (z.B. Kaufvertrag) über eine Immobilie als Gegenleistung für die Zahlung des Maklerhonorars durch den Maklerkunden. Wird die PSD Immobilienwelten GmbH im Alleinauftrag tätig, wird sie durch den Maklervertrag zu intensiven Vermittlungs- oder Nachweisbemühungen verpflichtet. Dies beinhaltet neben der Auswertung des vorhandenen Interessentenbestandes auch, individuell nach geeigneten Vertragspartnern zu suchen.
Grundriss
Erdgeschoss
>
>
Untergeschoss/ Gartengeschoss
>
>
Dachgeschoss
>
>
Adresse
68642 Bürstadt
Interessante Orte
Preis- und Lageinformationen
Preistrend für Bestandsimmobilien in Bürstadt