Dieses seltene, liebevoll erhaltene Fachwerkanwesen in Beselich-Schupbach wird Sie vom ersten Moment an begeistern. Das zweigeschossige mit ausgebautem Dachgeschoss, einseitig angebaute Fachwerkhaus mit traditioneller Schiefereindeckung vereint historischen Charme mit vielseitigen Nutzungsmöglichkeiten. Das Objekt steht nicht unter Denkmalschutz.
Die überbaute Hofeinfahrt – ideal auch als Carport nutzbar – führt Sie in einen malerischen Innenhof, der sich harmonisch in das Gesamtbild des Anwesens einfügt. Dahinter öffnet sich ein wunderschöner Garten mit altem, gewachsenem Baumbestand – ein Rückzugsort mit ganz besonderem Flair.
Bei Selbstnutzung ist eine individuelle Vereinbarung zum Übergabetermin möglich, da der derzeitige Eigentümer das Haus für eine Übergangszeit weiterhin bewohnen möchte – selbstverständlich gegen eine angemessene Miete.
Sonstiges
Bei Selbstbezug ist die Vereinbarung eines flexiblen Übergabetermins erforderlich. Der derzeitige Eigentümer bewohnt das Haus nach Absprache für eine Übergangszeit weiter – mit einer fairen, marktgerechten Miete.
Fazit
Ein außergewöhnliches Fachwerkanwesen mit Seele, Geschichte und vielen Möglichkeiten – ideal für Liebhaber historischer Architektur, Familien oder Menschen, die das Besondere suchen. Genießen Sie den Charme vergangener Zeiten kombiniert mit dem Komfort eines liebevoll gepflegten Hauses.
Fachwerkanwesen mit idyllischem Innenhof in Beselich-Schupbach!
65614 Beselich
Die vollständige Adresse der Immobilie erhalten Sie vom Anbieter.
Auf Karte anzeigen
Die vollständige Adresse der Immobilie erhalten Sie vom Anbieter.
Finanzierungszertifikat
In nur zwei Minuten zu Ihrem persönlichen Finanzierungszertifkat.
Infos
| Haustyp | Einfamilienhaus |
|---|---|
| Etagenzahl | 2 |
| Wohnfläche ca. | 142 m2 |
| Nutzfläche | 73,56 m2 |
| Grundstücksfläche | 796 m2 |
| Zimmer | 5 |
| Schlafzimmer | 4 |
| Badezimmer | 2 |
| Garage/Stellplatz | Carport |
| Anzahl Garage/Stellplatz | 1 |
Kosten
| Kaufpreis |
225.000 € |
|---|---|
| Provision |
3,57% inkl. MwSt. Wir haben einen provisionspflichtigen Maklervertrag mit dem Verkäufer in gleicher Höhe abgeschlossen. |
Finanzierungsrechner:
Kaufpreis:
600.000 €
Eigenkapital:
600.000 €
Monatliche Rate
0 €
Effektiver Jahreszins
0 %
Sollzinsbindung
10 Jahre
Bausubstanz & Energieausweis
| Baujahr | 1850 |
|---|---|
| Objektzustand | Gepflegt |
| Heizungsart | Zentralheizung |
| Wesentliche Energieträger | Gas |
| Energieausweis | liegt vor |
| Energieausweistyp | Bedarfsausweis |
| Energieverbrauchskennwert | 265,9 kWh/(m²*a) |
| Energieeffizienzklasse | H |
265,9
kWh/(m²*a)
Energieeffizienzklasse H
- A+
- A
- B
- C
- D
- E
- F
- G
- H
- 0
- 25
- 50
- 75
- 100
- 125
- 150
- 175
- 200
- 225
- >250
Beschreibung des Objekts
Ausstattung
Raumaufteilung und Ausstattung
Erdgeschoss:
Einladender Eingangsbereich mit Platz für Garderobe
Tageslichtbad mit Dusche und Badewanne
Büro oder Schlafzimmer – flexibel nutzbar
Obergeschoss:
Flur mit Zugang zu einem weiteren kleinen Zimmer
Essbereich mit direktem Zugang zur Küche
Gemütliches Wohnzimmer mit behaglicher Atmosphäre
Zusätzliches Schlafzimmer
Dachgeschoss:
Duschbad
Kleine Küche im Flurbereich
Großzügiger, offener Studiobereich über die gesamte Hauslänge
Nebengebäude & Außenbereich:
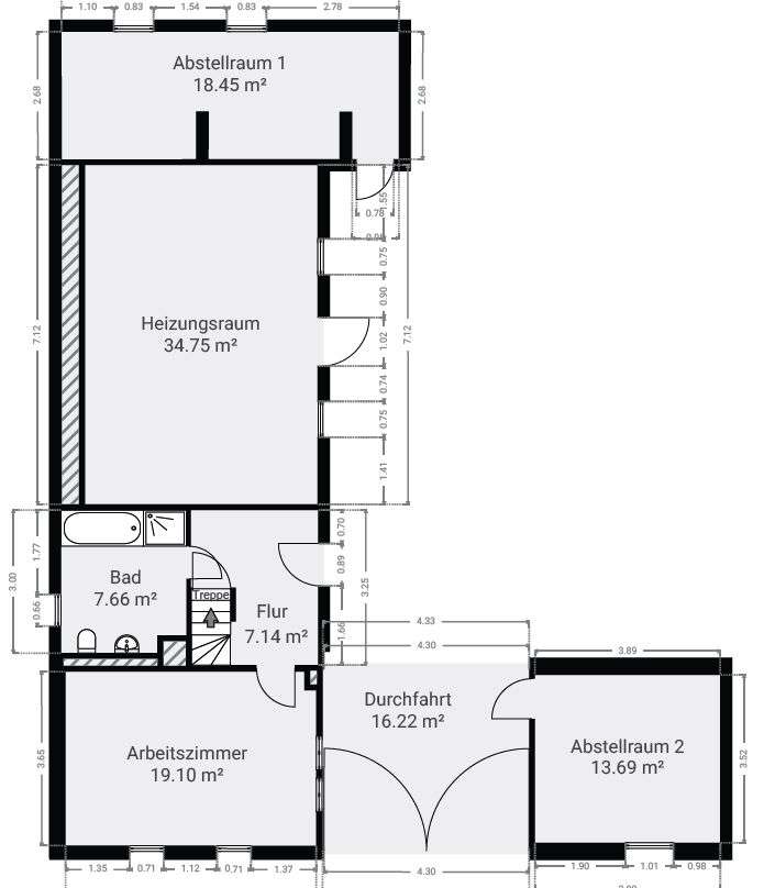
Ehemaliger Stall, heute als Abstellfläche mit Heizungsanlage genutzt
Weiterer separater Abstellraum
Großzügige Scheune mit vielseitigen Nutzungsmöglichkeiten
Idyllischer Innenhof mit überdachter Zufahrt
Wunderschöner Garten mit altem Baumbestand
Besonderheiten
Seltene Fachwerkarchitektur mit historischem Charakter
Gepflegtes Anwesen mit vielseitigem Raumkonzept
Ruhige und charmante Wohnlage im Ortsteil Schupbach
Großzügige Nebengebäude mit viel Stauraum und Potenzial
Überdachte Hofeinfahrt (Als Carport nutzbar)
Lage
Das Anwesen befindet sich im idyllischen Beselich-Schupbach, einer charmanten Ortschaft im Landkreis Limburg-Weilburg. Die Umgebung bietet eine ausgezeichnete Lebensqualität – naturnah, ruhig und dennoch verkehrsgünstig. Einkaufsmöglichkeiten, Schulen, Ärzte und Freizeitangebote befinden sich in den umliegenden Gemeinden. Die Nähe zu Limburg sorgt für eine gute Anbindung an die A3 und den ICE-Bahnhof.
Sonstige Angaben
Gerne stehen wir Ihnen für ein Beratungs- und Besichtigungstermin zur Verfügung.
Sie möchten selbst eine Immobilie verkaufen?
Wir ermitteln einen seriösen und marktgerechten Wert Ihrer Immobilie. Mit einem individuell für Sie abgestimmten Vermarktungsplan optimieren wir die Verkaufschancen. Als Tochtergesellschaft der Frankfurter Volksbank Rhein/Main unterstützt uns hierbei unser umfangreiches Netzwerk. Gerne begleiten wir Sie auf dem Weg zum erfolgreichen Verkauf Ihrer Immobilie und stehen Ihnen auch noch nach dem Beurkundungstermin zur Verfügung.
Für alle Fragen zur Finanzierung stehen Ihnen die Spezialisten der Frankfurter Volksbank Rhein/Main zur Verfügung. Hier stellen wir gerne einen Kontakt her.
Sprechen Sie uns an – wir freuen uns auf Sie!
Grundriss
Erdgeschoss
>
>
Obergeschoss
>
>
Dachgeschoss
>
>
Adresse
65614 Beselich
Interessante Orte
Preis- und Lageinformationen
Preistrend für Bestandsimmobilien in Beselich