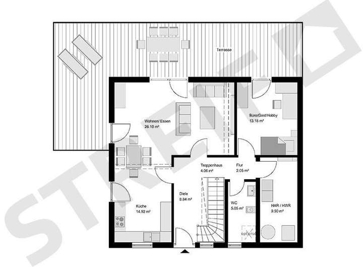
Träumen Sie von einem individuellen Einfamilienhaus, das ganz nach Ihren Wünschen gestaltet ist? Bei STREIF haben Sie die Möglichkeit, Ihr Traumhaus in Altötting zu verwirklichen. Dieses besondere Projekt umfasst ein modernes Einfamilienhaus mit 6 Zimmern und einer großzügigen Wohnfläche von 165 m². Auf einem 665 m² großen Grundstück bieten wir Ihnen das ideale Zuhause für Ihre Familie. Das Haus erstreckt sich über 2 Etagen und verfügt über 3 Schlafzimmer sowie ein stilvolles Badezimmer. Unser Bau-Konzept basiert auf einer umfassenden Beratung, bei der wir Ihre persönlichen Vorstellungen und Wünsche ermitteln. So stellen wir sicher, dass Ihr neues Zuhause genau das bietet, was Sie sich wünschen. Nach der Planung, die auf Ihren individuellen Grundriss abgestimmt ist, erfolgt die Umsetzung innerhalb weniger Monate, damit Sie bald in Ihr neues Heim einziehen können.
Haus mit großer Terrasse. Für den Landeanflug Ihrer Freunde.
84503 Altötting
Die vollständige Adresse der Immobilie erhalten Sie vom Anbieter.
Auf Karte anzeigen
Die vollständige Adresse der Immobilie erhalten Sie vom Anbieter.
Finanzierungszertifikat
In nur zwei Minuten zu Ihrem persönlichen Finanzierungszertifkat.
Infos
| Haustyp | Einfamilienhaus |
|---|---|
| Etagenzahl | 2 |
| Wohnfläche ca. | 165 m2 |
| Grundstücksfläche | 665 m2 |
| Zimmer | 6 |
| Schlafzimmer | 3 |
| Badezimmer | 1 |
Kosten
| Kaufpreis |
688.000 € |
|---|
Finanzierungsrechner:
Kaufpreis:
600.000 €
Eigenkapital:
600.000 €
Monatliche Rate
0 €
Effektiver Jahreszins
0 %
Sollzinsbindung
10 Jahre
Bausubstanz & Energieausweis
| Baujahr | unbekannt |
|---|---|
| Bauphase | Haus in Planung (projektiert) |
Beschreibung des Objekts
Ausstattung
Das Einfamilienhaus erfüllt den KFW40 Standard und bietet somit hervorragende energetische Eigenschaften. Die Ausbaustufe 3 - FastFertigPlus umfasst eine hochwertige Sanitär-Grundausstattung, während Sie die Möglichkeit haben, bei der Gestaltung Ihres Hauses aktiv mitzuwirken. Die baulichen und technischen Details zeichnen sich durch erstklassige Materialien und moderne Bauweisen aus, die den höchsten Ansprüchen genügen.
Lage
Das Einfamilienhaus befindet sich in einem attraktiven Wohngebiet in Altötting, das sowohl Ruhe als auch eine gute Anbindung an die Infrastruktur bietet. In der Umgebung finden Sie zahlreiche Freizeitmöglichkeiten sowie Schulen, Einkaufsmöglichkeiten und öffentliche Verkehrsanbindungen, die den Alltag erleichtern.
Sonstige Angaben
Insgesamt bietet STREIF vier verschiedene Ausbaustufen an, darunter die Standard-Ausbaustufe Fast-Fertig Plus. Diese Ausbaustufe erlaubt es Ihnen, die haustechnischen Gewerke von Fachbetrieben erledigen zu lassen, während Sie bei anderen Aspekten des Hausbaus aktiv mitwirken können. Der Preis für das Haus Typ City beginnt ab 344.375 EUR. Profitieren Sie von der Möglichkeit, Eigenleistungen in Form einer Muskelhypothek zu erbringen, um Kosten zu sparen und die Kreditlaufzeiten zu verkürzen.
Adresse
84503 Altötting
Interessante Orte
Preis- und Lageinformationen
Preistrend für Bestandsimmobilien in Altötting