Architectural gem on the waterfront – Art Deco villa with private sandy beach and boat dock
Nestled in the charming natural setting between Lake Krampnitz and Lake Lehnitz, this extraordinary villa, the Denecke residence, built in 1933, is a rare architectural gem. Built in the Art Deco style, influenced by Expressionism and early Modernism, the property combines perfect living culture. The dreamlike waterfront location, coupled with exclusive privacy and impressive architecture, makes this property one of the most sought-after in the Potsdam area.
On a lakefront property measuring approximately 2,525 sqm, which gently opens up to the water, impressive views open up over Lake Krampitz, the stylishly landscaped gardens, and the forest area opposite. The private shore area has three spacious boat moorings with sufficient draft for sailboats, as well as its own small bathing area with a sandy beach - a discreet luxury that underscores the incomparable lifestyle of this location.
The detached villa was built in solid clinker brick with an elegant hipped roof and has been modernized to the highest standard as part of a comprehensive renovation in line with historic preservation guidelines. It offers a total of around 585 sqm of living/usable space, of which approx. 295 sqm is living space, spread over four levels: the classic bel étage, the upper floor, the converted attic with additional loft space, and the basement, where soft daylight floods the spa area, creating an atmosphere of quiet relaxation.
Special attention was paid to the careful restoration of the original stylistic elements, which now shine again in all their beauty: leaded windows, parquet flooring, period-style travertine fireplaces, authentic sliding doors, wooden-framed windows, window handle olives, and other details blend harmoniously with high-quality, contemporary furnishings.
The bel étage serves as the representative centerpiece. The spacious living area with fine dining, a magnificent 1,000-liter water-bearing travertine fireplace, and historic double doors creates an elegant atmosphere that is light-flooded, inviting, and offers direct access to the approximately 60 m² terrace. This offers spectacular views of the lake and the surrounding nature and stylishly extends the living space outdoors. A high-quality fitted kitchen, a guest WC, and a cloakroom complete this floor.
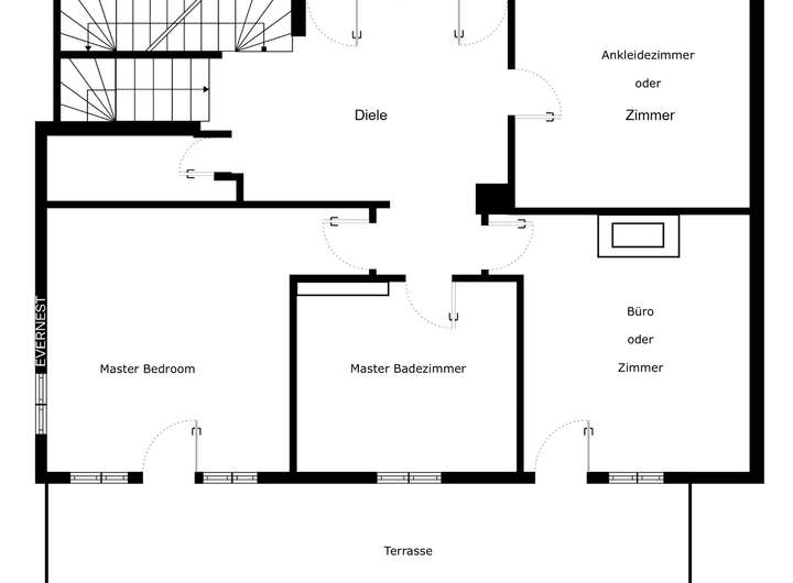
Upstairs, a well-designed ensemble of rooms awaits you: a spacious master bedroom with access to the approximately 30 m² terrace with a view of the water, a stylish office with a fireplace, a master bathroom, a dressing room, and a balcony with a view of the front garden. Here, too, emphasis was placed on exclusive materials and a calm, elegant atmosphere.
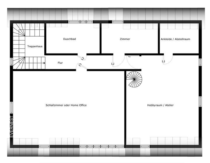
The attic is ideal as a children's or guest area. Two very spacious rooms, a charming “grandmother's room,” a library or studio, a bathroom, and a practical dressing room offer a wide range of uses. A spiral staircase leads to the lovingly converted “star room” in the attic—a private retreat with a view over the treetops into the distance along the sparkling waterfront.
Another highlight of the property is the indoor wellness and spa area. An oasis with a sauna, steam bath, whirlpool, solarium, shower, and much more, as well as a relaxation area with direct access to the garden and water, it offers a backdrop for relaxation that is rarely found in this form. The basement is complemented by an approx. 145 m² underground garage with seven parking spaces, a workshop, and an area for use as a wine cellar, among other things.
This property combines historical class with modern comfort, architectural finesse with natural exclusivity - a place of exceptional character for people with the highest standards.
Waterfront villa with private sandy beach and exclusive boat dock
14476 Potsdam
Die vollständige Adresse der Immobilie erhalten Sie vom Anbieter.
Auf Karte anzeigen
Die vollständige Adresse der Immobilie erhalten Sie vom Anbieter.
Finanzierungszertifikat
In nur zwei Minuten zu Ihrem persönlichen Finanzierungszertifkat.
Infos
| Haustyp | Villa |
|---|---|
| Etagenzahl | 3 |
| Wohnfläche ca. | 585 m2 |
| Nutzfläche | 290 m2 |
| Grundstücksfläche | 2.525 m2 |
| Zimmer | 8 |
| Schlafzimmer | 4 |
| Badezimmer | 3 |
| Garage/Stellplatz | Tiefgarage |
| Anzahl Garage/Stellplatz | 7 |
Kosten
| Kaufpreis |
5.300.000 € |
|---|---|
| Provision |
3.57 % inkl. MwSt. Bei Abschluss eines notariellen Kaufvertrages ist eine Käuferprovision vom Käufer in Höhe von 3.57 % inkl. MwSt. aus dem Kaufpreis fällig. |
Finanzierungsrechner:
Kaufpreis:
600.000 €
Eigenkapital:
600.000 €
Monatliche Rate
0 €
Effektiver Jahreszins
0 %
Sollzinsbindung
10 Jahre
Bausubstanz & Energieausweis
| Baujahr | 1933 |
|---|---|
| Denkmalschutzobjekt | Ja |
| Objektzustand | Modernisiert |
| Qualität der Austattung | Gehoben |
| Energieausweis | laut Gesetz nicht erforderlich |
Beschreibung des Objekts
Ausstattung
* Prestigious Art Deco-style villa on the waterfront, built in 1933
* Villa with approx. 585 sqm of stylish living/usable space
* Direct waterfront property with approx. 2,525 sqm in an exclusive location between Lake Krampnitz and Lake Lehnitz
* Extensive, historically accurate renovation preserving historical features, including
* Solnhofen tiles, leaded glass windows, double box windows in wooden frames, double doors, sliding doors, and much more
* New construction of a spacious underground garage with 7 comfortable parking spaces
* Private jetty with three berths, also suitable for larger sailing boats (sufficient draft)
* Private bathing area with sandy beach and direct access to the crystal-clear waters of the Havel
* Lovingly restored original details and stylish reminders of the building's construction period
* Exclusive interior design with high-quality materials and elegant styling
* Two integrated travertine fireplaces connected to the modern heating system
* 1,000-liter water-bearing fireplace in the living area
* Wellness & spa area with sauna, steam bath, whirlpool, solarium, fitness room, and large relaxation area
* Additional functional rooms: laundry room, storage rooms, wine cellar, and workshop
* Two spacious terraces open onto the garden landscape with direct access to the water
* Landscaped gardens with mature trees, maximum privacy, and a peaceful atmosphere
* Quiet residential street with one-way traffic, virtually car-free surroundings
* Central location with high recreational value: only a few minutes by bike or car to the center of Potsdam
* Very good connections to schools, national and international educational institutions in the immediate vicinity
* Short distances to Berlin: approx. 22 km to Kurfürstendamm (approx. 30 minutes by car)
* Approx. 50 km to BER Airport, approx. 45 minutes by car
Lage
Neu Fahrland is one of the most sought-after districts in northern Potsdam, offering a unique combination of natural living and urban proximity to the capital region. Characterized by expansive water and forest landscapes, Neu Fahrland is nestled between Lake Lehnitz, the Sacrow-Paretzer Canal, and Lake Krampnitz—a picturesque setting that guarantees the highest quality of life.
The area is characterized by tranquility, wide open spaces, and an almost rural idyll, yet it is also excellently connected: Potsdam's historic city center can be reached in a few minutes by car or bicycle, as can numerous cultural institutions, shopping facilities, cafés, and restaurants. Berlin's City West – including Kurfürstendamm – is also only about 30 minutes away by car, and BER Airport can be reached in about 45 minutes.
Families benefit from excellent infrastructure with kindergartens, schools, and international educational institutions in the immediate vicinity. In addition, Neu Fahrland offers a wide range of leisure and recreational opportunities: whether water sports, jogging around the lake, walks in the nearby forest, or bike tours along the Havel lakes—here you can slow down your everyday life to the highest degree.
The neighborhood is characterized by high-quality single-family homes, spacious villas, and stylishly restored old buildings. Neu Fahrland is considered one of Potsdam's most exclusive and relaxed residential areas, a place for people who appreciate living close to nature, architectural sophistication, and excellent transport connections.
Grundriss
Erdgeschoss
>
>
1.Obergeschoss
>
>
Dachgeschoss
>
>
Kellergeschoss
>
>
Adresse
14476 Potsdam
Interessante Orte
Preis- und Lageinformationen
Preistrend für Bestandsimmobilien in Neu Fahrland