Dieses Haus vereint den individuellen Charakter einer zeitlosen Klinkerfassade aus den 20er Jahren mit vielen Möglichkeiten für Ihre persönliche Gestaltung. Auf rund 138 m² Wohnfläche können Sie Ihrer Kreativität freien Lauf lassen – sei es durch offene Grundrisse, moderne Raumideen oder gemütliche Rückzugsorte für die ganze Familie. Die Raumaufteilung ist durchdacht und bietet Ihnen viele Varianten: Der obere Bereich lässt sich als separate Wohnung nutzen und vermieten oder ganz einfach wieder in ein großzügiges Einfamilienhaus integrieren, ein echtes Raumwunder. Auch die Küche kann geöffnet werden und verwandelt sich so in einen lichtdurchfluteten Wohn- und Essbereich – das Herzstück für ein modernes Zuhause. Der großzügige Wohnbereich im Erdgeschoss ist durch seine West-Ausrichtung lichtdurchflutet und bietet Dank seines Kamins in den kälteren Monaten ein warmes, angenehmes Raumklima. Im Obergeschoss erwarten Sie zwei Schlafzimmer, von denen eines Zugang zur großzügigen Terrasse mit herrlichem Gartenblick bietet. Darüber hinaus gibt es auf dieser Etage eine Küche, die sich bei Bedarf in einen zusätzlichen Wohn- oder Arbeitsraum verwandeln lässt, sowie ein helles Duschbad. Über die Treppe im Flur gelangen Sie in das Dachgeschoss, welches als praktischer Stauraum dient. Darüber hinaus stehen Ihnen im Keller über 70 m² zusätzliche Nutzfläche zur Verfügung, ideal für Hobby-, Werkstatt- oder Stauraum. Dank der gut erhaltenen Heizung und des intakten Daches können Sie sich ganz auf die individuelle Neugestaltung konzentrieren. Ein besonderes Highlight ist das Grundstück mit ca. 555 m² Fläche. Der nach Osten ausgerichtete Garten schenkt Ihnen sonnige Morgenstunden und lädt zu entspannten Stunden im Grünen ein. Im hinteren Bereich des Gartens verfügt der Hinterhof drei Garagen, die ebenfalls als Parkplätze oder Lagerfläche genutzt werden können. Mit etwas Sanierung und Liebe zum Detail entfaltet dieses Haus sein volles Potenzial. Gleichzeitig haben Sie die Möglichkeit, den Grundriss nach Ihren Bedürfnissen zu verändern. Dieses Zuhause bietet Ihnen die seltene Gelegenheit, Ihren Traum vom Einfamilienhaus nach eigenen Vorstellungen zu verwirklichen. Ob als klassisches Familienhaus, Mehrgenerationenlösung oder mit zusätzlichem Einkommen durch Vermietung. Gerne zeigen wir Ihnen dieses besondere Haus im Rahmen einer persönlichen Besichtigung.
Ihr Traum vom Einfamilienhaus wird wahr
22609 Hamburg
Die vollständige Adresse der Immobilie erhalten Sie vom Anbieter.
Auf Karte anzeigen
Die vollständige Adresse der Immobilie erhalten Sie vom Anbieter.
Finanzierungszertifikat
In nur zwei Minuten zu Ihrem persönlichen Finanzierungszertifkat.
Infos
| Haustyp | Einfamilienhaus |
|---|---|
| Wohnfläche ca. | 138 m2 |
| Nutzfläche | 119 m2 |
| Grundstücksfläche | 555 m2 |
| Bezugsfrei ab | sofort |
| Zimmer | 5 |
| Schlafzimmer | 3 |
| Badezimmer | 2 |
| Garage/Stellplatz | Garage |
| Anzahl Garage/Stellplatz | 3 |
Kosten
| Kaufpreis |
795.000 € |
|---|---|
| Provision |
3.57 % inkl. gesetzl. MwSt. |
Finanzierungsrechner:
Kaufpreis:
600.000 €
Eigenkapital:
600.000 €
Monatliche Rate
0 €
Effektiver Jahreszins
0 %
Sollzinsbindung
10 Jahre
Bausubstanz & Energieausweis
| Baujahr | 1929 |
|---|---|
| Objektzustand | Renovierungsbedürftig |
| Wesentliche Energieträger | Gas |
| Energieausweis | liegt vor |
| Energieausweistyp | Bedarfsausweis |
| Energieverbrauchskennwert | 201,5 kWh/(m²*a) |
| Energieeffizienzklasse | G |
201,5
kWh/(m²*a)
Energieeffizienzklasse G
- A+
- A
- B
- C
- D
- E
- F
- G
- H
- 0
- 25
- 50
- 75
- 100
- 125
- 150
- 175
- 200
- 225
- >250
Beschreibung des Objekts
Ausstattung
Einbauküche
Blick ins Grüne
Parkett
Teppich
Fliesen
Laminat
Vollunterkellert
Kamin
Lage
Osdorf zählt zu den vielfältigen und lebenswerten Stadtteilen Hamburgs. Hier verbinden sich die Vorzüge einer ruhigen Stadtrandlage mit einer hervorragenden Infrastruktur und einem hohen Freizeitwert. Besonders Familien schätzen die grüne Umgebung und die Nähe zu Natur, Kultur und Schulen. Die Immobilie liegt unweit der Ortskerne von Nienstedten und Alt-Osdorf, wo sich noch Spuren des historischen Bauerndorfs finden lassen – darunter der denkmalgeschützte Kastanienhof, malerische Reetdachhäuser und die Osdorfer Mühle. Dieser besondere Mix aus Tradition und Moderne verleiht dem Viertel seinen eigenen Charme. Für Familien ist die Lage ideal: Mehrere Schulen befinden sich in unmittelbarer Nähe, darunter das renommierte Christianeum sowie die Internationale Schule Hamburg. Auch Sportbegeisterte kommen auf ihre Kosten – der Polo Club in der Jenischstraße bietet neben Polo auch Tennis und Hockey, bequem mit dem Fahrrad erreichbar. Naturfreunde genießen die Nähe zu zahlreichen Naherholungsgebieten. Der Botanische Garten und der Jenischpark laden zu ausgedehnten Spaziergängen ein, während das Elbufer bei Teufelsbrück nur wenige Minuten mit dem Rad entfernt liegt – perfekt für eine Auszeit am Wasser.Auch die Infrastruktur lässt keine Wünsche offen: Das Elbe-Einkaufszentrum bietet vielfältige Shoppingmöglichkeiten, während Bus- und S-Bahn-Anbindungen (u. a. Klein Flottbek und Hochkamp) eine schnelle Verbindung in die Hamburger Innenstadt gewährleisten – in rund 20 Minuten sind Sie dort. Dank der Nähe zur A7, Anschlussstelle Bahrenfeld, sind zudem auch überregionale Ziele schnell erreichbar. Osdorf verbindet eine ausgezeichnete Lage im Grünen mit urbanem Komfort und vielseitigen Freizeitmöglichkeiten – ein Stadtteil, der Lebensqualität auf ganzer Linie bietet.
Sonstige Angaben
Der Makler-Vertrag mit uns kommt durch die Bestätigung der Inanspruchnahme unserer Maklertätigkeit in Textform zustande, wie z.B. insbesondere die Unterschrift des Suchkundenvertrages und/oder des Objekt-Exposés. Die Höhe der Courtage richtet sich nach den seit dem 23.12.2020 in Kraft getretenen gesetzlichen Regelungen zur Teilung der Maklercourtage. Hiernach wird die Courtage regelmäßig für beide Parteien (Eigentümer und Käufer) in Höhe von 3 % zuzüglich Umsatzsteuer in jeweils geltender Höhe, derzeit also insgesamt 7,14 % des Kaufpreises einschließlich ges. Umsatzsteuer bei notariellem Vertragsabschluss verdient und fällig. Die Höhe der Bruttocourtage unterliegt einer Anpassung bei Steuersatzänderung. Grunderwerbsteuer, Notar- und Gerichtskosten trägt der Käufer. Alle Angaben sind ohne Gewähr und basieren ausschließlich auf Informationen, die uns von unserem Auftraggeber übermittelt wurden. Wir übernehmen keine Gewähr für die Vollständigkeit, Richtigkeit und Aktualität dieser Angaben. Zwischenverkauf bleibt vorbehalten. Sollte das von uns nachgewiesene Objekt bereits bekannt sein, teilen Sie uns dieses bitte unverzüglich mit. Die Weitergabe dieses Exposees an Dritte ohne unsere Zustimmung löst gegebenenfalls Courtage- bzw. Schadensersatzansprüche aus. Im Übrigen gelten die Allgemeinen Geschäftsbedingungen für die Rechtsbeziehung zwischen Ihnen und der Engel & Völkers Immobilien Deutschland GmbH (Lizenznehmer der Engel & Völkers Residential GmbH).
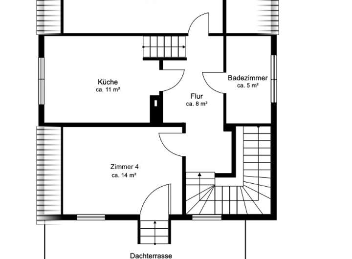
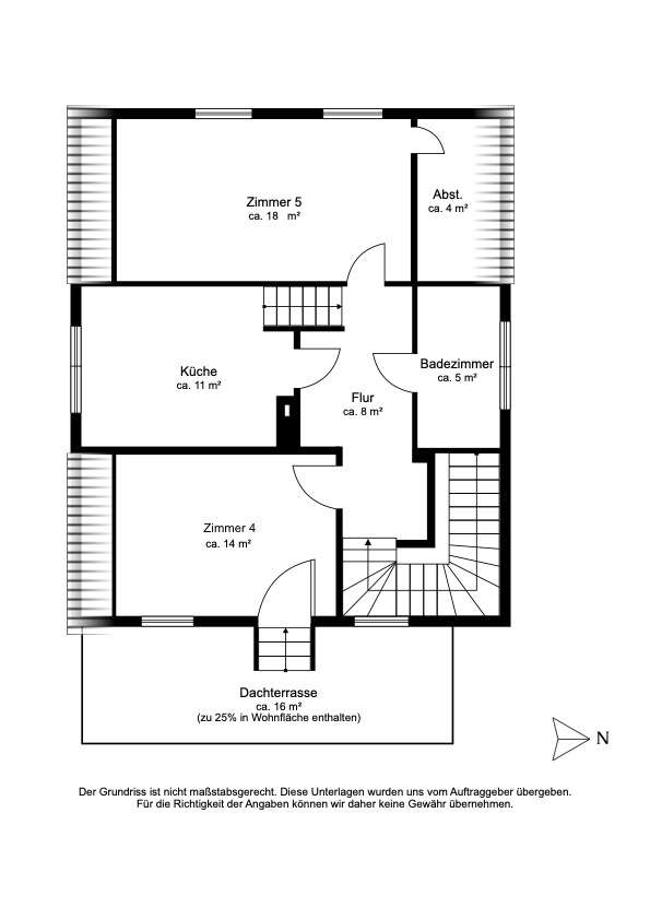
Grundriss
Erdgeschoss
>
>
Obergeschoss
>
>
Dachboden
>
>
Keller
>
>
Adresse
22609 Hamburg
Interessante Orte
Preis- und Lageinformationen
Preistrend für Bestandsimmobilien in Osdorf