Dieses 482 m² große Baugrundstück in der Vorderen Bergstraße 6 in Syrgenstein bietet Ihnen eine besondere Gelegenheit: Es ist bereits durch eine Architektin projektiert und verfügt über einen genehmigten Bauantrag für ein modernes Wohnhaus mit Einliegerwohnung.
Für Sie bedeutet das: Sofortiger Baustart und klare Planungssicherheit. Die vorhandene Planung ist im Kaufpreis enthalten und erleichtert Ihnen den direkten Einstieg in Ihr Bauvorhaben.
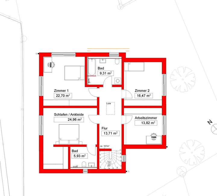
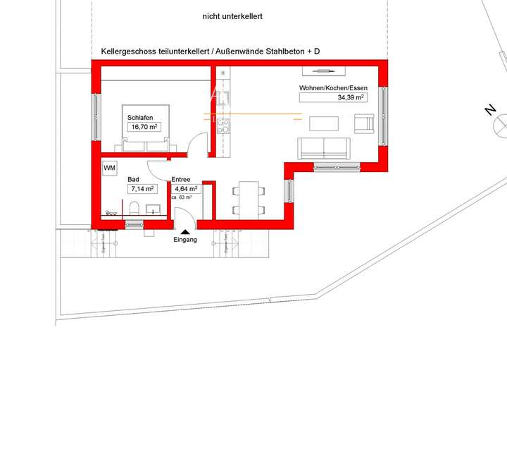
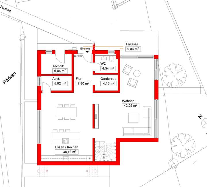
Die Grundrisse sind durchdacht und flexibel nutzbar, ob für Ihre Familie, für mehrere Generationen, mit zusätzlichem Platz fürs Homeoffice oder als rentable Mieteinheit.
Ein weiteres Plus: Der Kauf ist für Sie provisionsfrei, da der Verkäufer die Maklercourtage übernimmt.
Baugrundstück mit genehmigtem Bauantrag: Einfamilienhaus mit ELW in Syrgenstein – PROVISIONSFREI
89428 Syrgenstein
Die vollständige Adresse der Immobilie erhalten Sie vom Anbieter.
Auf Karte anzeigen
Die vollständige Adresse der Immobilie erhalten Sie vom Anbieter.
Finanzierungszertifikat
In nur zwei Minuten zu Ihrem persönlichen Finanzierungszertifkat.
Infos
| Vermarktungsart | Kaufen |
|---|---|
| Grundstücksfläche | 482 m2 |
| Erschließung | Erschlossen |
| Grundflächenzahl (GRZ) | 0.28 |
| Geschossflächenzahl (GFZ) | 0.56 |
| Bebaubar nach | wie Nachbarbebauung |
| Verfügbar ab | sofort |
Kosten
| Miete pro Jahr |
135.000 € |
|---|---|
| Provision | Nein |
Finanzierungsrechner:
Kaufpreis:
600.000 €
Eigenkapital:
600.000 €
Monatliche Rate
0 €
Effektiver Jahreszins
0 %
Sollzinsbindung
10 Jahre
Beschreibung des Objekts
Lage
Das Grundstück liegt in Syrgenstein, einer ruhigen und familienfreundlichen Wohngegend im Landkreis Dillingen an der Donau. Einkaufsmöglichkeiten, Kindergarten, Schule, Ärzte sowie Cafés und Restaurants befinden sich in der Nähe und sind bequem erreichbar.
Über die B16 gelangen Sie schnell nach Dillingen, Gundelfingen und Lauingen. Die Autobahn A7 bietet eine gute Anbindung in Richtung Ulm, Würzburg und ins Allgäu.
Die Umgebung überzeugt zudem durch ihre naturnahe Lage: Felder, Wälder und Radwege laden zu Spaziergängen, Sport und Erholung im Grünen ein. Damit verbindet der Standort Ruhe, Natur und eine solide Infrastruktur in idealer Weise.
Sonstige Angaben
Dieses Grundstück wird für den Käufer provisionsfrei vermittelt, die Maklerprovision übernimmt der Verkäufer.
Für eine zügige Bearbeitung bitten wir Sie, Ihre Anfrage mit vollständigen Kontaktdaten (Name, Anschrift und Telefonnummer) zu stellen.
Haben wir Ihr Interesse geweckt? Dann nehmen Sie Kontakt mit uns auf, wir beraten Sie gerne und vereinbaren einen persönlichen Besichtigungstermin.
Alle Angaben beruhen auf den Informationen des Eigentümers und der zuständigen Behörden. Eine Gewähr für die Richtigkeit und Vollständigkeit übernehmen wir nicht.
Grundriss
EG Grundriss - Grundstück Syr
>
>
OG Grundriss - Grundstück Syrg
>
>
UG Grundriss - Grundstück Syrg
>
>