Objektnr: 1066978
In einer charmanten Seitenstraße von Osterspai, eingebettet zwischen Weinbergen und Rheinidylle, steht dieses Wohnhaus – ein Ort, an dem Zeit Geschichte geschrieben hat und Zukunft entstehen darf.
Schon beim Eintreten spürt man die besondere Atmosphäre: Hohe Decken, originale Details und dieser Hauch von Beständigkeit, der alten Häusern ihre Seele gibt. Das Knistern des Kamins im Wohnzimmer verleiht dem Zuhause an kalten Tagen eine unvergleichliche Wärme – hier trifft Geborgenheit auf Stil.
Mit seinen großzügigen Räumen, mehreren Schlafzimmern und offenen Wohnbereichen bietet das Haus Platz für all jene, die mehr wollen als nur vier Wände: Familien mit Herz, Menschen mit Ideen oder Investoren mit Weitblick.
Ob generationenübergreifend, als Rückzugsort oder als Kapitalanlage – dieses Haus lässt viele Lebensmodelle zu.
Im Garten kann man den Blick über die Weinberge schweifen lassen, während Kinder spielen oder der Duft von frisch gemähtem Gras durch die Luft zieht. Das Nebengebäude wartet darauf, neu entdeckt zu werden – vielleicht als Atelier, Werkstatt oder kleines Homeoffice?
Ein weiterer Pluspunkt: An der Straße liegt bereits der Gasanschluss – beste Voraussetzungen für moderne Heiztechnik oder zukünftige Umrüstungen. Hier ist quasi alles denkbar.
Die Lage verbindet Ruhe mit Nähe – Einkaufsmöglichkeiten, Kindergarten, Schule und Bahnhof sind in wenigen Minuten erreichbar. Ideal also für alle, die das Echte, Bodenständige und zugleich Praktische suchen.
Dieses Haus ist kein Neubau von der Stange – es ist ein Zuhause mit Herz, Geschichte und Zukunft. Und vielleicht schon bald der Beginn deines nächsten Kapitels.
Weinberge, Rheinblick & Rheinsteig – wo Natur und Zuhause eins werden für Sie!
56340 Osterspai
Die vollständige Adresse der Immobilie erhalten Sie vom Anbieter.
Auf Karte anzeigen
Die vollständige Adresse der Immobilie erhalten Sie vom Anbieter.
Finanzierungszertifikat
In nur zwei Minuten zu Ihrem persönlichen Finanzierungszertifkat.
Infos
| Haustyp | Einfamilienhaus |
|---|---|
| Etagenzahl | 2 |
| Wohnfläche ca. | 130 m2 |
| Grundstücksfläche | 432,13 m2 |
| Bezugsfrei ab | ab sofort |
| Zimmer | 5 |
| Schlafzimmer | 3 |
| Badezimmer | 1 |
| Garage/Stellplatz | Garage |
| Anzahl Garage/Stellplatz | 1 |
Kosten
| Kaufpreis |
199.000 € |
|---|---|
| Provision |
3,57 % Die Provision i.H.v. 3,57 % inkl. MwSt. ist mit Kaufvertragsbeurkundung fällig, sofern der Verkaufspreis über 83.000,00 € liegt. Liegt der Verkaufspreis dagegen bei/unter 83.000,00 €, ist die fest vereinbarte Mindestprovision i.H.v. mind. 5.950,00 € inkl. MwSt. mit Kaufvertragsbeurkundung fällig. Die Mindestprovision fällt insg. nur einmal an, wodurch Verkäufer und Käufer die Mindestprovision dann jeweils mit 2.975,00 € inkl. MwSt. tragen. |
Finanzierungsrechner:
Kaufpreis:
600.000 €
Eigenkapital:
600.000 €
Monatliche Rate
0 €
Effektiver Jahreszins
0 %
Sollzinsbindung
10 Jahre
Bausubstanz & Energieausweis
| Baujahr | 1927 |
|---|---|
| Letzte Sanierung | 2012 |
| Bauphase | Haus fertig gestellt |
| Objektzustand | Renovierungsbedürftig |
| Qualität der Austattung | Normal |
| Heizungsart | Elektro-Heizung |
| Wesentliche Energieträger | Strom |
| Energieausweis | liegt vor |
| Energieausweistyp | Bedarfsausweis |
| Energieverbrauchskennwert | 220,0 kWh/(m²*a) |
| Energieeffizienzklasse | G |
220,0
kWh/(m²*a)
Energieeffizienzklasse G
- A+
- A
- B
- C
- D
- E
- F
- G
- H
- 0
- 25
- 50
- 75
- 100
- 125
- 150
- 175
- 200
- 225
- >250
Beschreibung des Objekts
Ausstattung
+ Direkt am schönsten Wanderweg Deutschlands
+ Eigene Gartenfläche und Garage
+ Direkt am Rhein
+ Nebengebäude mit Werkstatt
+ Ideal für Familien
Lage
Die Immobilie liegt in zentraler Lage von Osterspai, nur wenige Schritte vom Rheinufer entfernt. Die Nähe zum Wasser bietet ideale Voraussetzungen für Freizeit und Erholung.
Kindergarten und Grundschule befinden sich in einem Umkreis von maximal 3 Kilometern und sorgen für eine gute Bildungs- und Betreuungsinfrastruktur. Die Nahversorgung ist durch Supermarkt, Apotheke, Post- und Bankfiliale im Umkreis von 6 Kilometern ebenfalls sichergestellt.
Osterspai überzeugt zudem durch seine verkehrsgünstige Lage: Der nächstgelegene Bahnhof ist schnell erreichbar, ebenso die nächste Autobahnauffahrt. Die Städte Koblenz und Wiesbaden sind in ca. 20 bzw. 45 Autominuten erreichbar und erweitern die beruflichen sowie kulturellen Möglichkeiten deutlich.
Sonstige Angaben
Vereinbaren Sie noch heute einen Besichtigungstermin!
_____________________________________________________
Alle Angaben sind ohne Gewähr und basieren ausschließlich auf Informationen, die uns von unserem Auftraggeber zur Verfügung gestellt wurden. Wir übernehmen keine Gewähr für die Vollständigkeit, Richtigkeit und Aktualität der Angaben.
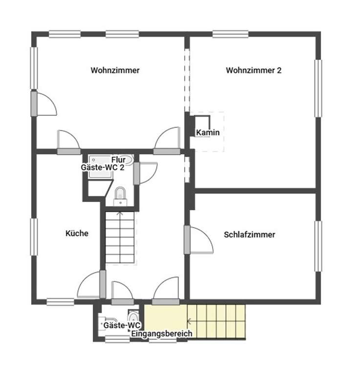
Grundriss
Grundriss Skizze EG
>
>
Grundriss Skizze 1. OG
>
>
Grundriss Skizze 2.OG
>
>
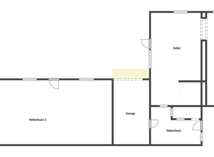
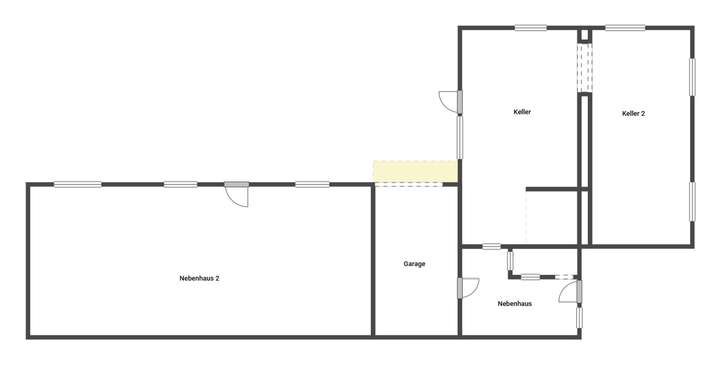
Grundriss Skizze 1. UG
>
>
Adresse
56340 Osterspai
Interessante Orte
Preis- und Lageinformationen
Preistrend für Bestandsimmobilien in Osterspai