Noch nicht gebaut, aber schon jetzt Ihr Wohntraum! Dieses Generationenhaus bietet genügend Platz für alle Lebensphasen. Mit separaten Wohneinheiten und gemeinsamen Begegnungsräumen verbindet es Unabhängigkeit und Familiennähe. Sichern Sie sich Ihre Planungsfreiheit und gestalten Sie Ihr individuelles Zuhause!
🏡 „Doppelt hält besser – Ihr Traum vom Zweifamilienhaus!“
55430 Oberwesel
Die vollständige Adresse der Immobilie erhalten Sie vom Anbieter.
Auf Karte anzeigen
Die vollständige Adresse der Immobilie erhalten Sie vom Anbieter.
Finanzierungszertifikat
In nur zwei Minuten zu Ihrem persönlichen Finanzierungszertifkat.
Infos
| Haustyp | Mehrfamilienhaus |
|---|---|
| Wohnfläche ca. | 205 m2 |
| Nutzfläche | 0 m2 |
| Grundstücksfläche | 797 m2 |
| Zimmer | 8 |
| Schlafzimmer | 4 |
| Badezimmer | 2 |
| Anzahl Garage/Stellplatz | 0 |
Kosten
| Kaufpreis |
585.359 € |
|---|---|
| Provision | Nein |
Finanzierungsrechner:
Kaufpreis:
600.000 €
Eigenkapital:
600.000 €
Monatliche Rate
0 €
Effektiver Jahreszins
0 %
Sollzinsbindung
10 Jahre
Bausubstanz & Energieausweis
| Baujahr | 2026 |
|---|---|
| Bauphase | Haus in Planung (projektiert) |
| Qualität der Austattung | Gehoben |
| Heizungsart | Wärmepumpe |
Beschreibung des Objekts
Ausstattung
Individuell geplant und technik-fertig – Ihr Danhaus nach Maß!
Jedes unserer Fertighäuser wird individuell auf Ihr Grundstück, den Bebauungsplan und Ihre Wünsche abgestimmt. Die beliebte Danhaus-Ausbaustufe technik-fertig ist dabei die ideale Basis – mit vielen Extras inklusive:
-Massive Klinkerfassade im Standard (alternativ Putz- oder Holzfassade)
-Heizungstechnik frei wählbar, z. B. mit Fußbodenheizung + Kühlfunktion
-Lüftungsanlage mit Wärmerückgewinnung fertig installiert
-Elektroinstallation komplett fertiggestellt
-Hochwertige Marken-Ausstattung
-3-fach-Wärmeschutzverglasung und Rollläden (auf Wunsch elektrisch)
-Estrich mit Wärmedämmung
-Sanitär-Rohinstallation vorbereitet (ohne Objekte)
Natürlich kann die Ausbaustufe individuell angepasst werden – je nach geplanter Eigenleistung.
Bauen mit Danhaus heißt: Qualität, Effizienz und nordisches Design vereint!
Lage
Es handelt sich um ein reales Grundstück mit einer perfekten Süd-Ost Ausrichtung.
Sonstige Angaben
Verwirklichen Sie Ihren Traum vom eigenen Zuhause - sorgenfrei und entspannt.
Mit uns bauen Sie nicht nur ein Haus, sondern Ihr persönliches Wohlfühlparadies. Wir bieten Ihnen alles aus einer Hand: von der umfassenden Budgetplanung über die individuelle Hausplanung bis hin zur schlüsselfertigen Fertigstellung.
Unser Rundum-Sorglos-Paket:
Budgetplanung: Wir erstellen eine detaillierte Kostenaufstellung für Haus und Grundstück und finden die optimale Finanzierung für Ihr Budget.
Finanzierungsberatung: Wir präsentieren Ihnen verschiedene Finanzierungsmöglichkeiten und zeigen Ihnen, wie Sie Geld sparen und staatliche Förderungen in Anspruch nehmen können.
Grundstückssuche: Wir haben das passende Grundstück in Ihrer Wunschregion, das perfekt zu Ihren Bedürfnissen und Vorstellungen passt.
Hausplanung: Wir entwerfen gemeinsam mit Ihnen Ihr Traumhaus - ganz nach Ihren individuellen Wünschen und Anforderungen.
Bauausführung: Wir kümmern uns um die gesamte Bauphase - von der Baugenehmigung bis zur schlüsselfertigen Fertigstellung. Entspannen Sie sich und genießen Sie den Weg zu Ihrem Traumhaus! Wir kümmern uns um alles - Sie müssen sich um nichts kümmern.
Vereinbaren Sie noch heute ein kostenloses Beratungsgespräch und lassen Sie sich von uns inspirieren!
Ich zeige Ihnen wie Sie günstig zu Ihrem Traumhaus kommen und freue mich darauf mit Ihnen zusammen ihr Traumhaus zu realisieren!
Ihr Verkaufsberater Paulo Granja
+49 178 71 28 112
Anbauteile, Carport, Garage und Keller können Extras sein, die als Sonderausstattung angeboten werden. Abbildungen, Grundrisse und Flächenangaben sind beispielhaft und können Extras zeigen. Flächenangaben nach DIN 277.
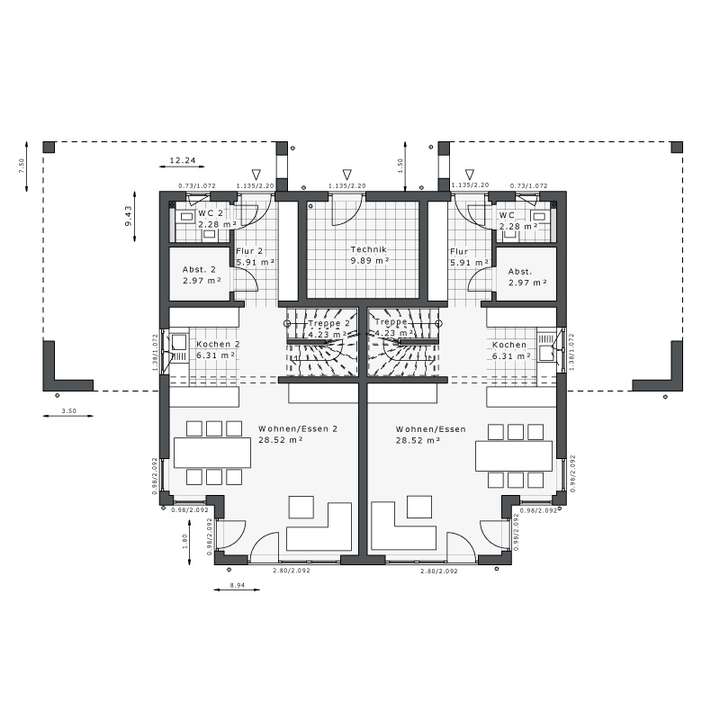
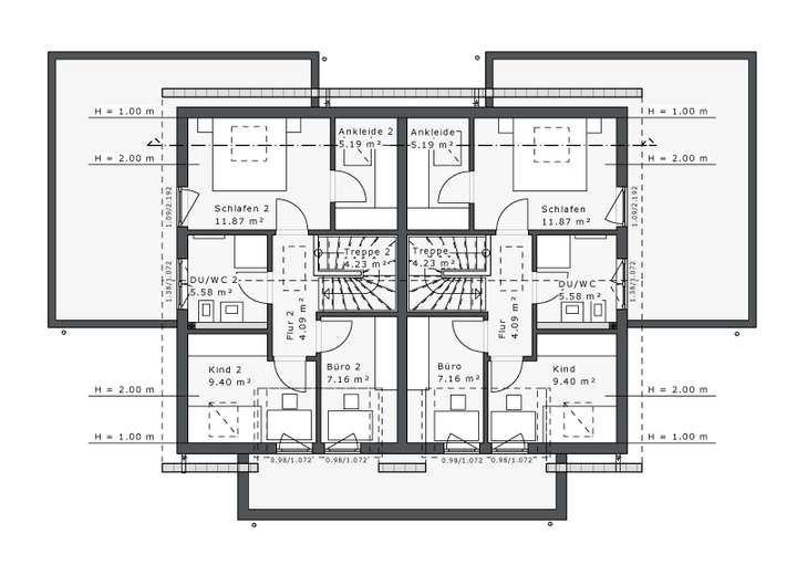
Grundriss
Grundriss OG
>
>
Grundriss EG
>
>
Adresse
55430 Oberwesel
Interessante Orte
Preis- und Lageinformationen
Preistrend für Bestandsimmobilien in Oberwesel