Wohnen auf lange Sicht! Dieses Generationenhaus bietet flexible Nutzungsmöglichkeiten – von der Großfamilie bis hin zur Vermietung einzelner Einheiten. Gestalten Sie Ihr Eigenheim nach Ihren Wünschen und profitieren Sie von moderner Architektur und energieeffizienter Bauweise. Kontaktieren Sie uns für eine unverbindliche Planung!
GENERATIONEN – WOHNEN. Platz für die Familie!
56329 Sankt Goar
Die vollständige Adresse der Immobilie erhalten Sie vom Anbieter.
Auf Karte anzeigen
Die vollständige Adresse der Immobilie erhalten Sie vom Anbieter.
Finanzierungszertifikat
In nur zwei Minuten zu Ihrem persönlichen Finanzierungszertifkat.
Infos
| Haustyp | Doppelhaushaelfte |
|---|---|
| Wohnfläche ca. | 190 m2 |
| Nutzfläche | 0 m2 |
| Grundstücksfläche | 751 m2 |
| Zimmer | 8 |
| Schlafzimmer | 4 |
| Badezimmer | 2 |
| Anzahl Garage/Stellplatz | 0 |
Kosten
| Kaufpreis |
561.021 € |
|---|---|
| Provision | Nein |
Finanzierungsrechner:
Kaufpreis:
600.000 €
Eigenkapital:
600.000 €
Monatliche Rate
0 €
Effektiver Jahreszins
0 %
Sollzinsbindung
10 Jahre
Bausubstanz & Energieausweis
| Baujahr | 2026 |
|---|---|
| Bauphase | Haus in Planung (projektiert) |
| Qualität der Austattung | Gehoben |
| Heizungsart | Wärmepumpe |
Beschreibung des Objekts
Ausstattung
Individuell geplant und technik-fertig – Ihr Danhaus nach Maß!
Jedes unserer Fertighäuser wird individuell auf Ihr Grundstück, den Bebauungsplan und Ihre Wünsche abgestimmt. Die beliebte Danhaus-Ausbaustufe technik-fertig ist dabei die ideale Basis – mit vielen Extras inklusive:
-Massive Klinkerfassade im Standard (alternativ Putz- oder Holzfassade)
-Heizungstechnik frei wählbar, z. B. mit Fußbodenheizung + Kühlfunktion
-Lüftungsanlage mit Wärmerückgewinnung fertig installiert
-Elektroinstallation komplett fertiggestellt
-Hochwertige Marken-Ausstattung
-3-fach-Wärmeschutzverglasung und Rollläden (auf Wunsch elektrisch)
-Estrich mit Wärmedämmung
-Sanitär-Rohinstallation vorbereitet (ohne Objekte)
Natürlich kann die Ausbaustufe individuell angepasst werden – je nach geplanter Eigenleistung.
Bauen mit Danhaus heißt: Qualität, Effizienz und nordisches Design vereint!
Lage
Bauplatz mit hervorragender Anbindung und vielfältigen Möglichkeiten
Diese sonnige Parzelle in bester Wohnlage bietet Raum für individuelle Gestaltungsmöglichkeiten. Mit einer großzügigen Grundstücksgröße und optimaler Verkehrsanbindung ist dies die perfekte Gelegenheit für Ihr Bauprojekt.
Sonstige Angaben
DIE ZUKUNFT – HOLZ-HYBRID
Die Holz-Hybrid-Bauweise von DANHAUS vereint das Beste aus zwei Welten. Die Eigenschaften von Stein und Holz verleihen die notwenige statische Stabilität, Holz schafft durch seine natürlichen Fähigkeiten eine angenehme Haptik und Wärme. Mit dem neuen Holz-Hybrid-System von DANHAUS lassen sich unsere Häuser kosten- und terminsicher realisieren. DANHAUS denkt seine Ursprünge aus dem Holzbau weiter. Passend für unsere Zeit: CO2-arm, nachhaltig, seriell, digital, planbar. Entdecken Sie jetzt die Zukunft des Bauens.
Vereinbaren Sie noch heute ein kostenloses Beratungsgespräch und lassen Sie sich von uns inspirieren!
Ich zeige Ihnen wie Sie günstig zu Ihrem Traumhaus kommen und freue mich darauf mit Ihnen zusammen ihr Traumhaus zu realisieren!
Ihr Verkaufsberater Paulo Granja
+49 178 71 28 112
Anbauteile, Carport, Garage und Keller können Extras sein, die als Sonderausstattung angeboten werden. Abbildungen, Grundrisse und Flächenangaben sind beispielhaft und können Extras zeigen. Flächenangaben nach DIN 277.
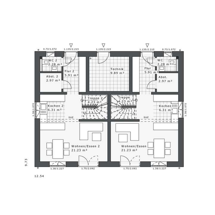
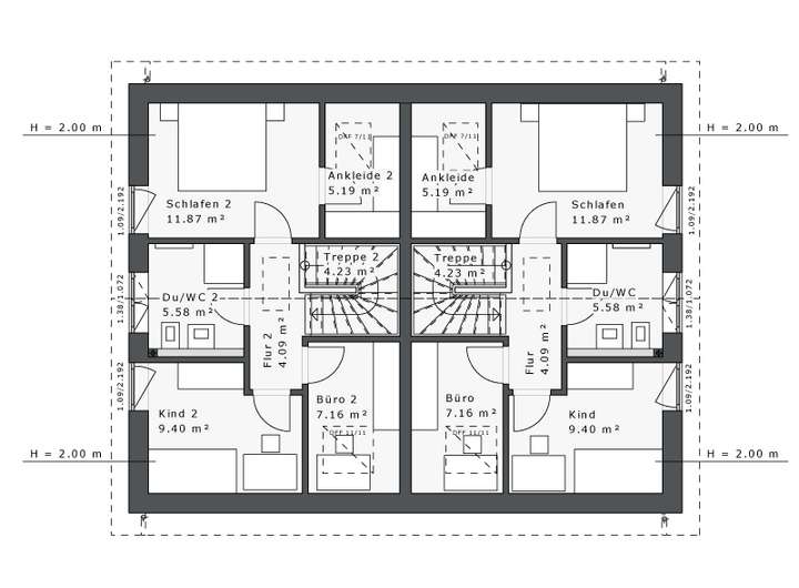
Grundriss
Grundriss Erdgeschoss
>
>
Grundriss Obergeschoss
>
>
Adresse
56329 Sankt Goar
Interessante Orte
Preis- und Lageinformationen
Preistrend für Bestandsimmobilien in Sankt Goar