Die moderne energieeffiziente Doppelhaushälfte im ökologischen Holzständerbau errichtet, bietet einen komfortablen Grundriss, helle Räume und den direkten Blick in die Natur.
Die Aufteilung der Doppelhaushälfte besticht durch viele Details.
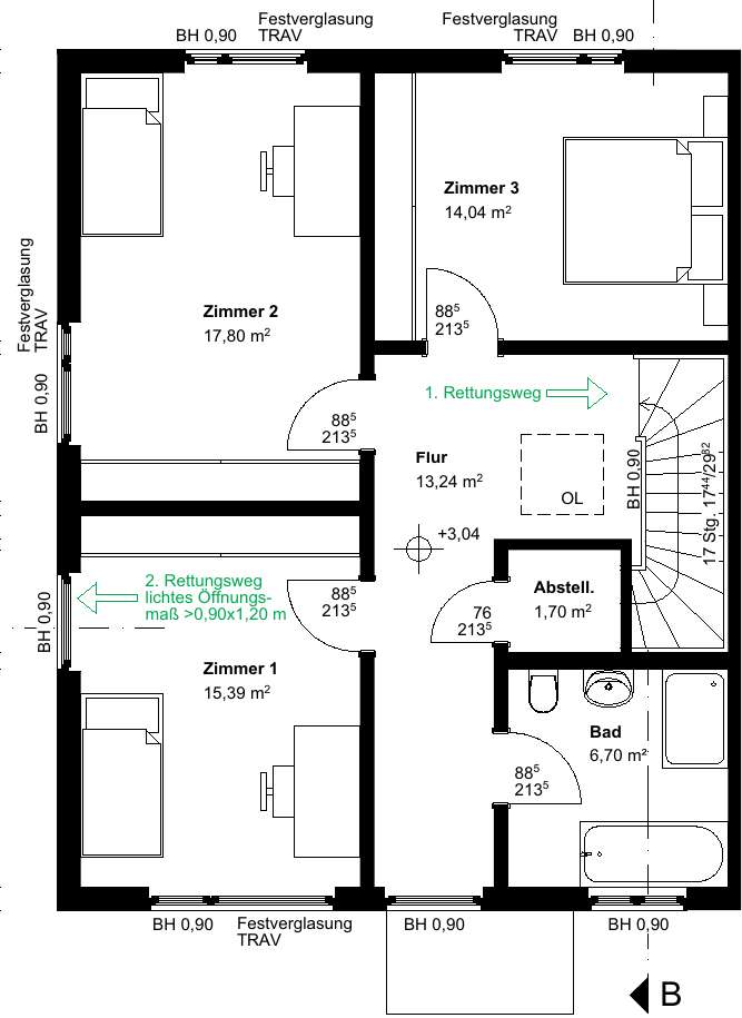
Drei geräumige Schlafzimmer sind im OG angeordnet, mit viel Platz und Stellmöglichkeiten.
Das gesamte Haus ist mit Fußbodenheizung (Wärmepumpe)
ausgestattet.
Das Bad im OG verfügt über Badewanne und Dusche, das
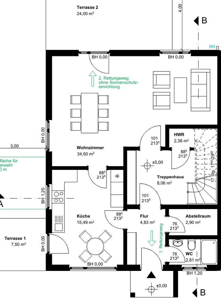
Badezimmer im EG über eine Dusche.
Platz für die Waschmaschine und den Trockner befindet sich im Hauswirtschaftsraum des Hauses.
Der große Wohnbereich sowie die Küche mit Essplatz erhalten je eine Terrasse, die zum Entspannen einladen.
Die haustechnischen Ausstattungen entsprechen einem gehobenen Standard.
Das Haus wird mit einer Umluftwärmepumpe beheizt und
besitzt eine Fußbodenheizung im EG und OG.
Die Warmwasserbereitung erfolgt über Elektro-Durchlauferhitzer.
Der Eingangsbereich und die Bäder sind gefliest. Alle anderen Bereiche sind mit hochwertigem Laminat ausgelegt.
Für jede DHH sind 2 PKW Stellplätze und eine Abstellhütte im vorderen Außenbereich vorhanden.
Das Erdgeschoss verfügt über den Eingangsbereich, ein Bad, einen Hauswirtschaftsraum, einen Technikraum (unter der Treppe), eine Diele, eine Küche und das Wohn und Esszimmer.
Im Obergeschoss befinden sich ein Bad, zwei Kinderzimmer, ein Schlafzimmer, ein weiterer Abstellraum und ein Flurbereich.
Die Energieeffizienzklasse beträgt A+, der Endenergiebedarf 25,80
kWh/a.
Moderne Doppelhaushälfte an Wald und See
14776 Brandenburg an der Havel
Die vollständige Adresse der Immobilie erhalten Sie vom Anbieter.
Auf Karte anzeigen
Die vollständige Adresse der Immobilie erhalten Sie vom Anbieter.
Infos
| Haustyp | Doppelhaushaelfte |
|---|---|
| Etagenzahl | 2 |
| Wohnfläche ca. | 149 m2 |
| Nutzfläche | 149,86 m2 |
| Grundstücksfläche | 385 m2 |
| Bezugsfrei ab | 1.2.2026 |
| Zimmer | 4 |
| Schlafzimmer | 3 |
| Badezimmer | 2 |
| Haustiere | Nach Vereinbarung |
| Garage/Stellplatz | Außenstellplatz |
| Anzahl Garage/Stellplatz | 2 |
Kosten
| Kaltmiete |
1.980 € |
|---|---|
| Nebenkosten | + 200 € |
| Heizkosten | + 100 € |
| Gesamtmiete | 2.280 € (zzgl. Heizkosten) |
| Kaution o. Genossenschaftsanteile | 5.940,00 |
Weiter mieten oder doch kaufen?
Wer in Miete wohnt, überweist dem Vermieter im Laufe der Jahre hohe Summen, die sich
auch in die eigenen vier Wände investieren lassen könnten.
Bausubstanz & Energieausweis
| Baujahr | 2021 |
|---|---|
| Objektzustand | Neuwertig |
| Qualität der Austattung | Gehoben |
| Heizungsart | Wärmepumpe |
| Wesentliche Energieträger | Strom |
| Energieausweis | liegt vor |
| Energieausweistyp | Verbrauchsausweis |
| Energieverbrauchskennwert | 25,8 kWh/(m²*a) |
| Energieeffizienzklasse | A+ |
25,8
kWh/(m²*a)
Energieeffizienzklasse A+
- A+
- A
- B
- C
- D
- E
- F
- G
- H
- 0
- 25
- 50
- 75
- 100
- 125
- 150
- 175
- 200
- 225
- >250
Beschreibung des Objekts
Lage
Das Grundstück mit seinen 385 qm befindet sich am Stadtrand (nahe Buhnenhaus) der Havelstadt und hat den Wald in unmittelbarer Nähe, diese Kombination bietet Ruhe und Erholung.
In der nahen Umgebung befinden sich öffentliche Verkehrsmittel sowie eine Schule, Kita und Einkaufsmöglichkeiten.
Besonders Wassersportler kommen durch die 400 m Entfernung zum Breitlingsee auf Ihre Kosten.
Der 6 km entfernte Hauptbahnhof ist ebenso gut zu erreichen.
Grundriss
EG
>
>
OG
>
>
Adresse
14776 Brandenburg an der Havel
Interessante Orte
Preis- und Lageinformationen
Preistrend für Bestandsimmobilien in Neustadt