Noch nicht gebaut, aber schon jetzt Ihr Wohntraum! Dieses Generationenhaus bietet genügend Platz für alle Lebensphasen. Mit separaten Wohneinheiten und gemeinsamen Begegnungsräumen verbindet es Unabhängigkeit und Familiennähe. Sichern Sie sich Ihre Planungsfreiheit und gestalten Sie Ihr individuelles Zuhause!
GENERATIONEN – WOHNEN. Platz für die Familie!
56414 Wallmerod
Die vollständige Adresse der Immobilie erhalten Sie vom Anbieter.
Auf Karte anzeigen
Die vollständige Adresse der Immobilie erhalten Sie vom Anbieter.
Finanzierungszertifikat
In nur zwei Minuten zu Ihrem persönlichen Finanzierungszertifkat.
Infos
| Haustyp | Mehrfamilienhaus |
|---|---|
| Wohnfläche ca. | 205 m2 |
| Nutzfläche | 0 m2 |
| Grundstücksfläche | 602 m2 |
| Zimmer | 8 |
| Schlafzimmer | 4 |
| Badezimmer | 2 |
| Anzahl Garage/Stellplatz | 0 |
Kosten
| Kaufpreis |
588.984 € |
|---|---|
| Provision | Nein |
Finanzierungsrechner:
Kaufpreis:
600.000 €
Eigenkapital:
600.000 €
Monatliche Rate
0 €
Effektiver Jahreszins
0 %
Sollzinsbindung
10 Jahre
Bausubstanz & Energieausweis
| Baujahr | 2026 |
|---|---|
| Bauphase | Haus in Planung (projektiert) |
| Qualität der Austattung | Gehoben |
| Heizungsart | Wärmepumpe |
Beschreibung des Objekts
Ausstattung
Individuell geplant und technik-fertig – Ihr Danhaus nach Maß!
Jedes unserer Fertighäuser wird individuell auf Ihr Grundstück, den Bebauungsplan und Ihre Wünsche abgestimmt. Die beliebte Danhaus-Ausbaustufe technik-fertig ist dabei die ideale Basis – mit vielen Extras inklusive:
-Massive Klinkerfassade im Standard (alternativ Putz- oder Holzfassade)
-Heizungstechnik frei wählbar, z. B. mit Fußbodenheizung + Kühlfunktion
-Lüftungsanlage mit Wärmerückgewinnung fertig installiert
-Elektroinstallation komplett fertiggestellt
-Hochwertige Marken-Ausstattung
-3-fach-Wärmeschutzverglasung und Rollläden (auf Wunsch elektrisch)
-Estrich mit Wärmedämmung
-Sanitär-Rohinstallation vorbereitet (ohne Objekte)
Natürlich kann die Ausbaustufe individuell angepasst werden – je nach geplanter Eigenleistung.
Bauen mit Danhaus heißt: Qualität, Effizienz und nordisches Design vereint!
Lage
Baugrundstück mit viel Potenzial für Ihr Eigenheim
Das ebene und gut zugeschnittene Grundstück befindet sich in einer gewachsenen Wohngegend und bietet ausreichend Platz für ein Einfamilien- oder Stadtvilla. Durch die vorhandene Infrastruktur ist eine reibungslose Erschließung gewährleistet.
Sonstige Angaben
DIE ZUKUNFT – HOLZ-HYBRID
Die Holz-Hybrid-Bauweise von DANHAUS vereint das Beste aus zwei Welten. Die Eigenschaften von Stein und Holz verleihen die notwenige statische Stabilität, Holz schafft durch seine natürlichen Fähigkeiten eine angenehme Haptik und Wärme. Mit dem neuen Holz-Hybrid-System von DANHAUS lassen sich unsere Häuser kosten- und terminsicher realisieren. DANHAUS denkt seine Ursprünge aus dem Holzbau weiter. Passend für unsere Zeit: CO2-arm, nachhaltig, seriell, digital, planbar. Entdecken Sie jetzt die Zukunft des Bauens.
Vereinbaren Sie noch heute ein kostenloses Beratungsgespräch und lassen Sie sich von uns inspirieren!
Ich zeige Ihnen wie Sie günstig zu Ihrem Traumhaus kommen und freue mich darauf mit Ihnen zusammen ihr Traumhaus zu realisieren!
Ihr Verkaufsberater Paulo Granja
+49 178 71 28 112
Anbauteile, Carport, Garage und Keller können Extras sein, die als Sonderausstattung angeboten werden. Abbildungen, Grundrisse und Flächenangaben sind beispielhaft und können Extras zeigen. Flächenangaben nach DIN 277.
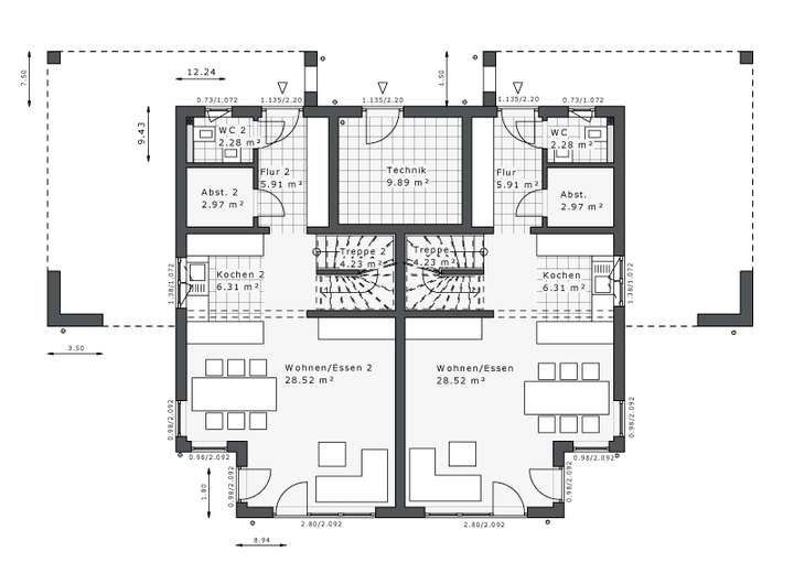
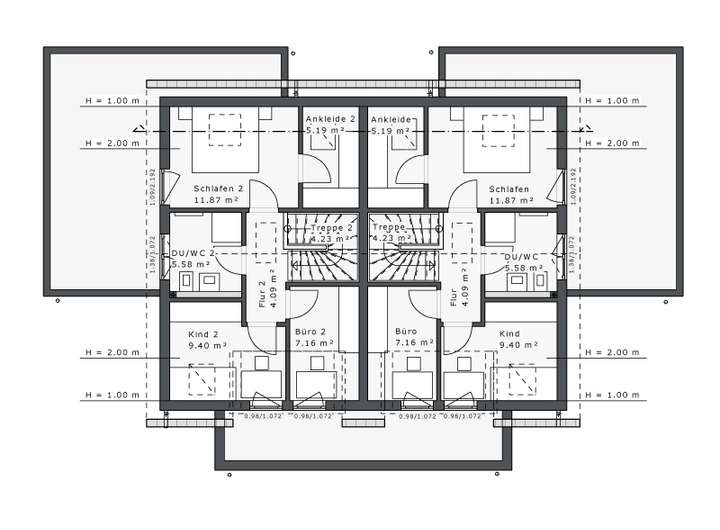
Grundriss
Grundriss OG
>
>
Grundriss EG
>
>
Adresse
56414 Wallmerod
Interessante Orte
Preis- und Lageinformationen
Preistrend für Bestandsimmobilien in Wallmerod