Dieses wunderbare Altstadthaus vereint historischen Charme mit modernem Wohnkomfort – und das in einer zentralen, zugleich idyllischen Lage. Ein solches Raumangebot ist in dieser Umgebung eine echte Rarität.
Das Anwesen präsentiert sich äußerst gepflegt – Haus und Grundstück wurden fortlaufend instand gehalten und regelmäßig saniert. Auf rund 212 m² Wohnfläche, verteilt über drei Etagen, bietet das Haus großzügigen Raum für individuelles Wohnen und Arbeiten. Hinzu kommen 127 m² Nutzfläche, die vielfältige Nutzungsmöglichkeiten eröffnen.
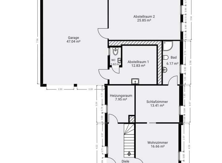
Im Erdgeschoss befinden sich ein einladender Eingangsbereich, zwei Durchgangszimmer, ein helles Tageslichtbad sowie ein praktischer Hauswirtschaftsraum.
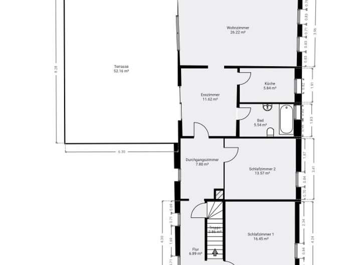
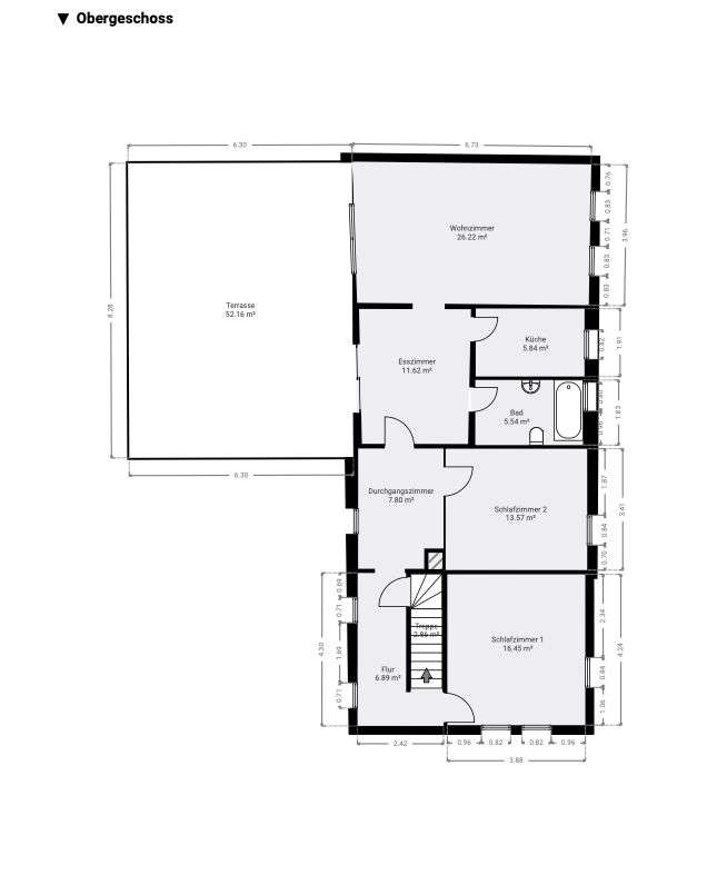
Das Obergeschoss überzeugt mit einem großzügigen Wohn- und Essbereich, von dem aus Sie Zugang zur riesigen Dachterrasse haben – ein absolutes Highlight! Hier genießen Sie Sonne, Ruhe und einen herrlichen Blick auf die schöne St. Johannes-Kirche – ideal zum Entspannen oder Grillen an warmen Tagen. Zudem finden Sie auf dieser Etage eine gemütliche Küche, zwei weitere Zimmer, die sich flexibel als Schlaf- oder Arbeitszimmer nutzen lassen, sowie ein weiteres Tageslichtbad.
Im Dachgeschoss stehen zwei bis drei helle Zimmer sowie ein weiteres Badezimmer mit Tageslicht zur Verfügung – perfekt für Gäste, Kinder oder als Rückzugsort.
Der große Innenhof bietet reichlich Platz – ob für Fahrzeuge, Feste oder Freizeitaktivitäten. Ein Carport für zwei Autos rundet das attraktive Gesamtbild dieses besonderen Anwesens ab.
Wunderschönes Altstadthaus zentral, idyllisch und mit außergewöhnlich viel Platz
61350 Bad Homburg vor der Höhe
Die vollständige Adresse der Immobilie erhalten Sie vom Anbieter.
Auf Karte anzeigen
Die vollständige Adresse der Immobilie erhalten Sie vom Anbieter.
Finanzierungszertifikat
In nur zwei Minuten zu Ihrem persönlichen Finanzierungszertifkat.
Infos
| Haustyp | Einfamilienhaus |
|---|---|
| Etagenzahl | 3 |
| Wohnfläche ca. | 212 m2 |
| Nutzfläche | 127 m2 |
| Grundstücksfläche | 370 m2 |
| Zimmer | 6 |
| Badezimmer | 3 |
| Garage/Stellplatz | Carport |
| Anzahl Garage/Stellplatz | 2 |
Kosten
| Kaufpreis |
895.000 € |
|---|---|
| Provision |
3,57% inkl. MwSt. Wir haben einen provisionspflichtigen Maklervertrag mit dem Verkäufer in gleicher Höhe abgeschlossen. |
Finanzierungsrechner:
Kaufpreis:
600.000 €
Eigenkapital:
600.000 €
Monatliche Rate
0 €
Effektiver Jahreszins
0 %
Sollzinsbindung
10 Jahre
Bausubstanz & Energieausweis
| Baujahr | 1900 |
|---|---|
| Objektzustand | Gepflegt |
| Heizungsart | Zentralheizung |
| Wesentliche Energieträger | Gas |
| Energieausweis | liegt vor |
| Energieausweistyp | Bedarfsausweis |
| Energieverbrauchskennwert | 203,1 kWh/(m²*a) |
| Energieeffizienzklasse | G |
203,1
kWh/(m²*a)
Energieeffizienzklasse G
- A+
- A
- B
- C
- D
- E
- F
- G
- H
- 0
- 25
- 50
- 75
- 100
- 125
- 150
- 175
- 200
- 225
- >250
Beschreibung des Objekts
Lage
Bad Homburg ist als moderner Wirtschaftsstandort und begehrter Wohnort das Zentrum des Hochtaunuskreises. Die Stadt wirbt nicht ohne Grund mit dem Slogan „Champagnerluft und Tradition“ – ein Hinweis auf das exklusive Flair, das Bad Homburg auszeichnet. Zahlreiche Kur-, Kongress- und Tagungseinrichtungen unterstreichen den hohen Stellenwert der Stadt, während das traditionsreiche Casino, oft als „Mutter von Monte Carlo“ bezeichnet, ein besonderes kulturelles Highlight darstellt.
Die Kreisstadt grenzt südöstlich an Frankfurt am Main und liegt malerisch am Fuße des Saalburgpasses. Die hervorragende Verkehrsanbindung über die Autobahnen A661 und A5 gewährleistet eine schnelle Erreichbarkeit der gesamten Rhein-Main-Region. Darüber hinaus bieten die RMV-Linien U2 und S5, die Taunusbahn sowie zahlreiche Regionalbusverbindungen eine komfortable Anbindung an alle Stadtteile, das Umland und die Frankfurter Innenstadt. Park & Ride-Möglichkeiten stehen direkt an den Bahnhöfen zur Verfügung.
Für den täglichen Bedarf finden sich sowohl in der Innenstadt als auch in den Stadtteilen zahlreiche Supermärkte, Apotheken, Restaurants und Cafés. Das Einzelhandelsangebot reicht von Mode und Wohnbedarf bis hin zu regionalen Produkten aus heimischem Anbau.
Das Bildungsangebot in Bad Homburg ist vielfältig und hochwertig: Neben Grundschulen und Gymnasien gibt es ein internationales zweisprachiges Gymnasium sowie eine private Wirtschaftsschule. Ergänzt wird dies durch ein breites Spektrum an Kinderbetreuungsmöglichkeiten.
Auch für die Freizeitgestaltung bietet Bad Homburg beste Voraussetzungen. Ob Naturerlebnis direkt vor der Haustür oder ein reichhaltiges Angebot an Sport-, Kunst- und Kulturvereinen – hier ist für jeden Geschmack etwas dabei. Ergänzt wird das Angebot durch eine Volkshochschule, Musikschule, mehrere Museen (u. a. das Horex-Museum und das Sinclair-Haus) sowie verschiedene Galerien.
Sonstige Angaben
Gerne stehen wir Ihnen für ein Beratungs- und Besichtigungstermin zur Verfügung.
Sie möchten selbst eine Immobilie verkaufen?
Wir ermitteln einen seriösen und marktgerechten Wert Ihrer Immobilie. Mit einem individuell für Sie abgestimmten Vermarktungsplan optimieren wir die Verkaufschancen. Als Tochtergesellschaft der Frankfurter Volksbank Rhein/Main unterstützt uns hierbei unser umfangreiches Netzwerk. Gerne begleiten wir Sie auf dem Weg zum erfolgreichen Verkauf Ihrer Immobilie und stehen Ihnen auch noch nach dem Beurkundungstermin zur Verfügung.
Für alle Fragen zur Finanzierung stehen Ihnen die Spezialisten der Frankfurter Volksbank Rhein/Main zur Verfügung. Hier stellen wir gerne einen Kontakt her.
Sprechen Sie uns an – wir freuen uns auf Sie!
Grundriss
EG
>
>
OG
>
>
DG
>
>
KG
>
>
Adresse
61350 Bad Homburg vor der Höhe
Interessante Orte
Preis- und Lageinformationen
Preistrend für Bestandsimmobilien in Bad Homburg vor der Höhe