Willkommen in Ihrer neuen Doppelhaushälfte in Spiesheim! Mit einer großzügigen Wohnfläche von 123,83 m² und einem traumhaften Grundstück von 979,00 m² bieten wir Ihnen die Möglichkeit, Ihr Zuhause ganz nach Ihren Wünschen und Vorstellungen zu gestalten. Ob 4 Zimmer, darunter 3 Schlafzimmer, ein stilvolles Badezimmer mit Dusche und Wanne sowie ein zusätzliches Gäste-WC - hier wird jeder Quadratmeter optimal genutzt. Die 2 Etagen bieten Ihnen ausreichend Platz für die ganze Familie und eröffnen zahlreiche Gestaltungsmöglichkeiten.
Das Baukonzept orientiert sich an Ihren Bedürfnissen: Sie entscheiden, ob Sie den Innenausbau selbst in die Hand nehmen oder auf unsere professionellen Dienstleistungspakete zurückgreifen möchten. Mit unseren Ausbauhäusern haben Sie die Freiheit, kreativ zu sein und Ihr Zuhause zu personalisieren, während wir Ihnen den Rücken freihalten, wenn Sie es wünschen.
Ihr Traumhaus in Spiesheim: Doppelhaushälfte nach Ihren Wünschen
55288 Spiesheim
Die vollständige Adresse der Immobilie erhalten Sie vom Anbieter.
Auf Karte anzeigen
Die vollständige Adresse der Immobilie erhalten Sie vom Anbieter.
Finanzierungszertifikat
In nur zwei Minuten zu Ihrem persönlichen Finanzierungszertifkat.
Infos
| Haustyp | Doppelhaushaelfte |
|---|---|
| Etagenzahl | 2 |
| Wohnfläche ca. | 123 m2 |
| Grundstücksfläche | 979 m2 |
| Zimmer | 4 |
| Schlafzimmer | 3 |
| Badezimmer | 1 |
| Garage/Stellplatz | Garage |
| Anzahl Garage/Stellplatz | 1 |
Kosten
| Kaufpreis |
530.879 € |
|---|---|
| Preis für Garage/Stellplatz | 8.000 € |
Finanzierungsrechner:
Kaufpreis:
600.000 €
Eigenkapital:
600.000 €
Monatliche Rate
0 €
Effektiver Jahreszins
0 %
Sollzinsbindung
10 Jahre
Bausubstanz & Energieausweis
| Baujahr | unbekannt |
|---|---|
| Bauphase | Haus in Planung (projektiert) |
| Heizungsart | Wärmepumpe |
Beschreibung des Objekts
Ausstattung
Die Ausstattung Ihrer Doppelhaushälfte ist durchdacht und modern. Die Bodenbeläge aus Fertigparkett, Fliesen, Laminat nach Wunsch und PVC vereinen Qualität und ästhetisches Design. Parkett sorgt für ein warmes und einladendes Ambiente, während Fliesen und PVC pflegeleicht und praktisch sind. Die Wärmepumpe als Befeuerungsart verspricht Ihnen ein nachhaltiges und effizientes Heizsystem, das nicht nur umweltfreundlich ist, sondern auch Ihre Energiekosten senkt. Der Energietyp entspricht dem KFW55 Standard und garantiert Ihnen ein modernes Wohnklima mit geringen Verbrauchskosten.
Lage
Spiesheim überzeugt durch seine ruhige, familienfreundliche Lage und eine ausgezeichnete Infrastruktur. Einkaufsmöglichkeiten, Schulen und Freizeitangebote sind in der Nähe und bieten Ihnen alles, was Sie für den täglichen Bedarf benötigen. Genießen Sie die Ruhe der Natur und profitieren Sie gleichzeitig von einer guten Anbindung an die Städte in der Umgebung, die vielfältige Freizeitmöglichkeiten und kulturelle Angebote bereitstellen.
Das Haus ist auf einem realen Baugrundstück geplant oder auf einem Grundstück in einer Planungsphase. Das Grundstück erwerben Sie direkt vom Eigentümer.
Bitte haben Sie Verständnis, dass wir ohne ein persönliches Gespräch keine Grundstücksdaten weiterleiten.
Gern sind wir bei der Wahl Ihres Traumgrundstückes behilflich!
Natürlich können wir ihren Haustraum auch auf einem anderen Grundstück realisieren, lassen Sie sich dazu in einem unverbindlichen Gespräch zu Ihrem Bauvorhaben beraten.
Wir freuen uns auf Sie!
Sonstige Angaben
allkauf heißt: Maximale Sicherheit, kurze Lieferzeiten, garantierte Fertigstellung. Wir bieten Ihnen kurze Lieferzeiten, Liefergarantie, garantiert Sicherheit, Festpreisgarantie und Fertigstellungsgarantie. Zu allen Häusern gehört:
- Energieeffizienzwand
- Echtholztreppe
- Luft-Wasser-Wärmepumpe
- Fußbodenheizung
- Be- und Entlüftungsanlage
- 3-fach verglaste Fenster inklusive Rollläden mit Aluminiumlamellen
- Lichte Raumhöhe 2,75 m
+ inkl. erhöhten Fenstern und Türen
- TOXPROOF Gütesiegel - schadstoffgeprüfter Materialien
- Just-in-Time-Lieferungen
- Bemustern im eigenen Bemusterungszentrum mit Markenprodukten
Ob Einfamilienhaus, Doppelhaus oder Bungalow - bei allkauf finden Sie Ihr Traumhaus! Vereinbaren Sie noch heute Ihren Termin zur Planung Ihres allkauf Traumhauses.
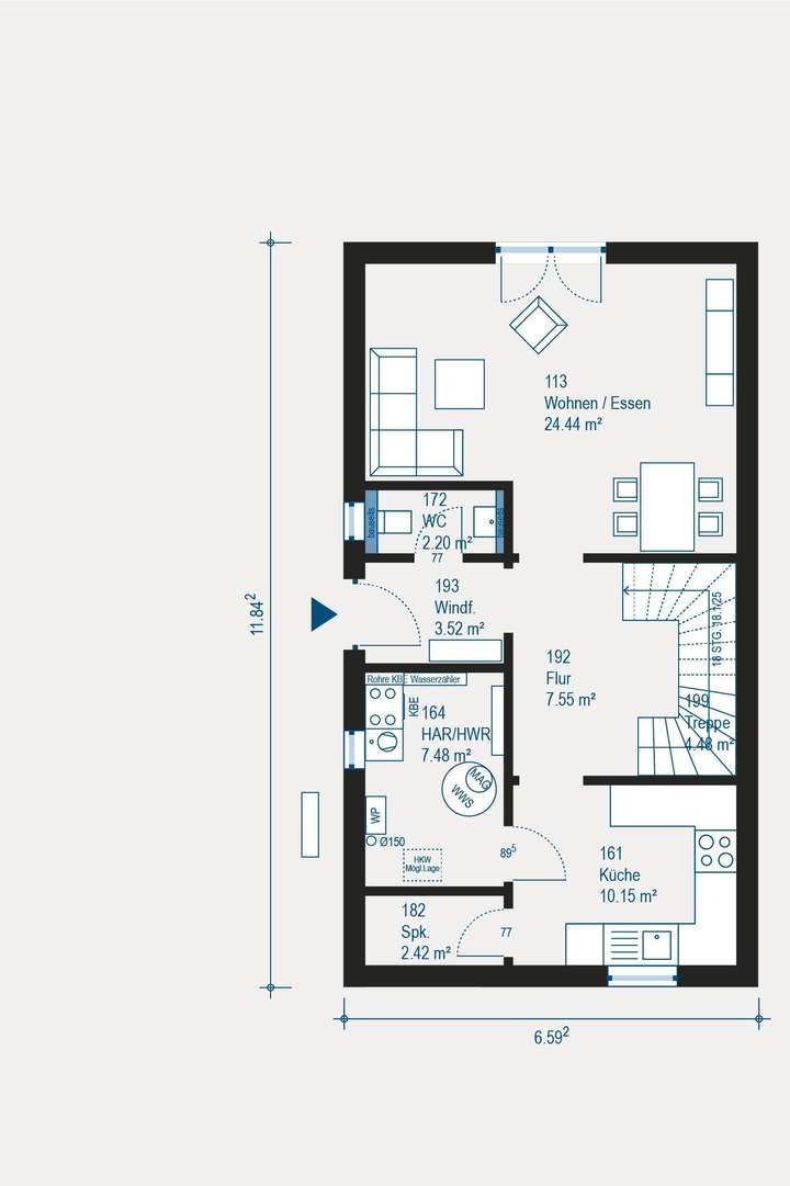
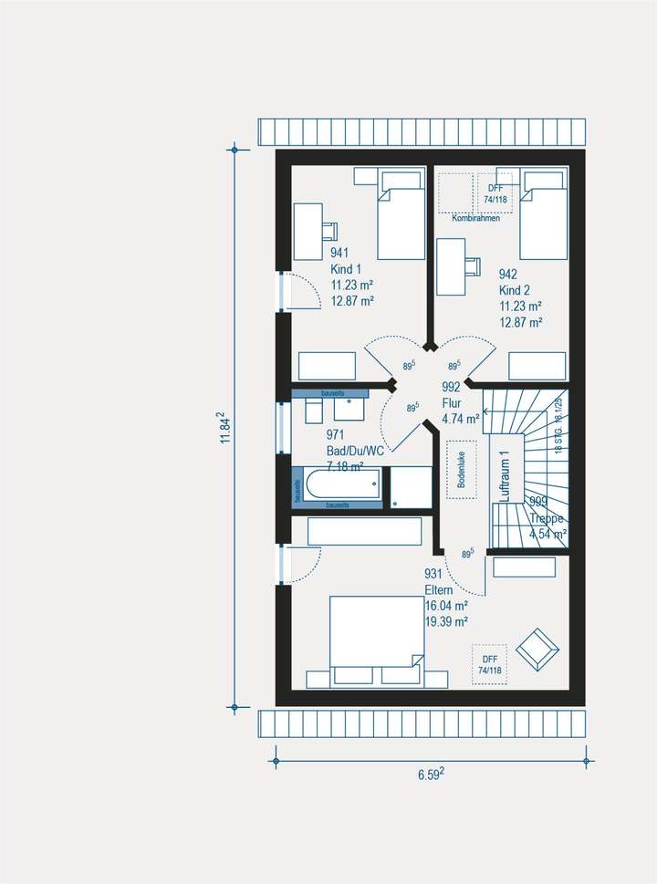
Grundriss
Grundriss
>
>
Grundriss
>
>
Grundriss
>
>
Adresse
55288 Spiesheim
Interessante Orte
Preis- und Lageinformationen
Preistrend für Bestandsimmobilien in Spiesheim