FEELS LIKE HOME. LOOKS LIKE YOU.
Ein Zuhause, das deine Handschrift trägt – individuell, durchdacht und bezahlbar.
Dein Traum vom Eigenheim ist näher, als du denkst.
Warum warten?
START YOUR HOME JOURNEY TODAY.
Perfekte Harmonie: Haus, Grundstück & Finanzierung aus einer Hand.
67294 Stetten
Die vollständige Adresse der Immobilie erhalten Sie vom Anbieter.
Auf Karte anzeigen
Die vollständige Adresse der Immobilie erhalten Sie vom Anbieter.
Finanzierungszertifikat
In nur zwei Minuten zu Ihrem persönlichen Finanzierungszertifkat.
Infos
| Haustyp | Einfamilienhaus |
|---|---|
| Wohnfläche ca. | 150 m2 |
| Nutzfläche | 0 m2 |
| Grundstücksfläche | 580 m2 |
| Zimmer | 4 |
| Schlafzimmer | 3 |
| Badezimmer | 1 |
| Anzahl Garage/Stellplatz | 0 |
Kosten
| Kaufpreis |
344.000 € |
|---|---|
| Provision | Nein |
Finanzierungsrechner:
Kaufpreis:
600.000 €
Eigenkapital:
600.000 €
Monatliche Rate
0 €
Effektiver Jahreszins
0 %
Sollzinsbindung
10 Jahre
Bausubstanz & Energieausweis
| Baujahr | 2026 |
|---|---|
| Bauphase | Haus in Planung (projektiert) |
| Qualität der Austattung | Gehoben |
| Heizungsart | Wärmepumpe |
Beschreibung des Objekts
Ausstattung
THINK WHITE – Do it yourself.
- Fertige Gebäudehülle inkl. Bodenplatte – du entscheidest über den Innenausbau
- Maximale Individualität – für kreative Köpfe & Macher
- Ideal für Eigenleistung – handwerkliches Geschick spart bares Geld
- Optimierte Grundrisse – smarte Wohnkonzepte für flexible Gestaltung
- Hochwertige Bauweise – modern, nachhaltig & energieeffizient
- Zugang zu staatlichen Förderprogrammen – clever finanzieren & sparen
Für alle, die ihr Zuhause selbst gestalten wollen!
Lage
Stetten ist eine Ortsgemeinde im Donnersbergkreis in Rheinland-Pfalz. Sie gehört der Verbandsgemeinde Kirchheimbolanden an. In Mitten der Weinberge lässt es sich Leben!
Sonstige Angaben
Das Haus ist projektiert inkl. Grundstück. Das Grundstück wird in Kommission angeboten bzw. direkt von Dritten verkauft. Daher kann der genannte Preis aufgrund aktueller Marktsituationen schwanken.
Die Bauabwicklung kann kurzfristig nach Grundstückserwerb begonnen werden. Bilder zeigen möglicherweise Sonderausstattungen, die auf Wunsch gegen Aufspreis zusätzlich angeboten werden können.
Erhalte in deinem persönlichen Beratungsgespräch kostenlos alle wichtigen Informationen zu diesem Projekt, insbesondere: Lage und Bebauungsmöglichkeiten des Baugrundstücks, Baukosten-Kalkulation, Finanzierungs- u. Förderungsmöglichkeiten sowie detaillierte Architektur- uund Grundrissplanung.
Wir freuen uns darauf, dich beraten zu dürfen!
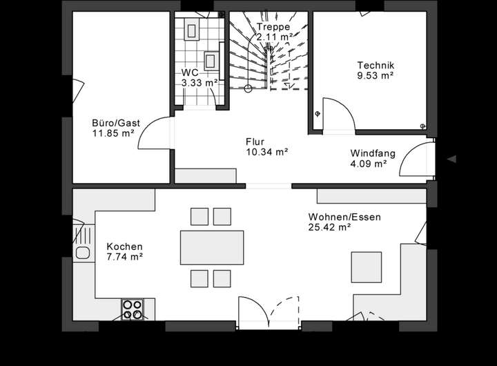
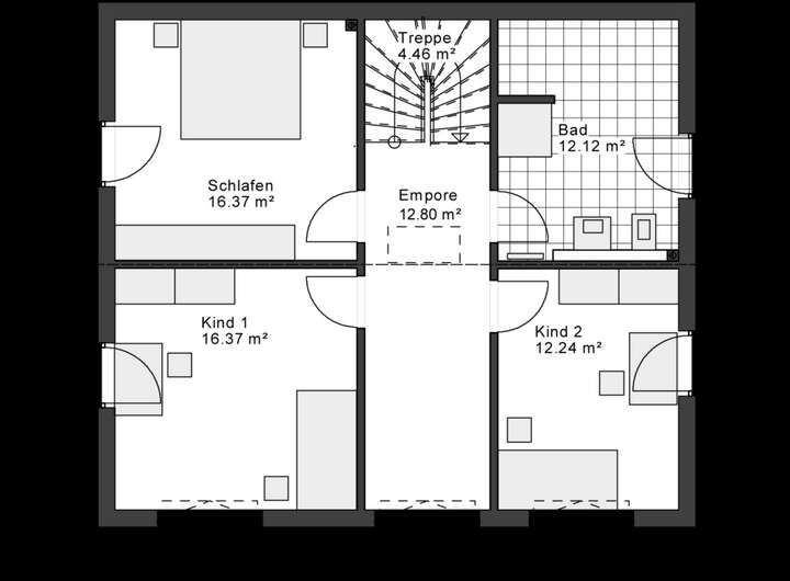
Grundriss
Grundriss EG
>
>
Grundriss OG
>
>
Adresse
67294 Stetten
Interessante Orte
Preis- und Lageinformationen
Preistrend für Bestandsimmobilien in Stetten