Ein Doppelhaus mit dem Mehr an Eleganz: Durch ein gemeinsames Walmdach werden die Doppelhaushälften optisch miteinander verbunden, gewinnen dadurch in der Außenwirkung an Größe und vermitteln den Charme einer eleganten Stadtvilla. Dabei ist Linus durch seine Außenmaße bestens für schmal geschnittene Grundstücke geeignet.
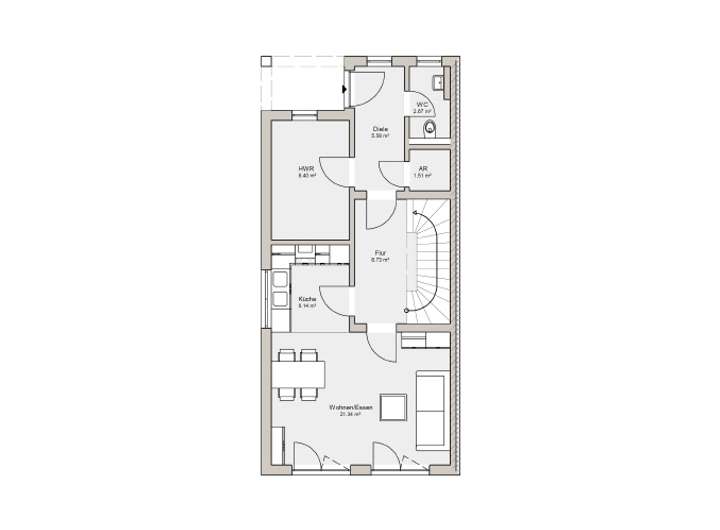
Nicht nur optisch hat das Doppelhaus von außen einiges zu bieten, sondern Linus zeigt sich auch praktisch: Durch einen überdachten Eingangsbereich gelangen Sie trockenen Fußes in Ihr Traumhaus. Einkäufe können Sie direkt neben dem Eingang im Hauswirtschaftsraum oder im Abstellraum unterbringen. Highlight des Erdgeschosses ist die offene Raumgestaltung von der Küche hin in den Wohn- und Essbereich. In der rechten Doppelhaushälfte haben Sie zudem einen Erker in der Küche. Das Erdgeschoss wird komplettiert durch ein Gäste-WC.
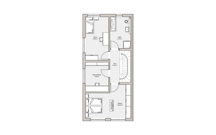
Im Obergeschoss hat ein Kinderzimmer, ein Eltern-Schlafzimmer, ein Home-Office und ein Familien-Badezimmer Platz. Durch bodentiefe Fenster werden die Räume zur Gartenseite sowohl im Erd- als auch im Obergeschoss lichtdurchflutet.
Dieses Haus wird nach Ihren individuellen Wünschen geplant und ausgestattet!
Teilen Sie Ihr Wohnglück in bester Lage!
65232 Taunusstein
Die vollständige Adresse der Immobilie erhalten Sie vom Anbieter.
Auf Karte anzeigen
Die vollständige Adresse der Immobilie erhalten Sie vom Anbieter.
Finanzierungszertifikat
In nur zwei Minuten zu Ihrem persönlichen Finanzierungszertifkat.
Infos
| Haustyp | Doppelhaushaelfte |
|---|---|
| Wohnfläche ca. | 110 m2 |
| Grundstücksfläche | 255 m2 |
| Zimmer | 4 |
| Schlafzimmer | 3 |
| Badezimmer | 1 |
| Anzahl Garage/Stellplatz | 2 |
Kosten
| Kaufpreis |
555.900 € |
|---|---|
| Provision | Nein |
Finanzierungsrechner:
Kaufpreis:
600.000 €
Eigenkapital:
600.000 €
Monatliche Rate
0 €
Effektiver Jahreszins
0 %
Sollzinsbindung
10 Jahre
Bausubstanz & Energieausweis
| Baujahr | 2026 |
|---|---|
| Bauphase | Haus in Planung (projektiert) |
| Objektzustand | Erstbezug |
| Qualität der Austattung | Gehoben |
| Heizungsart | Wärmepumpe |
| Wesentliche Energieträger | Strom |
| Energieausweis | liegt vor |
| Energieausweistyp | Bedarfsausweis |
| Energieverbrauchskennwert | 18,2 kWh/(m²*a) |
| Energieeffizienzklasse | A+ |
18,2
kWh/(m²*a)
Energieeffizienzklasse A+
- A+
- A
- B
- C
- D
- E
- F
- G
- H
- 0
- 25
- 50
- 75
- 100
- 125
- 150
- 175
- 200
- 225
- >250
Beschreibung des Objekts
Ausstattung
4 Zimmer, offene Küche, Diele, WC, 2 x Flur, Bad, Hauswirtschaftsraum, Abstellraum
Das gezeigte Traumhaus im Überblick:
+ Schlüsselfertiges Massivhaus im Sinne der Ausstattungsbeschreibung "Edition 25"
+ Zukunftsorientierte Energieausstattung in Form einer Luft-Wasser-Wärmepumpe und Fußbodenheizung sowie einer kontrollierten Wohnraumlüftung mit Wärmerückgewinnung
+ Inklusive Bodenplatte
Beste Markenausstattung in jedem Kern-Haus:
+ Zimmermannsmäßiger Dachstuhl aus Konstruktionsvollholz
+ Dacheindeckung mit Betondachsteinen von Braas
+ Hochwertiger Kunstharz-Außenputz für eine langlebige Fassade
+ Vollständige Badausstattung von Villeroy & Boch mit Badewanne und flacher Duschwanne sowie einer Echtglasduschkabine
+ Fliesen von Villeroy & Boch in Bad und WC
+ Haustür mit 5-fach-Sicherheitsverriegelung
+ Erstklassige Innentüren der Marke Herholz
+ Fenster mit 3-Scheiben-Wärmeschutzverglasung und Rollläden
+ Stahl-Holz-Treppe mit individueller Farbgestaltungsmöglichkeit
+ Vollständige und überdurchschnittliche Elektroausstattung inklusive Klingelanlage und Netzwerkdosen
+ Rauchmelder für Ihre Sicherheit
+ Alle Leistungen aus einer Hand
+ Alle Planungs- und Architektenleistungen
+ Einsatz regionaler Handwerksbetriebe
+ Baubegleitende 5-Phasen-TÜV-Prüfung und Blower-Door-Test
+ Individuelle Anpassung auf Ihre Bedürfnisse
+ Auf Wunsch mit Keller erhältlich
+ Auf Wunsch mit weiteren Energietechniken erhältlich
Lage
Dieses tolle Baugrundstück befindet sich in einer ruhigen, sehr gefragten Lage von Taunusstein-Wehen, einem Stadtteil von Taunusstein. Die Stadt liegt ca. 9 km nordwestlich der Landeshauptstadt Wiesbaden
Im Ort kreuzen sich die Landesstraße 3470 (Platter Straße/Weiherstraße) und die Bundesstraße 275. Die Anbindung an die Autobahn A3 (Anschluss Idstein) und die A66 Richtung Frankfurt ist über die B 54/B 417 in etwa 10 Minuten erreichbar.
In Wehen gibt es zwei Kindertagesstätten und eine Grundschule, weiterführende Schulen sind in Taunusstein vorhanden.
Der Aar-Höhenweg ist ein Wanderweg, der weitgehend oberhalb des Aartals verläuft und landschaftlich reizvolle Ausblicke auf Wälder, Wiesen und Felder bietet. Auch der Naturpark Rhein-Taunus bietet zahlreiche Möglichkeiten für Wanderungen und Outdoor-Aktivitäten.
Sonstige Angaben
Kern-Haus baut individuelle und massive Architektenhäuser zu einem attraktiven Preis-Leistungs-Verhältnis – und das bereits mit einer Erfahrung seit 1980. Bei Kern-Haus erhalten Sie unter anderem 10 Jahre Gewährleistung auf die wesentlichen Bauleistungen, bis zu 24 Monate Preissicherheit sowie eine dokumentierte 5-Phasen-TÜV-Prüfung während der Bauphase. Jedes Kern-Haus als Effizienzhaus 40 ist bereits QNG-zertifiziert durch die Deutsche Gesellschaft für nachhaltiges Bauen (DGNB).
40 Jahre Expertise für das massive, energieeffiziente Bauen: Kern-Haus realisiert Massivhäuser in Ziegel, Bims, Porenbeton oder Stahlbeton (DuoTherm).
Kern-Haus setzt auf eine hohe Bauqualität der Handwerker und auf eine große Auswahl starker Marken. So verwendet Kern-Haus beim Bau Ihres Hauses nur hochwertige Markenprodukte renommierter Hersteller – wie etwa Produkte von Villeroy & Boch.
Preise und Auszeichnungen von Kern-Haus:
- German Brand Award in den Jahren 2018 und 2021
- Hausbau Design Award: Sieger in den Jahren 2017, 2018, 2019, 2020, 2021, 2022 und 2023
- Deutscher Traumhauspreis: Sieger in den Jahren 2014, 2015, 2016 und 2018 und Silber 2017, 2020 und 2021
- Mittelstandspreis "Top 100" in den Jahren 2014, 2016, 2018, 2020 und 2022
- German Design Award im Jahr 2018
Weitere Informationen
Der gezeigte Preis versteht sich inklusive Grundstück und exklusive der Baunebenkosten.
Grundriss
Grundriss Erdgeschoss
>
>
Grundriss Obergeschoss
>
>
Adresse
65232 Taunusstein
Interessante Orte
Preis- und Lageinformationen
Preistrend für Bestandsimmobilien in Taunusstein