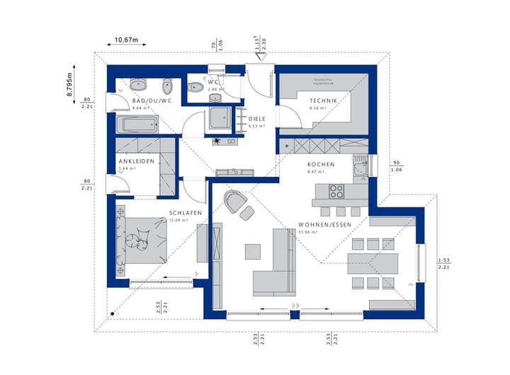
Sind die Kinder aus dem Haus, beginnt für Paare ein ganz neuer Lebensabschnitt. Viele nutzen die Gelegenheit, um noch einmal neu zu bauen - diesmal jedoch kleiner, ebenerdig und mit jeder Menge Komfort. Wie der perfekte Altersruhesitz für zwei Personen aussehen kann, zeigt exemplarisch der Entwurf AMBIENCE 77 - in dieser Version mit flach geneigtem Walmdach und weiten Dachüberständen, die dem Bungalow einen mediterranen Touch verleihen. Das Gebäude kann auch mit einem klassischen Sattel- oder einem puristischen Flachdach gekrönt werden - je nach Vorgaben des Bebauungsplans und individuellem Geschmack. Auch bei der Fassadengestaltung können die Bauherren ihren persönlichen Vorlieben Ausdruck verleihen. Sehr edel wirkt etwa ein hellgrauer Putz, der wunderbar mit dem rot eingedeckten Dach kontrastiert. Ein schönes Detail ist der XL-Übereck-Erker auf der Gartenseite. Er vergrößert die Wohnfläche im Innern des Fertighauses auf insgesamt mehr als 91 m². Fast die Hälfte davon wird von den offen angelegten Gemeinschaftsräumen eingenommen, die sich bis in den lichtdurchfluteten Erker erstrecken. Über raumhohe Schiebetüren gelangt man barrierefrei auf die Terrasse, die an lauen Sommerabenden zum geselligen Beisammensein mit Freunden und der Familie einlädt. Ruhe und Entspannung finden die Bewohner in den gemütlichen Privaträumen, die aus einem Schlafzimmer mit angeschlossenem Ankleidebereich und einem Badezimmer mit WC, bodengleicher Dusche und Wanne bestehen. Abgerundet wird das Raumprogramm von einem separatem Gäste-WC und einem geräumigen Technikraum, in dem die Komponenten der Wohlfühl-Klima-Heizung+ untergebracht werden. Sie sorgt nicht nur für wohlige Wärme im Winter, sondern dank Kühlfunktion auch für angenehme Temperaturen im Sommer. Noch mehr Komfort zieht mit einem Smart-Home-Paket ein. Die intelligente Gebäudesteuerung regelt sämtliche Hausfunktionen wie die Beschattung, die Beleuchtung oder die Heizung automatisch, ohne dass sich die Bewohner darum kümmern müssen. Auch eine Photovoltaikanlage lässt sich in das System einbinden.
Bungalow mit mediterranem Flair BIEN-ZENKER
94339 Leiblfing
Die vollständige Adresse der Immobilie erhalten Sie vom Anbieter.
Auf Karte anzeigen
Die vollständige Adresse der Immobilie erhalten Sie vom Anbieter.
Finanzierungszertifikat
In nur zwei Minuten zu Ihrem persönlichen Finanzierungszertifkat.
Infos
| Haustyp | Bungalow |
|---|---|
| Wohnfläche ca. | 90 m2 |
| Grundstücksfläche | 700 m2 |
| Zimmer | 2,5 |
| Schlafzimmer | 1 |
| Badezimmer | 1 |
Kosten
| Kaufpreis |
537.669 € |
|---|---|
| Provision |
3,57 % inkl. MwSt. auf das Grundstück Vermittlungs-/Nachweisgebühr in Höhe von 3,57 % des Grundstückskaufpreises inklusive der gesetzlichen Mehrwertsteuer nach notariellem Vertragsabschluss nach sich zieht. Durch Ihre weitere Objektanfrage bestätigen Sie die Vereinbarung und Anerkennung dieser Maklercourtage. Die Maklercourtage fällt nicht auf den Hauspreis an. |
Finanzierungsrechner:
Kaufpreis:
600.000 €
Eigenkapital:
600.000 €
Monatliche Rate
0 €
Effektiver Jahreszins
0 %
Sollzinsbindung
10 Jahre
Bausubstanz & Energieausweis
| Baujahr | unbekannt |
|---|---|
| Bauphase | Haus in Planung (projektiert) |
Beschreibung des Objekts
Ausstattung
Bei einem Bien-Zenker Fertighaus bedeutet "Schlüsselfertig" auch wirklich "Schlüsselfertig". Wir wissen, dass viele Bauherren einfach nur noch in ihr fertiges Haus einziehen und dabei möglichst wenige Leistungen selbst ausführen und sich auch ansonsten um wenig selbst kümmern möchten. Meist, weil Beruf und Familie keinen Raum für Eigenleistungen lassen, die handwerklichen Möglichkeiten nicht für alle Leistungen ausreichend sind oder ganz einfach: weil es viel mehr Spaß macht, den Spezialisten in allen Phasen des Hausbaus einfach nur über die Schulter zu schauen. Stressfrei zu erleben, wie Stufe für Stufe ein modernes, qualitativ hochwertiges und nachhaltiges Haus entsteht. Wir von Bien-Zenker nehmen Ihnen so viele Aufgaben wie möglich bei der Ausbaustufe "Schlüsselfertig" ab, sodass Sie maximal stressfrei bauen können und nach Erhalt Ihrer Hausschlüssel direkt in Ihr neues Bien-Zenker Haus einziehen können.
Natürlich gibt es auch andere Wünsche. Und deshalb bieten wir neben der schlüsselfertigen Variante unserer massiven Fertighäuser noch die Ausbaustufen "Zur Ausstattung fertig" und "Ausbauhaus". Bei einem ersten Gespräch mit mir besprechen wir Ihr ganz individuelles Leistungspaket. Ganz so, wie Sie sich das wünschen.
Nach individueller Planung Ihres Hauses mit unserem Architekten treffen Sie im Bien-Zenker Ausstattungszentrum dann Ihre Wahl: An ein oder zwei Tagen legen Sie im Detail fest, welche Ausstattung in Ihrem Haus verbaut wird und wie Sie es von außen gestalten. Welche Fliesen wo, welche Türen wie, welche Armaturen auf welcher Keramik. Welche Smart Home-Features wünschen Sie sich? Und welches Design ziert Ihr Haus? Mit der kompetenten Unterstützung Ihres Bemusterungs-Beraters statten Sie Ihr Bien-Zenker Haus mit allem aus, was dazugehört.
Dass die Räume sommers wie winters die richtige Wohlfühltemperatur haben, gehört da natürlich auch dazu. Deshalb haben Sie bei der Wahl der Ausstattung Ihres Hauses bei Bien-Zenker auch eine große Auswahl an modernen und hocheffizienten Heizungsanlagen mit Wärmepumpen. Besonders in der Kombination mit einer Photovoltaikanlage und einem Stromspeicher sorgen sie dafür, dass in Ihrem Fertighaus zu dauerhaft niedrigen Energiekosten in jeder Jahreszeit die idealen Wohlfühltemperaturen herrschen. Und mit der Wallbox bleiben Sie mit Ihrem eigenen Sonnenstrom außerdem auch mobil.
Entdecken Sie Ihre Optionen in einem persönlichen Gespräch!
Lage
In einer neuen Siedlung bei Leiblfing werden neue Bauparzellen erschlossen. In idylischer Lage mit schönem Ausblick und unweit der Gäubodenstadt Straubing ist dieser Ort verkehrsgünstig gelegen.
Sonstige Angaben
Es handelt sich hier um ein projektiertes Haus in der Planung! Im Preis enthalten ist die Dämmstufe Effizienzhaus 55 inkl. Wohlfühl-Klima-Heizung + welche optional auf Effizienzhaus 40 oder 40 + inkl. Photovoltaikanlage erweitert werden kann. Änderungen in der Grundrissgestaltung, Technik, Ausstattung und der Architektur sind beliebig möglich. Ebenso können verschiedene Ausbaugewerke in Eigenleistung ausgeführt werden.
Nähere Informationen erhalten Sie gerne in einem persönlichen Gespräch.
Erzählen Sie mir, was Sie sich für Ihr neues Haus wünschen und gemeinsam entwickeln wir Ihr individuell auf Ihre Anforderungen und Möglichkeiten zugeschnittenes Bien-Zenker Traumhaus.
Am besten machen wir dazu direkt einen Termin aus. Rufen Sie mich einfach an oder schicken Sie mir Ihren Terminwunsch per E-Mail.
Ich freue mich auf Sie!
Das Grundstück ist im Preis inbegriffen! Die Abbildungen und Grundrisse können kostenpflichtige Zusatzausstattungen zeigen, die nicht im Angebotspreis enthalten sind. Im Preis sind keine Bau- oder Kaufnebenkosten enthalten.
Adresse
94339 Leiblfing
Interessante Orte
Preis- und Lageinformationen
Preistrend für Bestandsimmobilien in Leiblfing