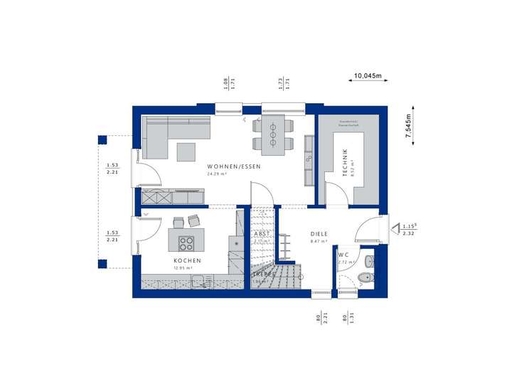
Das Einfamilienhaus mit Satteldach ist nach wie vor der am häufigsten gebaute Haustyp. Kein Wunder, bringt diese Dachform doch zahlreiche Vorteile mit sich: Zum einen ist sie einfach in ihrer Konstruktion, zum anderen nahezu überall baurechtlich umsetzbar. Dabei eröffnet die moderne Satteldacharchitektur einen großen Gestaltungsspielraum. Ob weite Dachüberstände oder ganz ohne, ob steil oder flach geneigt: Stilgerecht erfüllt das Dach die individuellen Ansprüche der Bauherren. Bei diesem Hausentwurf sorgt die flache Neigung im Zusammenspiel mit dem pultdachgekrönten Zwerchgiebel für ein sehr modernes, geradliniges Erscheinungsbild. Weite Dachüberstände und die leuchtend rote Eindeckung knüpfen an die traditionelle Bauweise an. Damit passt sich das Fertighaus auch in gewachsene Baugebiete harmonisch ein. Ein schönes Detail ist der von Stützen getragene Balkon, der das Dachgeschoss um ein sonniges Plätzchen unter freiem Himmel erweitert und die Terrasse zudem vor Regen schützt. Das Innere des Hauses überzeugt mit einem klaren, leicht verständlichen Grundriss, der sich am Alltag einer vierköpfigen Familie orientiert. Empfangen werden die Bewohner und Besucher von einer geräumigen Diele, in der sich auch mehrere Personen gleichzeitig aufhalten können, ohne dass Gedränge entsteht. Rechts schließt sich der Technikraum und links das Gäste-WC an. Über einen offen Durchgang gelangt man von der Diele direkt in den Wohn- und Essbereich, wo man es sich entweder am großen Esstisch oder auf der Couch gemütlich machen kann. Die Küche wurde über Eck halboffen an das Raumensemble angegliedert. So haben Gäste nicht ständig Töpfe und Geschirr im Blick. Vorräte und andere Dinge, die man nicht täglich benötigt, verschwinden ordentlich in der Abstellkammer unter der viertelgewendelten Treppe. Das Dachgeschoss ist für die Privaträume reserviert. Die Wohnfläche teilen sich zwei große Kinderzimmer, der Elternschlafraum sowie ein schönes Familienbad mit ausreichend Platz für eine Wanne und eine bodengleiche Dusche im XL-Format.
Fertighaus für Stilbewusste BIEN-ZENKER
94339 Leiblfing
Die vollständige Adresse der Immobilie erhalten Sie vom Anbieter.
Auf Karte anzeigen
Die vollständige Adresse der Immobilie erhalten Sie vom Anbieter.
Finanzierungszertifikat
In nur zwei Minuten zu Ihrem persönlichen Finanzierungszertifkat.
Infos
| Haustyp | Einfamilienhaus |
|---|---|
| Wohnfläche ca. | 121 m2 |
| Grundstücksfläche | 700 m2 |
| Zimmer | 4 |
| Schlafzimmer | 3 |
| Badezimmer | 1 |
Kosten
| Kaufpreis |
610.593 € |
|---|---|
| Provision |
3,57 % inkl. MwSt. auf das Grundstück Vermittlungs-/Nachweisgebühr in Höhe von 3,57 % des Grundstückskaufpreises inklusive der gesetzlichen Mehrwertsteuer nach notariellem Vertragsabschluss nach sich zieht. Durch Ihre weitere Objektanfrage bestätigen Sie die Vereinbarung und Anerkennung dieser Maklercourtage. Die Maklercourtage fällt nicht auf den Hauspreis an. |
Finanzierungsrechner:
Kaufpreis:
600.000 €
Eigenkapital:
600.000 €
Monatliche Rate
0 €
Effektiver Jahreszins
0 %
Sollzinsbindung
10 Jahre
Bausubstanz & Energieausweis
| Baujahr | unbekannt |
|---|---|
| Bauphase | Haus in Planung (projektiert) |
Beschreibung des Objekts
Ausstattung
Bei einem Bien-Zenker Fertighaus bedeutet "Schlüsselfertig" auch wirklich "Schlüsselfertig". Wir wissen, dass viele Bauherren einfach nur noch in ihr fertiges Haus einziehen und dabei möglichst wenige Leistungen selbst ausführen und sich auch ansonsten um wenig selbst kümmern möchten. Meist, weil Beruf und Familie keinen Raum für Eigenleistungen lassen, die handwerklichen Möglichkeiten nicht für alle Leistungen ausreichend sind oder ganz einfach: weil es viel mehr Spaß macht, den Spezialisten in allen Phasen des Hausbaus einfach nur über die Schulter zu schauen. Stressfrei zu erleben, wie Stufe für Stufe ein modernes, qualitativ hochwertiges und nachhaltiges Haus entsteht. Wir von Bien-Zenker nehmen Ihnen so viele Aufgaben wie möglich bei der Ausbaustufe "Schlüsselfertig" ab, sodass Sie maximal stressfrei bauen können und nach Erhalt Ihrer Hausschlüssel direkt in Ihr neues Bien-Zenker Haus einziehen können.
Natürlich gibt es auch andere Wünsche. Und deshalb bieten wir neben der schlüsselfertigen Variante unserer massiven Fertighäuser noch die Ausbaustufen "Zur Ausstattung fertig" und "Ausbauhaus". Bei einem ersten Gespräch mit mir besprechen wir Ihr ganz individuelles Leistungspaket. Ganz so, wie Sie sich das wünschen.
Nach individueller Planung Ihres Hauses mit unserem Architekten treffen Sie im Bien-Zenker Ausstattungszentrum dann Ihre Wahl: An ein oder zwei Tagen legen Sie im Detail fest, welche Ausstattung in Ihrem Haus verbaut wird und wie Sie es von außen gestalten. Welche Fliesen wo, welche Türen wie, welche Armaturen auf welcher Keramik. Welche Smart Home-Features wünschen Sie sich? Und welches Design ziert Ihr Haus? Mit der kompetenten Unterstützung Ihres Bemusterungs-Beraters statten Sie Ihr Bien-Zenker Haus mit allem aus, was dazugehört.
Dass die Räume sommers wie winters die richtige Wohlfühltemperatur haben, gehört da natürlich auch dazu. Deshalb haben Sie bei der Wahl der Ausstattung Ihres Hauses bei Bien-Zenker auch eine große Auswahl an modernen und hocheffizienten Heizungsanlagen mit Wärmepumpen. Besonders in der Kombination mit einer Photovoltaikanlage und einem Stromspeicher sorgen sie dafür, dass in Ihrem Fertighaus zu dauerhaft niedrigen Energiekosten in jeder Jahreszeit die idealen Wohlfühltemperaturen herrschen. Und mit der Wallbox bleiben Sie mit Ihrem eigenen Sonnenstrom außerdem auch mobil.
Entdecken Sie Ihre Optionen in einem persönlichen Gespräch!
Lage
In einer neuen Siedlung bei Leiblfing werden neue Bauparzellen erschlossen. In idylischer Lage mit schönem Ausblick und unweit der Gäubodenstadt Straubing ist dieser Ort verkehrsgünstig gelegen.
Sonstige Angaben
Es handelt sich hier um ein projektiertes Haus in der Planung! Im Preis enthalten ist die Dämmstufe Effizienzhaus 55 inkl. Wohlfühl-Klima-Heizung + welche optional auf Effizienzhaus 40 oder 40 + inkl. Photovoltaikanlage erweitert werden kann. Änderungen in der Grundrissgestaltung, Technik, Ausstattung und der Architektur sind beliebig möglich. Ebenso können verschiedene Ausbaugewerke in Eigenleistung ausgeführt werden.
Nähere Informationen erhalten Sie gerne in einem persönlichen Gespräch.
Erzählen Sie mir, was Sie sich für Ihr neues Haus wünschen und gemeinsam entwickeln wir Ihr individuell auf Ihre Anforderungen und Möglichkeiten zugeschnittenes Bien-Zenker Traumhaus.
Am besten machen wir dazu direkt einen Termin aus. Rufen Sie mich einfach an oder schicken Sie mir Ihren Terminwunsch per E-Mail.
Ich freue mich auf Sie!
Das Grundstück ist im Preis inbegriffen! Die Abbildungen und Grundrisse können kostenpflichtige Zusatzausstattungen zeigen, die nicht im Angebotspreis enthalten sind. Im Preis sind keine Bau- oder Kaufnebenkosten enthalten.
Adresse
94339 Leiblfing
Interessante Orte
Preis- und Lageinformationen
Preistrend für Bestandsimmobilien in Leiblfing