Dieses schön gelegene Haus mit 2 Wohneinheiten besitzt eine Wohnfläche von ca. 200 m² mit insgesamt 9 Zimmer und hat eine Grundstücksgröße von ca. 461 m².
Der vordere Teil des Hauses wurde 1923 massiv gebaut und der Anbau ist 1962 erfolgt. Die ehemalige Scheune wurde 1994 in eine Wohneinheit ausgebaut. Beide Wohneinheiten sind miteinander verbunden, aber haben auch jeweils einen eigenen Hauseingang.
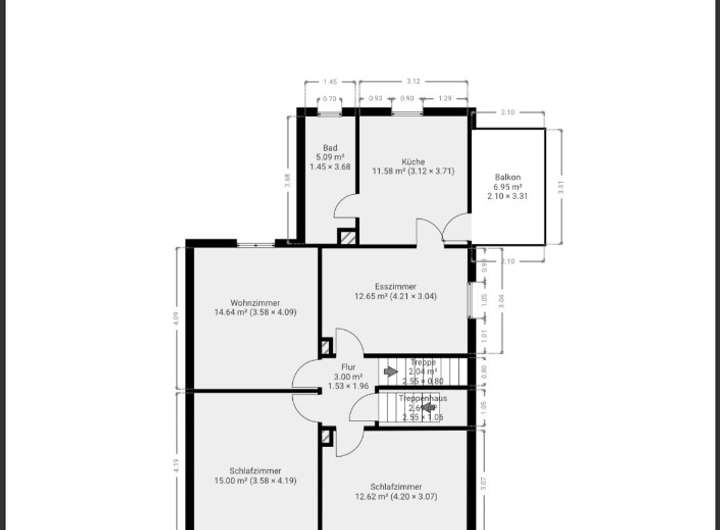
Die Raumaufteilung ist wie folgt:
Vorderhaus mit ca. 150 m²:
EG: 4 Zimmer, WC, Wannenbad + Zugang zur 2. Wohneinheit (siehe Grundrisse)
OG: 4 Zimmer, Küche, Vollbad, Balkon
DG: 2 Räume mit Ausbaupotenzial
KG: Heizungsraum, Waschküche, 2 Kellerräume, WC, Dusche, Sauna, Zusätzlicher Kellerraum von außen begehbar
Hinterhaus mit ca. 50 m²:
UG/EG: Küche, Duschbad
EG/OG: Wohn-/Schlafzimmer, Balkon
Der Garten mit überdachter Terrasse lädt zum Entspannen ein und genügend Stellplatzmöglichkeiten befinden sich vor dem Haus sowie in den beiden Einzelgaragen wovon eine Garage ein elektrisches Tor und ein Abstellraum besitzt.
Großes Zweifamilienhaus mit viel Potenzial und neuer Heizung!
61130 Nidderau
Die vollständige Adresse der Immobilie erhalten Sie vom Anbieter.
Auf Karte anzeigen
Die vollständige Adresse der Immobilie erhalten Sie vom Anbieter.
Finanzierungszertifikat
In nur zwei Minuten zu Ihrem persönlichen Finanzierungszertifkat.
Infos
| Haustyp | Mehrfamilienhaus |
|---|---|
| Wohnfläche ca. | 200 m2 |
| Grundstücksfläche | 461 m2 |
| Zimmer | 9 |
| Garage/Stellplatz | Garage |
| Anzahl Garage/Stellplatz | 2 |
Kosten
| Kaufpreis |
399.900 € |
|---|---|
| Provision |
3,57 %inkl. MwSt Mit Unterzeichnung des notariellen Kaufvertrages ist eine Maklerprovision in Höhe von 3,57 % inklusive gesetzlich gültiger MwSt., bezogen auf den vereinbarten Kaufpreis, verdient und fällig und vom Käufer an die Firma Schönrich Immobilien GmbH zu zahlen. |
Finanzierungsrechner:
Kaufpreis:
600.000 €
Eigenkapital:
600.000 €
Monatliche Rate
0 €
Effektiver Jahreszins
0 %
Sollzinsbindung
10 Jahre
Bausubstanz & Energieausweis
| Baujahr | 1923 |
|---|---|
| Objektzustand | Modernisiert |
| Heizungsart | Zentralheizung |
| Energieausweis | liegt vor |
| Energieausweistyp | Bedarfsausweis |
| Energieverbrauchskennwert | 110,9 kWh/(m²*a) |
| Energieeffizienzklasse | D |
110,9
kWh/(m²*a)
Energieeffizienzklasse D
- A+
- A
- B
- C
- D
- E
- F
- G
- H
- 0
- 25
- 50
- 75
- 100
- 125
- 150
- 175
- 200
- 225
- >250
Beschreibung des Objekts
Ausstattung
- Moderne Warmepumpe 2024 & Photovoltaikanlage 2024 - niedrige Energiekosten
- Überdachte Gartenterrasse
- Gemütlicher Kamin im Wohnbereich
- Keller und Dachboden mit Potenzial und Stauraum
- Zwei Einzelgaragen (eine mit Abstellraum und elektrischem Tor)
- Dach 1997
- doppelt verglaste Kunststofffenster und Holzfenster 90er Jahre
- Bodenbeläge: Original Dielenboden, Laminat, Fliesen
- Original Treppe 1923
- Entkalkungsanlage 2024
- Sauna 2014
- Innendämmung in 2 Räumen 2015 und 2020
- Glasfaseranschluss
Lage
Das Haus befindet sich in Nidderau-Ostheim. Nidderau besteht aus 5 Stadtteilen und besitzt eine sehr gute Infrastruktur.
Bus- und Bahnverbindung sind vorhanden. Auch mit dem Auto ist man innerhalb von 15 Minuten auf der A66 Richtung Frankfurt. Die B45 liegt nur max. 5 Autominuten von Nidderau entfernt.
Kino, Schwimmbad, Baumarkt, Ärzte, Schulen und Kindergärten sind in Nidderau vorhanden. Viele Einkaufsmöglichkeiten in verschiedenen Geschäften sowie eine Apotheke bietet das Nidder Forum, das im Ortsteil Heldenbergen liegt. Zudem stehen dort zahlreiche Dienstleistungsangebote sowie das Familienzentrum der Stadt Nidderau zur Verfügung. Attraktiv ist das Einkaufszentrum ebenfalls durch sein abwechslungsreiches Gastronomieangebot und die regelmäßigen Veranstaltungen.
Für mehr Informationen zur Stadt Nidderau sprechen Sie uns einfach an oder sehen sich die Internetseite der Stadt an unter www.stadt-nidderau.de
Sonstige Angaben
Bitte senden Sie uns über „Anbieter kontaktieren“ Ihre Anfrage mit Ihren kompletten Kontaktdaten (Name, Anschrift, Telefonnummer, E-Mail) zu. Wir schicken Ihnen daraufhin ein Exposé mit der genauen Adresse sowie weiteren Informationen bzw. Unterlagen zu und vereinbaren auf Wunsch gerne einen Besichtigungstermin mit Ihnen. Wir bitten um Ihr Verständnis, dass wir Ihnen erst nach schriftlicher Anfrage weitere Informationen zu diesem Objekt zur Verfügung stellen können. Möchten Sie einen Suchauftrag bei uns aufgeben oder suchen Sie nach weiteren Objekten, dann besuchen Sie unsere Internetseite www.schoenrich-immobilien.de.
Grundriss
Grundriss EG
>
>
Grundriss OG
>
>
Grundriss UG und KG
>
>
Adresse
61130 Nidderau
Interessante Orte
Preis- und Lageinformationen
Preistrend für Bestandsimmobilien in Nidderau