Stadthaus statt Eigentumswohnung - die kluge Wahl für mehr Raum und Privatsphäre, ohne lästige Gartenarbeit, aber mit allen Vorteilen des städtischen Lebensstils. Angeboten wird eine renovierungsbedürftige, bezahlbare Einstiegsimmobilie mit solider Bausubstanz, die ihresgleichen sucht.
Das Haus wurde um 1925 in solider Massivbauweise erbaut und liegt hübsch eingebettet inmitten einer traditionsreichen, familienfreundlichen Wohnlage von Alzey.
Die Immobilie wurde vom Voreigentümer in den Jahren 2014 bis 2015 umfassend modernisiert. In diesem Zeitraum wurde die Fassade, die Fenster und die Heizung erneuert. Im Jahr 2016 erfolgte die Renovierung der Wohnräume, inkl. der Bodenbeläge sowie die Neueindeckung des Innenhofs.
Der Grundriss, bzw. die räumliche Anordnung des Hauses bietet reichlich Gestaltungsspielraum für eine moderne Umstrukturierung, um es den eigenen Vorstellungen anzupassen.
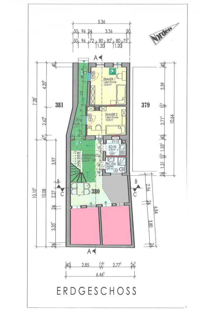
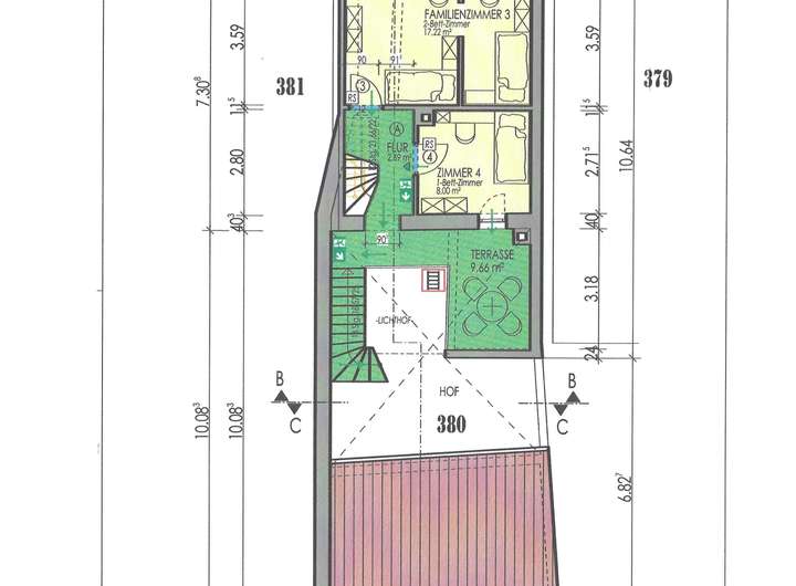
Die kompakte Wohnfläche von ca. 98 m² erstreckt sich über 3 Etagen, wobei das Obergeschoss über eine Außentreppe im überdachten Innenhof zugänglich ist.
Jede der drei Etagen beherbergt zwei Zimmer mit flexibler Nutzung.
Das Stadthaus verfügt weder über eine eigene Garage noch über einen eigenen Parkplatz. In der Straße besteht jedoch die Möglichkeit, mit einem Bewohnerparkausweis auf ausgewiesenen Flächen zu parken.
Stadthaus mit Potential - die kluge Wahl für mehr Raum und Privatsphäre!
55232 Alzey
Die vollständige Adresse der Immobilie erhalten Sie vom Anbieter.
Auf Karte anzeigen
Die vollständige Adresse der Immobilie erhalten Sie vom Anbieter.
Finanzierungszertifikat
In nur zwei Minuten zu Ihrem persönlichen Finanzierungszertifkat.
Infos
| Etagenzahl | 2 |
|---|---|
| Wohnfläche ca. | 98 m2 |
| Nutzfläche | 36,5 m2 |
| Grundstücksfläche | 98 m2 |
| Bezugsfrei ab | Kurzfristig, nach Vereinbarung |
| Zimmer | 6 |
| Schlafzimmer | 4 |
| Badezimmer | 1 |
| Anzahl Garage/Stellplatz | 0 |
Kosten
| Kaufpreis |
146.000 € |
|---|---|
| Provision |
3,57 %, inkl. gesetzl. Mehrwertsteuer vom Kaufpreis 3,57 %, inkl. gesetzl. Mehrwertsteuer vom Kaufpreis. Die Provision ist verdient und fällig bei notarieller Beurkundung. Wir haben einen Provisionspflichtigen Maklervertrag in gleicher Höhe mit dem Verkäufer abgeschlossen, § 656 c BGB. |
Finanzierungsrechner:
Kaufpreis:
600.000 €
Eigenkapital:
600.000 €
Monatliche Rate
0 €
Effektiver Jahreszins
0 %
Sollzinsbindung
10 Jahre
Bausubstanz & Energieausweis
| Baujahr | 1925 |
|---|---|
| Letzte Sanierung | 2018 |
| Bauphase | Haus fertig gestellt |
| Qualität der Austattung | Einfach |
| Heizungsart | Zentralheizung |
| Wesentliche Energieträger | Gas |
| Energieausweis | liegt vor |
| Energieausweistyp | Bedarfsausweis |
| Energieverbrauchskennwert | 227,4 kWh/(m²*a) |
Beschreibung des Objekts
Ausstattung
Die Highlights im Überblick:
* Zentrale Wohnlage im Herzen von Alzey,
* Seitenstraße, kein Hauptverkehr,
* Alle City-Lifestyle-Annehmlichkeiten buchstäblich um die Ecke,
* Charmantes, kompaktes Stadthaus mit überdachtem Innenhof und Terrasse,
* Wertbeständige Massivbauweise,
* 6 Zimmer, Küche, Bad,
* 2 Abstellräume im Innenhof,
* Grundrenoviert 2013-2015,
* Dachausbau, inkl. Dämmung und neuen Dachflächenfenster 2018,
* Kosmetische Renovierung 2016,
* Holzdielen, Fliesen- und Laminatböden,
* Fernseh- und Telefonanschluss,
* Gas-Therme (Bj. 2015 Vaillant), jährlich geprüft und gewartet,
* KEIN eigener PKW-Stellplatz;
* Einwohner Parkausweis kann bei Bedarf bei der Stadt beantragt werden.
Lage
Diese absolute Innenstadtlage macht diese Immobilie so besonders.
Das Haus befindet sich in einer kleinen Seitenstraße, parallel der pulsierenden Hospitalstraße, mitten in Alzey.
Genießen Sie den Wohnkomfort in allen Zügen, auch außerhalb der eigenen vier Wände.
Nur einen Katzensprung entfernt und fußläufig erreichbar befindet sich alles; was man zum Leben braucht. Sei es die Bushaltestelle, die Einkaufsmöglichkeiten, oder ein Café-, Restaurant-, Post-, Bank- oder Ärztebesuch;
All dies und vieles mehr können Sie schnell und unkompliziert ohne Auto erreichen.
In ein paar Gehminuten ist der Hauptbahnhof zu erreichen. Die Bahnverbindung Alzey-Mainz, -Bingen, Kirchheimbolanden und Worms geht meist im 30-min Takt.
Alzey bietet eine einzigartige Infrastruktur, viele Einkaufsmöglichkeiten, Fachgeschäfte, Lebensmittel und Discounter (Aldi, REWE, Kaufland, Netto, Lidl, etc.), Spiel-, Sport- Freizeitanlagen (Fitnesscenter, Freischwimmbad) sowie Banken eine komplette Ärzteversorgung, inkl. zwei Krankenhäuser (die Rheinhessen-Fachklinik und das DRK-Krankenhaus). Außerdem glänzt Alzey mit zahlreichen Bildungseinrichtungen. Beginnend mit zahlreichen Kindergärten (auch Ganztagsbetreuung), Grundschulen, Realschule Plus, Berufsoberschule sowie drei Gymnasien.
Hervorragende Anbindung an das öffentliche Verkehrsnetz. Alzey verfügt über eine sehr gute stadtnahe Bus- und Verkehrsanbindung. Die exzellente Autobahnanbindung über A61 nach Mannheim/ Ludwigshafen/Koblenz und A63 nach Mainz/Kaiserslautern unterstreicht die Vorteile der Wohnlage.
Sonstige Angaben
Bitte haben Sie Verständnis, dass wir unsere aussagekräftige Präsentation nur an Kaufinteressenten senden dürfen, die uns ihre Kontaktdaten vollständig zur Verfügung stellen und mit denen wir zuvor persönlich gesprochen haben. Wir sind beauftragt, eventuelle Besichtigungen nur nach einer Bonitätsprüfung durchzuführen.
Erst eine Besichtigung vor Ort wird Sie schlüssig über den Gesamteindruck informieren. Unser Exposé kann nur bedingt auf alle Einzelheiten dieses Objektes eingehen, als Rechtsgrundlage gilt allein der geschlossene Mietvertrag bzw. der notariell beurkundete Kaufvertrag. Selbstverständlich informieren wir Sie über unsere zinsgünstigen Finanzierungsmöglichkeiten und helfen gerne bei der Beschaffung einer entsprechenden Immobilienfinanzierung.
Alle Angaben sind ohne Gewähr und basieren ausschließlich auf Informationen und Unterlagen, die uns von unserem Auftraggeber übermittelt wurden und mit größter Sorgfalt erstellt. Wir übernehmen keine Haftung für die Vollständigkeit, Richtigkeit und Aktualität dieser Angaben; Die Objektunterlagen und Objektinformationen wurden von Juhna-Immobilien nicht geprüft. Es handelt sich lediglich um Beschreibung und nicht um zugesicherte Eigenschaften. Änderungen wie Irrtum, Zwischenverkauf und Zwischenvermietung behalten wir uns ausdrücklich vor.
Grundriss
Erdgeschoss
>
>
Obergeschoss
>
>
Dachgeschoss
>
>
Adresse
55232 Alzey
Interessante Orte
Preis- und Lageinformationen
Preistrend für Bestandsimmobilien in Alzey