Wir freuen uns, Ihnen dieses attraktive Zweifamilienhaus in guter und zentraler Lage im südhessischen Reinheim-Zeilhard zu präsentieren.
Das Wohnhaus wurde ca. 1940 errichtet und umfasst zwei Wohneinheiten auf drei Ebenen. Die beiden Wohneinheiten verfügen insgesamt über circa 139 m2 Wohnfläche und teilen sich wie folgt auf:
- EG-Wohnung | 3 Zimmer, Küche, Bad | ca. 64 m2 | aktuell leerstehend | Zustand: sanierungsbedürftig
- OG-Wohnung | 3 Zimmer, Küche, Bad | ca. 75 m2 | zusätzliches Ausbaupotential im Dachgeschoss | aktuell leerstehend | Zustand: sanierungsbedürftig
Im Dachgeschoss befinden sich weitere Ausbaupotentiale zur Wohnflächenerweiterung der Wohnung im Obergeschoss.
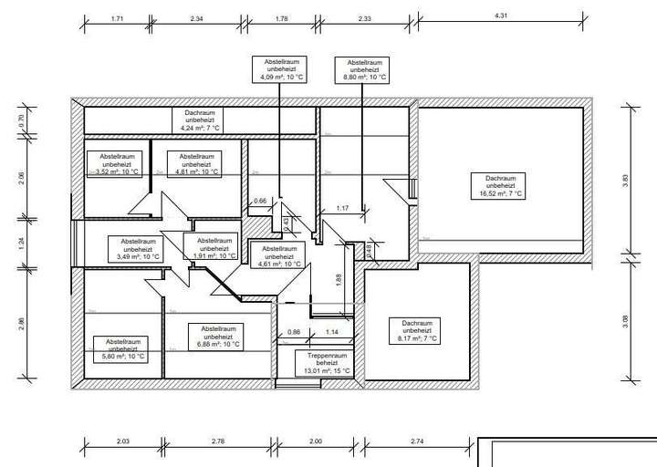
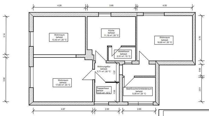
Weitere Details entnehmen Sie gerne den beiliegenden Grundrissen.
Zweifamilienhaus mit Potential in zentraler Lage von Reinheim-Zeilhard
64354 Reinheim
Die vollständige Adresse der Immobilie erhalten Sie vom Anbieter.
Auf Karte anzeigen
Die vollständige Adresse der Immobilie erhalten Sie vom Anbieter.
Finanzierungszertifikat
In nur zwei Minuten zu Ihrem persönlichen Finanzierungszertifkat.
Infos
| Haustyp | Mehrfamilienhaus |
|---|---|
| Wohnfläche ca. | 139 m2 |
| Grundstücksfläche | 192 m2 |
| Zimmer | 6 |
Kosten
| Kaufpreis |
242.000 € |
|---|---|
| Provision |
3,57 % inkl. MwSt. 3,57 % Käuferprovision (inkl. MwSt.), verdient und fällig mit Beurkundung des notariellen Kaufvertrages. Der Immobilienmakler hat einen provisionspflichtigen Maklervertrag mit dem Verkäufer in gleicher Höhe abgeschlossen. |
Finanzierungsrechner:
Kaufpreis:
600.000 €
Eigenkapital:
600.000 €
Monatliche Rate
0 €
Effektiver Jahreszins
0 %
Sollzinsbindung
10 Jahre
Bausubstanz & Energieausweis
| Baujahr | 1940 |
|---|---|
| Qualität der Austattung | Normal |
| Heizungsart | Zentralheizung |
| Wesentliche Energieträger | Öl |
| Energieausweis | liegt vor |
| Energieausweistyp | Bedarfsausweis |
| Energieverbrauchskennwert | 431,3 kWh/(m²*a) |
| Energieeffizienzklasse | H |
431,3
kWh/(m²*a)
Energieeffizienzklasse H
- A+
- A
- B
- C
- D
- E
- F
- G
- H
- 0
- 25
- 50
- 75
- 100
- 125
- 150
- 175
- 200
- 225
- >250
Beschreibung des Objekts
Ausstattung
Das Haus befindet sich in einem gepflegten Zustand, es bedarf jedoch einiger Modernisierungen, um heutigen Wohnansprüchen gerecht zu werden.
* Öl-Zentralheizung (Baujahr 2014)
* dezentrale Warmwasserbereitung
* Balkon im OG
* Einbauküchen in EG und OG
* Ausbaupotentiale für weitere Wohnfläche im Dachgeschoss
* voll unterkellert
* Garage und Nebengebäude als Nutzfläche
Lage
Willkommen in Zeilhard - einem Ortsteil der Stadt Reinheim im Landkreis Darmstadt-Dieburg mit ca. 2.000 Einwohnern. Die Lage ist ruhig und naturnah, mit guter Anbindung an die umliegenden Städte.
Zeilhard liegt nord-westlich von Reinheim und ist geprägt von Einfamilienhäusern, Grünflächen und landwirtschaftlich genutzten Flächen. In Zeilhard gibt es eine Grundschule, einen Kindergarten, zwei Kinderkrippen sowie Einkaufsmöglichkeiten für den täglichen Bedarf. Für weiterführende Schulen, größere Einkaufsmärkte und medizinische Versorgung sind die Orte Reinheim, Darmstadt und Dieburg schnell erreichbar.
Eine gute Verkehrsanbindung ist durch Buslinien, die regelmäßig nach Reinheim und Darmstadt verkehren, sowie durch die Autobahnen A5 und A67, die in ca. 20 Min. Fahrzeit erreichbar sind, gewährleistet.
Die Lage in Zeilhard vereint somit eine ruhige, naturnahe Umgebung mit guter Erreichbarkeit der wichtigsten Einrichtungen und einer guten ÖPNV- und Verkehrsanbindung.
Sonstige Angaben
Die Käuferprovision beträgt 3,57 % (inkl. MwSt.), verdient und fällig mit Beurkundung des notariellen Kaufvertrages. Der Immobilienmakler hat einen provisionspflichtigen Maklervertrag mit dem Verkäufer in gleicher Höhe abgeschlossen.
Bitte senden Sie uns zur ersten Kontaktaufnahme eine aussagekräftige Anfrage unter Angabe Ihrer persönlichen Daten über das Kontaktformular zu. Wir werden Sie dann zeitnah persönlich kontaktieren! Besichtigungen werden erst nach einer telefonischen Vorbesprechung und bei Vorliegen einer Finanzierungsbestätigung durchgeführt.
Finanzierungsbeispiel anhand angenommener Daten: Bei einer Darlehenshöhe von 200.000 €, einem Zinssatz von 3,5 % sowie einer Tilgung von 1,5 % ergibt sich eine monatliche Annuität i.H.v. ca. 833 €.
Alle Angaben und Zeichnungen basieren auf Informationen des Eigentümers. Es wird keine Gewähr für die Vollständigkeit, Richtigkeit und Aktualität dieser Angaben übernommen.
Grundriss
18_Grundriss_EG
>
>
19_Grundriss_OG
>
>
20_Grundriss_DG
>
>
21_Grundriss_KG
>
>
Adresse
64354 Reinheim
Interessante Orte
Preis- und Lageinformationen
Preistrend für Bestandsimmobilien in Reinheim