Großzügiges, familienfreundliches Reiheneckhaus in 82140 Esting – aufwendig renoviert mit Garten und Garage
Dieses charmante und top gepflegte Reiheneckhaus in ruhiger und familienfreundlicher Lage von Esting überzeugt durch seine durchdachte Raumaufteilung, hochwertige Ausstattung und den idyllischen Gartenbereich.
Das Haus wurde in umfassend renoviert und bietet modernen Wohnkomfort auf mehreren Ebenen.
Highlights des Hauses
Aufwendig modernisiert – bezugsfertiger Zustand
Zwei neue, stilvoll ausgestattete Bäder:
Vollbad im Obergeschoss mit Badewanne und Dusche
Duschbad im Erdgeschoss (auch als Gäste-WC nutzbar)
Drei helle Schlafzimmer im Obergeschoss
Großzügiges Wohnzimmer mit neuem Kaminofen – ideal für gemütliche Stunden
Echtholzparkett in allen Wohnräumen und Schlafzimmern
Große Wohnküche mit Platz für eine moderne Einbauküche nach eigenem Geschmack
Sonnige Terrasse mit Zugang zum liebevoll angelegten Garten
Weitere Ausstattungsmerkmale
Großzügiger Hobbyraum im Untergeschoss – vielseitig nutzbar (z. B. als Büro, Fitness- oder Spielraum)
Einzelgarage sowie ein zusätzlicher Außenstellplatz
Ruhige Wohnlage mit idealer Anbindung an öffentliche Verkehrsmittel und Einkaufsmöglichkeiten
Fazit
Dieses gepflegte Reiheneckhaus vereint großzügiges Wohnen, stilvolle Ausstattung und eine familiengerechte Lage. Es bietet Raum zum Wohlfühlen – innen wie außen – und wartet darauf, neue Bewohner willkommen zu heißen.
Großzügiges, familienfreundliches Reiheneckhaus in Esting – neu renoviert mit Garten und Garage
82140 Olching
Die vollständige Adresse der Immobilie erhalten Sie vom Anbieter.
Auf Karte anzeigen
Die vollständige Adresse der Immobilie erhalten Sie vom Anbieter.
Infos
| Haustyp | Reiheneckhaus |
|---|---|
| Wohnfläche ca. | 136 m2 |
| Nutzfläche | 174 m2 |
| Grundstücksfläche | 150 m2 |
| Bezugsfrei ab | 01.02.2026 |
| Zimmer | 4 |
| Schlafzimmer | 3 |
| Badezimmer | 2 |
| Haustiere | Nein |
| Garage/Stellplatz | Garage |
| Anzahl Garage/Stellplatz | 2 |
Kosten
| Kaltmiete |
2.400 € |
|---|---|
| Nebenkosten | + 200 € |
| Heizkosten | keine Angabe |
| Gesamtmiete | 2.600 € |
| Miete für Garage/Stellplatz | 100 € |
| Kaution o. Genossenschaftsanteile | 3 Nettokaltmieten |
Weiter mieten oder doch kaufen?
Wer in Miete wohnt, überweist dem Vermieter im Laufe der Jahre hohe Summen, die sich
auch in die eigenen vier Wände investieren lassen könnten.
Bausubstanz & Energieausweis
| Baujahr | 1993 |
|---|---|
| Letzte Sanierung | 2025 |
| Objektzustand | Vollständig Renoviert |
| Qualität der Austattung | Normal |
| Heizungsart | Zentralheizung |
| Wesentliche Energieträger | Gas |
| Energieausweis | liegt vor |
| Energieausweistyp | Verbrauchsausweis |
| Energieverbrauchskennwert | 117,0 kWh/(m²*a) |
Beschreibung des Objekts
Lage
Das Reiheneckhaus befindet sich in ruhiger Wohnlage von Esting, einem gefragten Ortsteil der Stadt Olching. Die Lage überzeugt durch eine gute Infrastruktur und die Nähe zu sämtlichen Einrichtungen des täglichen Bedarfs.
Einkaufsmöglichkeiten, Ärzte, Apotheken, Kindergärten, Gtundschule sowie Sport- und Freizeiteinrichtungen befinden sich in unmittelbarer Umgebung und sind bequem erreichbar.
Die Gymnasium Olching ist ebenfalls gut zu erreichen, was den Standort besonders für Familien attraktiv macht.
Olching bietet darüber hinaus einen hohen Freizeitwert – der Olchinger See und der Golfclub Olching sind schnell erreichbar und laden zu vielfältigen Freizeitaktivitäten ein.
Auch die Verkehrsanbindung ist ideal: Die S-Bahn-Station Esting bietet eine direkte Verbindung in die Münchner Innenstadt, die in etwa 25 Minuten erreicht wird.
Über die nahegelegene Autobahn A8 sowie die Bundesstraße B471 besteht zudem eine sehr gute Anbindung an das regionale und überregionale Straßennetz.
Die Lage kombiniert eine angenehm ruhige Wohnatmosphäre mit kurzen Wegen und einer optimalen Anbindung an München – ideal für alle, die Komfort, Lebensqualität und Mobilität schätzen.
Sonstige Angaben
Pflichtangabe nach § 16 a EnEV:
EA-V, Energieverbrauchskennwert: 116,99 kWh/(m²a), Energieverbrauch für Warmwasser enthalten.
HZG: Gas, Bj. 1992
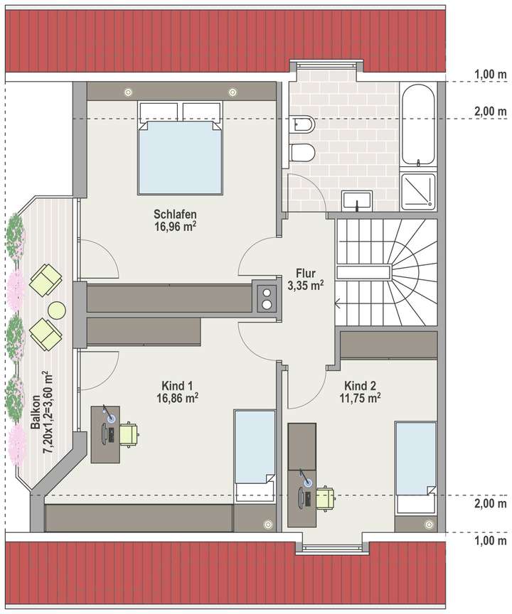
Grundriss
Grundriss EG
>
>
Grundriss OG
>
>
Grundriss UG
>
>
Adresse
82140 Olching
Interessante Orte
Preis- und Lageinformationen
Preistrend für Bestandsimmobilien in Olching