LUXHAUS - Das Familienunternehmen blickt auf eine beeindruckende Tradition zurück, die bis ins Jahr 1924 reicht.
Seit nunmher über einem Jahrhundert steht der Name für Innovation, Design
und Nachhaltigkeit in der Fertigung individueller Architektenhäuser.
Mit viel Liebe zum Details und Gefühl für Materialien und Wohlfühlräume für Ihren lebenslangen Wohngenuss! Schlicht und zeitlos, so präsentiert sich dieses Anwesen im klassischen Bauhausstil. Die klare, puristische Formensprache wird durch ein
perfekt abgestimmtes Raumkonzept im Inneren vollendet. Durch verschiedenartige Anbauelemente und Fassadengestaltungen lässt sich das Haus nach eigenen Wünschen, innen wie außen,
individuell gestalten.
(Abbildung zeigt Sonderausstattung)
Auf diesem traumhaften Grundstück mit entsteht ein exklusives und modernes Anwesen mit innovativer Technik. Nahezu unabhängig von außen lässt sich dieses Anwesen betreiben und produziert dabei einen
großen Teil der benötigten Energie selbst.
Die Lage ist einmalig: Auf dem großzügigen Grundstück in wundervoller Lage ist purer Genuss garantiert. Entspannen oder einfach mal abschalten nach einem anstrengenden Tag! Das alles ist hier möglich! Ob im Garten, auf der Terrasse oder im integrierbaren Infinity-Pool - Sie werden es Lieben und es nicht mehr missen wollen!
Natürlich planen wir auf Wunsch auch ihr Home Office intelligent ein, so, dass Sie ungestört arbeiten können und bereits während der Arbeit ein Stück Natur fühlen werden.
Sie legen gerne auch selbst Hand an und gestalten Sie ihr zukünftiges Zuhause mit?Noch ist dies möglich!
Das Grundstück für dieses Haus hält insgesamt max. rd. 1.250m² vor und wird gänzlich nach ihren Wünschen und Vorstellungen gestaltet. Die Wohnfläche kann insgesamt zwischen 200 und 400m² liegen. Vollunterkellerung ist natürlich auch möglich!
Ihr neues Zuhause empfängt Sie im Erdgeschoss hell und großzügig. Die neue Küche ist entweder offen oder eschlossen
gestaltet, je nachdem, was Ihnen persönlich besser gefällt. Der Wohn-/Essbereich lädt dazu ein, Familie und Freunde zu bewirten und gemeinsam unvergessliche Abende zu verbringen.
Ein Gäste-/Dusch-WC gibt es selbstverständlich auch. Im
Obergeschoss sind die Schlafräume und das geräumige Wellness-Bad vorgesehen. Außerdem ist ein separater
Ankleideraum bereits Standard.
Die dargestellten Abbildungen und Grundrisse sind Vorschläge, die nach Ihren Wünschen individuell angepasst werden, so, dass Sie Ihr maßgeschneidertes Traumhaus erhalten. Ebenso sind die
Größen- und Preisangaben auf ein Haus in der angegeben Größe bezogen. Ihr Haus planen wir natürlich individuell für Sie.
Der hier ausgewiesene Preis bezieht sich auf das Grundstück rd.
1.250m² (das separat erworben wird) und das Haus mit einer Wohnfläche von rd. 280qm zzgl. Kauf- und Baunebenkosten.
Änderungen in Gestaltung, Wohnflächen und Ausstattung, sowie Unterkellerung natürlich möglich!
(Abbildungen zeigen ggf. Sonderausstattungen)
OPTIONALES Penthouse-Geschoss möglich!
NEU: Purer Wohngenuß in angenehmer Wohnlage mit Weitblick!
55127 Mainz
Die vollständige Adresse der Immobilie erhalten Sie vom Anbieter.
Auf Karte anzeigen
Die vollständige Adresse der Immobilie erhalten Sie vom Anbieter.
Finanzierungszertifikat
In nur zwei Minuten zu Ihrem persönlichen Finanzierungszertifkat.
Infos
| Haustyp | Einfamilienhaus |
|---|---|
| Etagenzahl | 2 |
| Wohnfläche ca. | 240 m2 |
| Grundstücksfläche | 5.300 m2 |
| Zimmer | 7 |
| Schlafzimmer | 4 |
| Badezimmer | 2 |
| Garage/Stellplatz | Garage |
| Anzahl Garage/Stellplatz | 2 |
Kosten
| Kaufpreis |
2.850.000 € |
|---|---|
| Provision | Nein |
Finanzierungsrechner:
Kaufpreis:
600.000 €
Eigenkapital:
600.000 €
Monatliche Rate
0 €
Effektiver Jahreszins
0 %
Sollzinsbindung
10 Jahre
Bausubstanz & Energieausweis
| Baujahr | 2026 |
|---|---|
| Bauphase | Haus in Planung (projektiert) |
| Objektzustand | Erstbezug |
| Qualität der Austattung | Gehoben |
Beschreibung des Objekts
Ausstattung
Innovative Haustechnik, attraktive Architektur und hochwertige Qualität bietet Ihnen der hier angebotene Haustraum mit unserem All-Finish-Paket:
- Bodenplatte inkl. / Teilkeller inkl.
- Effizienzhaus 40 (inkl. PV Anlage mit Batteriespeicher)
- Climatic Wand Technologie
- Professionelle Dachkonstruktion
- Komplette Elektro-, Sanitär- und Heizungs-Installation
- Optional Smart-Home-Technologie – Intelligentes Gebäude-
Management für die Licht- und Rollladen-Steuerung oder
Loxone Premium Smart Home System
- Elektrische Rollläden oder optional Raffstores
- Luft-Wasser Wärmepumpen-Heizung optional kombiniert mit zentraler Wohnraum Be- und Entlüftung mit
Wärmerückgewinnung für das Effizienzhaus 40
- Optional SOLE-Wasser-Wärmepumpe mit Fußbodenheizung + Kühlfunktion
- Hochwertige, mehrschichtige Sicherheits-Haustüre
- Aluprofil-Fenster mit 3-Scheiben-Wärmeschutzverglasung
- optional Dachfenster elektrischer Beschattung
- optional Aufzug über alle Etagen
- optional Klimaanalge
- Massiv-Vollholz-Treppe mit hochmoderner Echtholz Interieur
Ausstattung
- Schickes Exterieur Ausstattungspaket
- Hochwertige Interieur Ausstattung
- Hohe Geschosshöhen / Wandhohe Verglasung
- Auf einzelne Bauteile bis zu 30 Jahre Gewährleistung
Lage
Dieses wundervolle Anwesen entsteht in Mainz, Lerchenberg in ruhiger und sehr attaktiver Lage.
Haben Sie bitte Verständnis dafür, dass Details zur genauen Lage des Projektes im Rahmen eines persönliches Gespräches erfolgt!
Sonstige Angaben
Als exklusiver Partner und Handelsvertretung der LUXHAUS Vertrieb GmbH & Co. KG entwickeln und projektieren wir individuell und nach Ihren Anforderungen und Wünschen ihr ganz persönliches Wohlfühlambiente! Wir betreuen Sie vom Erstkontakt bis zur Schlüsselübergabe und sind ihr kompetenter Ansprechpartner rund um ihr gesamtes Neubauprojekt!
Fühlen Sie unsere Innovationsfreude für nachhaltiges Wohnen und Leben! Wir stehen für nachhaltige, innovative undhochmoderne Häuser welche Ihnen ein Leben lang Freude bereiten werden.
Bitte beachten Sie, dass die dargestellten Bilder und Grundrisse beispielhaft sind und unter Umständen Sonderbauteile enthalten, welche nicht im angegebenen Preis beinhaltet sein können.
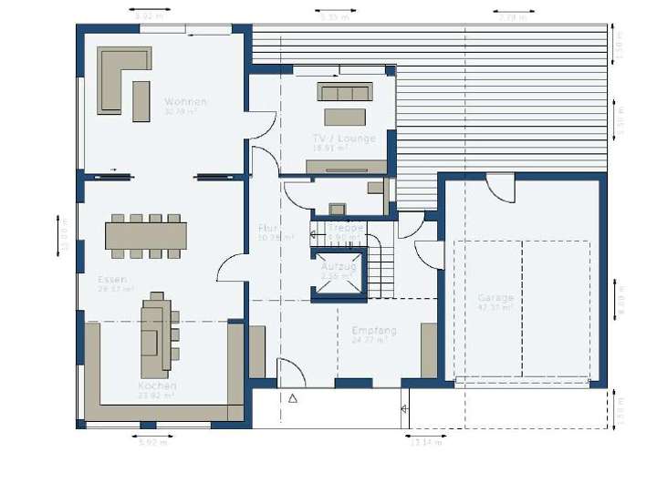
Grundriss
MÖGLICHES EG
>
>
MÖGLICHES OG 1
>
>
Optional OG 2 - Penthouse
>
>
Adresse
55127 Mainz
Interessante Orte
Preis- und Lageinformationen
Preistrend für Bestandsimmobilien in Lerchenberg