Im Herzen des historischen Zentrums von Mühldorf befindet sich dieses charmante Reihenmittelhaus. Das im Jahr 2025 umfassend sanierte Haus bietet auf ca. 85 Quadratmetern Wohnfläche modernen Wohnkomfort und verbindet stilvoll historischen Charme mit zeitgemäßer Ausstattung. Sie sind der erste Bewohner nach der hochwertigen Sanierung.
Das Haus verfügt über zwei helle Schlafzimmer, die individuellen Gestaltungsfreiraum bieten und sich ideal für Paare, kleine Familien oder das Arbeiten im Homeoffice eignen. Zwei moderne Badezimmer sorgen für Komfort im Alltag und bieten praktische Lösungen für Gäste und Bewohner gleichermaßen.
Ein Highlight ist die überdachte Dachterrasse, die einen Blick in den ruhigen Innenhof ermöglicht. Hier lässt sich nach einem langen Tag wunderbar entspannen oder in geselliger Runde Zeit verbringen – geschützt vor Wind und Wetter.
Die Kombination aus der zentralen Lage, der hochwertigen Sanierung und den durchdachten Grundrissen macht dieses Reihenmittelhaus zu einer seltenen Gelegenheit im historischen Kern von Mühldorf. Lassen Sie sich von dem besonderen Ambiente und dem einmaligen Wohngefühl begeistern!
Neu saniertes Anbauhaus im historischen Stadtzentrum von Mühldorf
84453 Mühldorf am Inn
Die vollständige Adresse der Immobilie erhalten Sie vom Anbieter.
Auf Karte anzeigen
Die vollständige Adresse der Immobilie erhalten Sie vom Anbieter.
Finanzierungszertifikat
In nur zwei Minuten zu Ihrem persönlichen Finanzierungszertifkat.
Infos
| Haustyp | Reihenmittelhaus |
|---|---|
| Wohnfläche ca. | 85 m2 |
| Grundstücksfläche | 41 m2 |
| Zimmer | 3 |
Kosten
| Kaufpreis |
549.000 € |
|---|---|
| Provision |
3,57
% Käuferprovision inkl. MwSt. |
Finanzierungsrechner:
Kaufpreis:
600.000 €
Eigenkapital:
600.000 €
Monatliche Rate
0 €
Effektiver Jahreszins
0 %
Sollzinsbindung
10 Jahre
Bausubstanz & Energieausweis
| Baujahr | 1900 |
|---|---|
| Objektzustand | Erstbezug nach Sanierung |
| Qualität der Austattung | Gehoben |
| Heizungsart | Zentralheizung |
| Wesentliche Energieträger | Gas |
| Energieausweis | liegt vor |
| Energieausweistyp | Bedarfsausweis |
| Energieverbrauchskennwert | 206,7 kWh/(m²*a) |
| Energieeffizienzklasse | G |
206,7
kWh/(m²*a)
Energieeffizienzklasse G
- A+
- A
- B
- C
- D
- E
- F
- G
- H
- 0
- 25
- 50
- 75
- 100
- 125
- 150
- 175
- 200
- 225
- >250
Beschreibung des Objekts
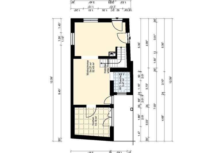
Ausstattung
- Komplett neu saniert 2025
- 2 Bäder
- 2 Schlafzimmer
- Überdachte Terrasse im 1. OG
Lage
Das Haus befindet sich zentral in Mühldorf am Inn nahe des historischen Stadtkerns. Einkaufsmöglichkeiten, Cafés und Restaurants sind fußläufig erreichbar. Der Bahnhof sowie die Anbindung an B12 und A94 ermöglichen eine schnelle Verbindung in die Region.
Schulen, Kindergärten und Freizeiteinrichtungen befinden sich in der Nähe. Die Nähe zum Inn und zahlreiche Grünflächen bieten Erholung und Freizeitmöglichkeiten. Insgesamt ein attraktiver Standort mit ausgezeichneter Infrastruktur und hoher Lebensqualität.
Sonstige Angaben
Angaben zum Energieausweis:
Art des Ausweises: Bedarfsausweis
Energiewert: 206,7 kWh/(m²*a)
Energieeffizienzklasse: G
Baujahr lt. Energieausweis: 1900/2025
Befeuerung/wesentlicher Energieträger: Gas
Wir verweisen auf unsere Datenschutzerklärung und Information zum Datenschutz wie wir mit Ihren personenbezogenen Daten verfahren, wenn Sie uns kontaktieren / eine Online-Objektanfrage stellen / unsere Leistungen in Anspruch nehmen. www.sic-chiemgau.de/datenschutz
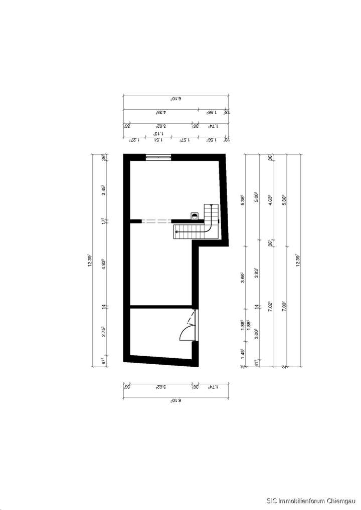
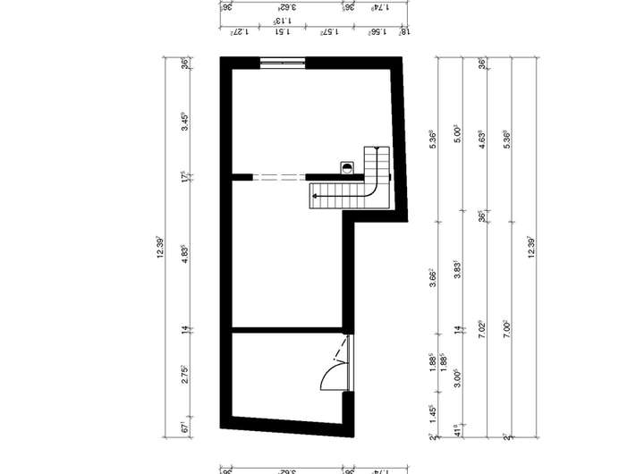
Grundriss
EG
>
>
OG
>
>
Schnitt
>
>
Adresse
84453 Mühldorf am Inn
Interessante Orte
Preis- und Lageinformationen
Preistrend für Bestandsimmobilien in Mühldorf am Inn