Dieses großzügige Einfamilienhaus in Usingen, erbaut im Jahr 1980, vereint klassische Architektur mit modernen Akzenten und bietet auf drei Etagen rund 199 m² Wohnfläche. Mit insgesamt acht Zimmern, darunter vier Schlafzimmer, drei Badezimmer sowie ein zusätzliches Gäste-WC, überzeugt es durch Großzügigkeit, Helligkeit und vielseitige Nutzungsmöglichkeiten.
Auf dem etwa 834 m² großen Grundstück erwartet Sie ein idyllischer Gartenbereich mit einer gemütlichen Grillecke, einer kleinen Spielfläche für Kinder und zwei Terrassen. Eine Terrasse ist direkt vom Wohnzimmer aus begehbar, die zweite liegt geschützt im Garten und bietet Raum für entspannte Stunden im Freien. Für Fahrzeuge ist ebenfalls bestens gesorgt: Eine Doppelgarage mit elektrischem Rolltor, ein Stellplatz für einen Wohnwagen sowie zwei weitere Außenstellplätze bieten hohen Komfort und ausreichend Platz für Familie und Gäste.
Das Haus wurde laufend modernisiert und befindet sich in einem gepflegten Zustand. Eine Ölheizung mit Solarthermie-Unterstützung aus dem Jahr 2011 wurde im Jahr 2025 erweitert. Hinzu kommen erneuerte Fenster, elektrische Rollläden, eine Photovoltaikanlage mit Speicher sowie eine Klimaanlage, die zusätzlichen Wohnkomfort schafft.
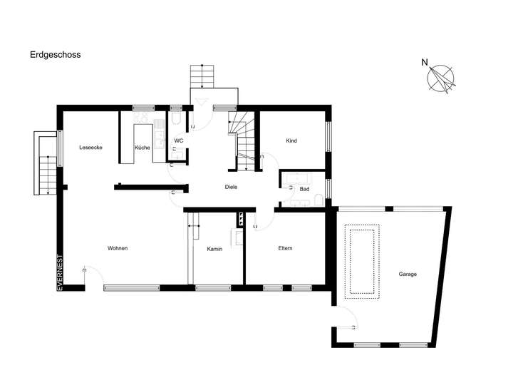
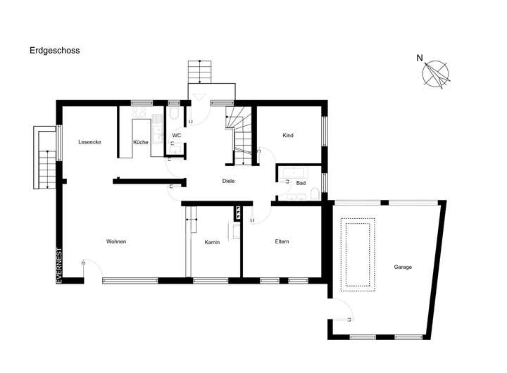
Im Erdgeschoss empfängt Sie eine großzügige Diele mit praktischem Einbauschrank. Das helle Wohn- und Esszimmer öffnet sich zum Garten und führt direkt auf die Terrasse. Ein separates Kaminzimmer sorgt für eine gemütliche Atmosphäre und lädt zum Verweilen ein. Außerdem finden sich auf dieser Ebene ein Tageslicht-Gäste-WC, ein Badezimmer mit Badewanne, zwei flexibel nutzbare Zimmer – ideal als Kinder-, Gäste- oder Arbeitszimmer – sowie eine funktionale Küche, die sich mit wenig Aufwand modernisieren lässt.
Das Obergeschoss umfasst eine vollständig ausgestattete Wohneinheit, die sich flexibel nutzen lässt, beispielsweise als Erweiterung des Eigenheims oder als potenzielle Einliegerwohnung zur Vermietung. Der Zugang erfolgt derzeit über das gemeinsame Treppenhaus; ein separater Eingang besteht aktuell nicht, kann jedoch mit geringem Aufwand durch den Einbau einer Tür im Flur realisiert werden. Hier erwarten Sie zwei mögliche Schlafzimmer, ein 2021 modernisiertes Badezimmer, eine moderne Küche sowie ein großzügiges Wohn- und Esszimmer mit direktem Zugang zum Balkon. Zusätzlich bieten ein Speicher und der Dachboden praktischen Stauraum. Insgesamt präsentiert sich das Obergeschoss hell, gepflegt und vielseitig nutzbar.
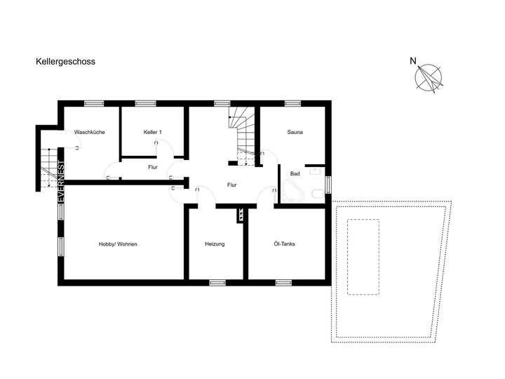
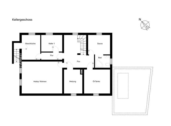
Das Kellergeschoss rundet das Raumangebot ab. Neben einer Waschküche und einem Vorratsraum befindet sich hier ein Schlafzimmer, das aktuell von den Eigentümern genutzt wird. Ein besonderes Highlight ist der Wellnessbereich mit Sauna und Solarium (Wohnlich ausgebaute Nutzfläche). Das angrenzende Badezimmer ergänzt das Gesamtbild. Diese beiden Räume laden zum entspannen und abschalten ein. Auf dieser Ebene liegen außerdem der Heizungsraum mit den Öltanks sowie ein separater Außenzugang.
Dieses Haus überzeugt durch seinen familienfreundlichen Grundriss, den idyllischen Gartenbereich, helle Räume, umfangreiche Modernisierungen, einen gepflegten Wellnessbereich, Photovoltaikanlage mit Speicher, Klimaanlage, Doppelgarage mit elektrischem Rolltor, Wallbox und einen Kamin, der für wohlige Wärme sorgt.
Ein Zuhause, das Komfort, Flexibilität und Lebensqualität auf ideale Weise vereint – perfekt für Familien, Mehrgenerationen oder als Kombination aus Wohnen und Arbeiten.
Familientraum in Usingen – mit Garten, Sauna und Kamin
61250 Usingen
Die vollständige Adresse der Immobilie erhalten Sie vom Anbieter.
Auf Karte anzeigen
Die vollständige Adresse der Immobilie erhalten Sie vom Anbieter.
Finanzierungszertifikat
In nur zwei Minuten zu Ihrem persönlichen Finanzierungszertifkat.
Infos
| Haustyp | Einfamilienhaus |
|---|---|
| Etagenzahl | 3 |
| Wohnfläche ca. | 199 m2 |
| Nutzfläche | 110,35 m2 |
| Grundstücksfläche | 834 m2 |
| Zimmer | 8 |
| Badezimmer | 3 |
| Garage/Stellplatz | Parkhaus |
| Anzahl Garage/Stellplatz | 3 |
Kosten
| Kaufpreis |
749.000 € |
|---|---|
| Provision |
3.57 % inkl. MwSt. Bei Abschluss eines notariellen Kaufvertrages ist eine Käuferprovision vom Käufer in Höhe von 3.57 % inkl. MwSt. aus dem Kaufpreis fällig. |
Finanzierungsrechner:
Kaufpreis:
600.000 €
Eigenkapital:
600.000 €
Monatliche Rate
0 €
Effektiver Jahreszins
0 %
Sollzinsbindung
10 Jahre
Bausubstanz & Energieausweis
| Baujahr | 1980 |
|---|---|
| Letzte Sanierung | 2025 |
| Objektzustand | Modernisiert |
| Qualität der Austattung | Gehoben |
| Heizungsart | Öl-Heizung |
| Wesentliche Energieträger | Öl |
| Energieausweis | liegt vor |
| Energieausweistyp | Bedarfsausweis |
| Energieverbrauchskennwert | 122,8 kWh/(m²*a) |
| Energieeffizienzklasse | D |
122,8
kWh/(m²*a)
Energieeffizienzklasse D
- A+
- A
- B
- C
- D
- E
- F
- G
- H
- 0
- 25
- 50
- 75
- 100
- 125
- 150
- 175
- 200
- 225
- >250
Beschreibung des Objekts
Ausstattung
- Schöne, helle Zimmer
- Kamin
- Klimaanlage
- Elektrische Rollläden
- Wellnessbereich
- Familienfreundlicher Grundriss
- Idyllischer Gartenbereich
- Umfassende Modernisierung
- Verschiedene Nutzungsmöglichkeiten
- Photovoltaikanlage mit Speicher
- Doppelgarage mit elektrischem Rolltor
- Wallbox
Lage
Die Immobilie befindet sich in der malerischen Ortschaft Kransberg, einem Ortsteil der Stadt Usingen im hessischen Hochtaunuskreis. Kransberg zeichnet sich durch seine ruhige und idyllische Lage aus, umgeben von einer wunderschöne Naturlandschaft, die zahlreiche Freizeitmöglichkeiten bietet. Die Region ist besonders bei Naturfreunden und Ruhesuchenden beliebt.
Kransberg besticht durch eine gute Anbindung an die umliegenden Städte. Die Stadt Usingen ist nur wenige Minuten entfernt und bietet eine Vielzahl an Einkaufsmöglichkeiten, Schulen, Kindergärten und medizinischen Einrichtungen. Auch die Mainmetropole Frankfurt ist über die A5 und A661 in kurzer Zeit zu erreichen, was die Lage besonders für Pendler attraktiv macht.
Die direkte Umgebung von Kransberg lädt zu ausgedehnten Spaziergängen und Radtouren in der Natur ein, was für eine hohe Lebensqualität sorgt. Zudem sind diverse Freizeitangebote wie Sportvereine und kulturelle Veranstaltungen in Usingen ebenfalls schnell erreichbar.
Die ruhige und zugleich zentrale Lage sorgt für eine angenehme Wohnatmosphäre, während Sie gleichzeitig alle Vorteile einer urbanen Anbindung genießen können.
Grundriss
Erdgeschoss
>
>
Dachgeschoss
>
>
Kellergeschoss
>
>
Adresse
61250 Usingen
Interessante Orte
Preis- und Lageinformationen
Preistrend für Bestandsimmobilien in Usingen