Drei voll vermietete Einheiten, identische Raumstrukturen mit individuell veränderten Details im Innenausbau, machen diese gepflegte Immobilie nicht nur für Kapitalanleger interessant.
EG:
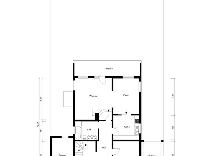
Die großzügige Erdgeschosswohnung vereint geschmackvolles Wohnen mit einem hohen Maß an Wohnqualität. Ein weitläufiger Flur verbindet alle Räume miteinander und schafft eine angenehme Großzügigkeit schon beim Betreten der Wohnung.
Der offen gestaltete Wohn- / Essbereich bildet das Herzstück der Wohnung. Ein Kamin im Essbereich sorgt für eine behagliche Atmosphäre an kühleren Tagen. Von dort aus gelangt man direkt auf die stilvolle Terrasse, welche mit dunklen Holzdielen, vom restlichen Garten abgegrenzt ist. Der große Garten bietet viel Platz für Erholung, Freizeit oder geselliges Beisammensein.
Vom Essbereich aus führt eine elegante Wendeltreppe ins Souterrain, wo sich ein abgeschirmter Schlafbereich mit Tageslicht befindet. Die Küche überzeugt mit ihrer Großzügigkeit, einer praktischen Einbauküche , ausreichend Platz für Stauraum. Große Fenster sorgen für eine helle und freundliche Atmosphäre.
Ein weiteres Zimmer bietet vielfältige Nutzungsmöglichkeiten, wie z.B. als Kinderzimmer, Gäste- / oder Arbeitszimmer.
Das Badezimmer ist geräumig und hell gefliest. Eine Badewanne, eine separate Dusche sowie ein stilvolles Doppelhandwaschbecken schaffen ein Ambiente zum Wohlfühlen. Ein separates Gäste-WC mit Fenster, steht ebenfalls zur Verfügung.
Abgerundet wird das Angebot durch eine abschließbare Einzelgarage, die sich direkt neben dem Wohnhaus befindet. Sie bietet nicht nur einen sicheren Stellplatz für Ihr Fahrzeug, sondern auch weiteren zusätzlichen Stauraum. Ein zusätzlicher PKW-Stellplatz befindet sich vor der Garage.
1. OG:
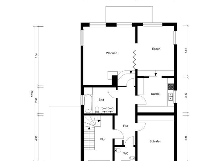
Die Wohnung im 1. OG verfügt über den identischen Grundriss und die identische Aufteilung, wie die Wohnung im Erdgeschoss.
Anstelle der Terrasse im Erdgeschoss, erwartet Sie im Obergeschoss ein stilvoller Balkon. Dieser fügt sich harmonisch in das Wohnkonzept ein.
Die Räume Wohn-/ Essbereich, Küche, Schlafzimmer, das zusätzliches Zimmer, sowie Bad und Gäste-WC , sind wie im Erdgeschoss angeordnet und bieten somit die gleiche durchdachte, großzügige Raumstruktur.
So genießen Sie im Obergeschoss die gewohnte Planung und Großzügigkeit mit dem zusätzlichen Vorteil eines Balkons.
DG:
Diese außergewöhnliche Dachgeschosswohnung besticht durch ihren besonderen Charme, einer großzügigen Raumwirkung und architektonisch reizvollen Details. Auch in dieser Wohnung verbindet der zentraler Flur alle Räume der Wohnung miteinander.
Das offen gestaltete Wohnzimmer beeindruckt besonders durch das sichtbare, rustikale Gebälk, das dem Raum ein warmes, stilvolles Ambiente verleiht. Ein Kamin sorgt für gemütliche Stunden und unterstreicht den besonderen Wohncharakter. Von hier aus gelangen Sie direkt auf den Balkon. Ein perfekter Ort, um den Blick ins Freie schweifen zu lassen.
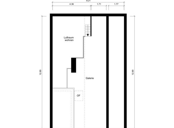
Ein besonderes Highlight ist der offene Schlafbereich unter dem Dach in der Galerie. Über eine stilvolle Innentreppe direkt vom Wohnzimmer aus erreichbar, schmiegt sich das Schlafzimmer charmant in die offene Dachkonstruktion ein. Von der Galerie aus eröffnet sich ein reizvoller Blick hinunter in das Wohnzimmer. Ein echtes architektonisches Statement mit Loft-Flair.
Die Küche ist durch das große Fenster hell und lichtdurchflutet. Eine moderne Einbauküche, viel Stauraum und ausreichend Platz ist hier ebenso gegeben.
Das Kinderzimmer ist ebenfalls großzügig geschnitten und hell, mit vielseitigen Nutzungsmöglichkeiten.
Das Tageslichtbadezimmer ist großzügig gestaltet und überzeugt mit hellen, zeitlosen Fliesen, einer Badewanne, einer separaten Dusche und einem Handwaschbecken.
Ein zusätzliches Gäste-WC ist auch hier vorhanden.
Nähere Informationen zu den aktuellen Mieteinnahmen geben wir Ihnen gerne auf Anfrage bekannt.
Profi Concept: stilvolles 3-Familienhaus im Dietzenbacher Westend
Auestraße 90,
63128 Dietzenbach
Auf Karte anzeigen
Finanzierungszertifikat
In nur zwei Minuten zu Ihrem persönlichen Finanzierungszertifkat.
Infos
| Haustyp | Mehrfamilienhaus |
|---|---|
| Etagenzahl | 3 |
| Wohnfläche ca. | 279 m2 |
| Nutzfläche | 339 m2 |
| Grundstücksfläche | 492 m2 |
| Zimmer | 9 |
| Schlafzimmer | 3 |
| Badezimmer | 6 |
| Garage/Stellplatz | Garage |
Kosten
| Kaufpreis |
939.000 € |
|---|---|
| Provision |
5,95 % incl. MwSt. In unserer Courtage ist die gesetzliche MwSt. enthalten. Für die Besichtigung und Beratung entstehen Ihnen keinerlei Kosten und Gebühren. Unsere Courtage ist erst bei Abschluss des Kaufvertrages fällig. |
Finanzierungsrechner:
Kaufpreis:
600.000 €
Eigenkapital:
600.000 €
Monatliche Rate
0 €
Effektiver Jahreszins
0 %
Sollzinsbindung
10 Jahre
Bausubstanz & Energieausweis
| Baujahr | 1992 |
|---|---|
| Letzte Sanierung | 2021 |
| Bauphase | Haus fertig gestellt |
| Objektzustand | Gepflegt |
| Qualität der Austattung | Gehoben |
| Heizungsart | Zentralheizung |
| Wesentliche Energieträger | Gas |
| Energieausweis | liegt vor |
| Energieausweistyp | Verbrauchsausweis |
| Energieverbrauchskennwert | 143,0 kWh/(m²*a) |
| Energieeffizienzklasse | E |
143,0
kWh/(m²*a)
Energieeffizienzklasse E
- A+
- A
- B
- C
- D
- E
- F
- G
- H
- 0
- 25
- 50
- 75
- 100
- 125
- 150
- 175
- 200
- 225
- >250
Beschreibung des Objekts
Ausstattung
Die Raumaufteilung ist wie folgt:
EG 2,5 Zimmer ca. 98,50 qm
- Diele ca. 11,50 qm
- Küche ca. 11,00 qm
- Wohnbereich ca. 15,40 qm
- Essbereich ca. 25,00 qm
- Souterrain / Schlafbereich ca. 12 qm
- Kinder- / Arbeits- / Gästezimmer ca. 15,00 qm
- Badezimmer ca. 6,60 qm
- Gäste-WC ca. 2,00 qm
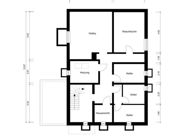
- sep. Kellerraum
- Terrasse ca. 12,50 qm (nur anteilig in die Wfl. mit eingerechnet)
- Garten ca. 400 qm
- Garage + 1 PKW-Außenstellplatz
1. OG 2,5 Zimmer ca. 86,50 qm
- Diele ca. 11,50 qm
- Küche ca. 11,00 qm
- Wohnbereich ca. 25,00 qm
- Essbereich ca. 15,40 qm
- Schlafzimmer ca. 15,00 qm
- Badezimmer ca. 6,60 qm
- Gäste-WC ca. 2,00 qm
- Balkon ca. 7,5 qm (nur anteilig in die Wfl. mit eingerechnet)
- 1 Kellerraum ca. 5 qm
- 1 PKW-Außenstellplatz
DG 3 Zimmer ca. 94,68 qm:
- Diele ca. 11,70 qm
- Küche ca. 9,80 qm
- Esszimmer ca. 13,50 qm
- Wohnzimmer ca. 25,00 qm
- Galerie / Schlafbereich ca. 16 qm
- Badezimmer ca. 6,50 qm
- Gäste-WC ca. 2,18 qm
- Balkon ca. 7,5 qm (nur anteilig in die Wfl. mit eingerechnet)
- 1 Kellerraum ca. 5 qm
- 2 PKW-Außenstellplätze
Der Bodenbelag ist wie folgt (EG / OG / DG):
- Laminat im Arbeitszimmer / Schlafzimmer / Kinderzimmer
- Fliesen in Flur, Küche, Wohn- / Essbereich
Sonstige Ausstattungsmerkmale:
- beheizte Waschküche (gemeinschaftlich)
- sep. Stellplatz für Waschmaschine und Trockner
- Badezimmer mit Tageslicht
- Gäste-WC mit Tageslicht
- offener Kamin
- Einbauküche
- Doppelt verglaste Kunststofffenster
- Außenrollläden an allen Fenstern, z.T. elektrisch
Modernisierungen:
2018 Isolierung Außenwände
2020 neue Wärmezähler an allen Heizungen
2020 neue Heizungsanlage
2021 neuer Fassadenanstrich
Lage
Das Wohnhaus befindet sich in einer ruhigen, aber dennoch zentralen Lage im "Dietzenbacher Westend" ( Hexenberg ) eine attraktive Stadt im Landkreis Offenbach.
Dietzenbach zeichnet sich durch eine hervorragende Verkehrsanbindung aus, insbesondere über die S-Bahn-Linie S3, die eine direkte Verbindung nach Frankfurt am Main ermöglicht. Der Dietzenbacher Bahnhof ist nur wenige Minuten entfernt, sodass Pendler die Mainmetropole in etwa 30 Minuten erreichen können. Zudem bieten die angrenzenden Straßen eine schnelle Anbindung an die B459, die eine gute Verbindung zu benachbarten Städten und dem Frankfurter Autobahnnetz herstellt. Eine attraktive Vernetzung für Berufspendler!
Die Umgebung der Auestraße ist geprägt von einer Mischung aus Wohngebieten und Naturflächen, wie dem nahegelegenen Dietzenbacher Wald. Die Innenstadt von Dietzenbach ist ebenfalls schnell erreichbar und bietet alle Annehmlichkeiten des täglichen Lebens, einschließlich Supermärkten, Einzelhandelsgeschäften, Cafés und Restaurants. Die Stadt hat zudem ein gut ausgebautes Bildungsangebot mit mehreren Schulen und Kindergärten, was die Lage besonders für Familien attraktiv macht.
Eine Grundschule, sowie eine Walldorfschule sind fußläufig in nur wenigen Gehminuten zu erreichen.
Die ruhige und grüne Lage sowie die gute Infrastruktur bieten einen hohen Wohncomfort.
Die wichtigsten Verkehrsanbindungen:
S-Bahn:
In Dietzenbach ist Endstation der Linie S2
Strecke: Niedernhausen ↔ Dietzenbach
Wichtige Haltestellen auf dem Weg:
-Offenbach
-Frankfurt Süd
-Frankfurt Hauptbahnhof
-Frankfurt am Main
Buslinien:
-Stadtlinien: OF-56, OF-57, OF-95, OF-96
-Linie OF-64 (Neu-Isenburg – Heusenstamm – Dietzenbach)
-Linie N72 (Dietzenbach ↔ Frankfurt Flughafen)
-Anbindung an Heusenstamm, Obertshausen, Rodgau, Neu-Isenburg und Langen
Autobahnen:
- B459: durchquert Dietzenbach – verbindet - mit A3 & A661
- A3 (Obertshausen / Hanau West) ca. 10–15 Min.
- A661 (Neu-Isenburg / Offenbach-Taunusring) ca. 15–18 Min.
- A5 (über A661 oder B459) ca. 20–25 Min.
Flughafenanbindung Frankfurt Airport (FRA):
-mit dem Auto ca. 25–30 Minuten
-mit dem Bus (N72) ca. 38–41 Minuten
-mit der S-Bahn + Umstieg ca. 45–50 Minuten
Fahhrad:
Dietzenbach verfügt über ein gut ausgebautes Radwegenetz. Viele Stadtteile sind über kurze Wege erreichbar. Zusätzlich gibt es ein
Radverleihsysteme (z. B. Call-a-Bike) in der Nähe vom Bahnhof.
P + R / Park-and-Ride:
Es gibt mehrere P+R ‑ Parkplätze an den S-Bahn-Stationen (v. a. Dietzenbach Mitte & Bahnhof).
Kostenfrei bzw. kostengünstig – ideal z.B. für Pendler nach Frankfurt.
- Starke ÖPNV-Anbindung ins Rhein-Main-Gebiet (Frankfurt, Offenbach, Hanau etc.)
- Autobahnanschlüsse an A3, A661 und A5 in 10–20 Minuten erreichbar
- Direktverbindung zum Flughafen Frankfurt mit Bus & Bahn
- Pendlerfreundlich durch S-Bahn-Endstation, P+R, gute Buslinien
- Fahrrad- & familienfreundlich durch Tempo-30-Zonen und Schulwegkonzepte
Sonstige Angaben
Alle Informationen beruhen auf den Angaben des Eigentümers. Für die Richtigkeit und Vollständigkeit wird keine Haftung übernommen.
Änderungen bleiben vorbehalten.
Sollten mehrere Kaufinteressenten vorhanden sein, so behält sich der Eigentümer das Recht vor, die Immobilie im Bieterverfahren zu verkaufen.
Internetgeschwindigkeit: Verfügbarkeit laut Telekom.de bis zu 250 Mbit/s. Es handelt sich um eine unverbindliche Prüfung des Anschlusses.
Hinweis zum Geldwäschegesetz, nach § 2 Abs. 1 Nr. 10 GwG sind wir verpflichtet, Kaufinteressenten zu identifizieren. Hierzu müssen wir von jedem Interessenten die pers. Daten (BPA) aufnehmen.
Hinweis zum gesetzlichen Widerrufsrecht bei Fernabsatzverträgen:
Nach den EU-Verbraucherschutzrichtlinien sind Makler seit dem 13.06.2014 dazu verpflichtet, den Kunden über sein Widerrufsrecht zu informieren.
Ein Fernabsatzvertrag ist schon zustande gekommen, wenn Sie uns telefonisch, per Fax oder per Mail kontaktieren.
Wir bitten daher um Ihr Verständnis, wenn wir Ihnen vor Vereinbarung eines Besichtigungstermins oder Überlassung von Unterlagen erst die detaillierten Informationen zu Ihrem Widerrufsrecht zukommen lassen müssen.
Erst danach können wir im vollen Umfang für Sie tätig werden.
Mit Ihrer Kontaktaufnahme willigen Sie bis auf Widerruf ein, dass wir Ihre Daten speichern dürfen und uns sowohl telefonisch als auch via SSL / TLS verschlüsseltem E-Mailverkehr mit Ihnen in Verbindung setzen dürfen.
Unser Service für Sie:
- Wir unterstützen Sie bei der
Organisation Ihres Umzuges.
- Wir übernehmen gerne den Verkauf
oder die Vermietung Ihrer
Altimmobilie und sorgen so für
einen reibungslosen Übergang.
- Wertermittlung Ihrer Immobilie über
einen Gutachter
- Geprüfter Energieausweis - Experte
- Finanzierungsservice mit Top-
Konditionen
- Aktuell ca. 300 Finanzierungspartner.
- Weitere Objekte finden Sie unter
www.proficoncept-gmbh.de
Übrigens:
Sie wissen wer eine Immobilie oder ein Grundstück verkaufen oder vermieten möchte?
Wir honorieren jede erfolgreiche Vermittlung !!!
Weitere Dokumente
Geldwäschegesetz KundeninfoGrundriss
Keller Grundriss,
>
>
EG Grundriss
>
>
DG Grundriss
>
>
OG Grundriss
>
>
DG Galerie Grundriss
>
>
Adresse
Auestraße 90, 63128 Dietzenbach
Interessante Orte
Preis- und Lageinformationen
Preistrend für Bestandsimmobilien in Dietzenbach