Die Immobilie ist von voll unterkellert, wobei der Keller in Betonbauweise errichtet ist. Die außergewöhnliche Hausbreite von 6,70 m bietet einen familienfreundlichen Grundriss mit einer Wohnfläche von über 131 m². Hinzu kommt noch im Kellergeschoss eine Nutzfläche von ca. 47 m², wobei ein Kellerraum (23 m²) auch als Hobbyraum zur Verfügung steht
Das Erdgeschoss verfügt über einen ca. 34 m² großen Wohn-/Essbereich, Küche, Flur und Gäste-WC sowie eine 12 m² große Sonnenterasse.
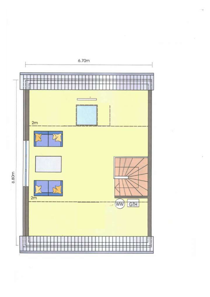
Im Obergeschoss befinden sich zwei Schlafräume sowie ein großzügiges helles Tageslichtbad mit Dusche und Badewanne. Das Dachstudio verfügt über eine Größe von 30 m².
Gepflegte Doppelhaushälfte mit Garage in Leeheim
64560 Riedstadt
Die vollständige Adresse der Immobilie erhalten Sie vom Anbieter.
Auf Karte anzeigen
Die vollständige Adresse der Immobilie erhalten Sie vom Anbieter.
Finanzierungszertifikat
In nur zwei Minuten zu Ihrem persönlichen Finanzierungszertifkat.
Infos
| Haustyp | Doppelhaushaelfte |
|---|---|
| Etagenzahl | 2 |
| Wohnfläche ca. | 131 m2 |
| Nutzfläche | 47 m2 |
| Grundstücksfläche | 194 m2 |
| Zimmer | 4 |
| Schlafzimmer | 2 |
| Badezimmer | 2 |
| Garage/Stellplatz | Außenstellplatz |
| Anzahl Garage/Stellplatz | 2 |
Kosten
| Kaufpreis |
479.000 € |
|---|---|
| Provision | Nein |
Finanzierungsrechner:
Kaufpreis:
600.000 €
Eigenkapital:
600.000 €
Monatliche Rate
0 €
Effektiver Jahreszins
0 %
Sollzinsbindung
10 Jahre
Bausubstanz & Energieausweis
| Baujahr | 2004 |
|---|---|
| Bauphase | Haus fertig gestellt |
| Heizungsart | Zentralheizung |
| Wesentliche Energieträger | Gas |
| Energieausweis | liegt vor |
| Energieausweistyp | Verbrauchsausweis |
| Energieverbrauchskennwert | 54,0 kWh/(m²*a) |
| Energieeffizienzklasse | B |
54,0
kWh/(m²*a)
Energieeffizienzklasse B
- A+
- A
- B
- C
- D
- E
- F
- G
- H
- 0
- 25
- 50
- 75
- 100
- 125
- 150
- 175
- 200
- 225
- >250
Beschreibung des Objekts
Lage
Die Immobilie befindet sich im Ortsteil Leeheim in einer verkehrsberuhigten Straße, welche nur durch Anlieger benutzt wird
Die günstige Lage innerhalb des Rhein-Main Gebietes, angebunden an die Autobahnen A5 und A67 sowie die Bundestraßen B44 und B26, ergeben Entfernungen von ca. 10 Kilometer zur Kreisstadt Groß-Gerau, ca. 14 Kilometer nach Darmstadt, ca. 36 Kilometer nach Mainz und ca. 45 Kilometer nach Frankfurt. Zur guten Infrastruktur gehören auch der Bahnanschluss von/nach Mannheim und Frankfurt sowie die verkehrenden Buslinien nach Groß-Gerau, Darmstadt und Rüsselsheim.
Leeheim verfügt über 2 Kindergärten sowie eine Grundschule. Weiter, bis zum Abitur, führende Schulen gibt es in Goddelau und Groß-Gerau.
Sonstige Angaben
Ausstattung
- Gas-Zentralheizung
- Erdgeschoß: Große Bodenfliesen
- Obergeschoß: Parkett
- Dachstudio: Granitfliesen
- Elektrische Rollläden (mit Fernbedienung und programmierbar)
- Wallbox in der Garage
- Verkauf der Immobilie ab 05.2026
Grundriss
01 Erdgeschoss.jpg
>
>
02 Obergeschoss.jpg
>
>
03 Dachstudio.jpg
>
>
04 Keller.jpg
>
>
Adresse
64560 Riedstadt
Interessante Orte
Preis- und Lageinformationen
Preistrend für Bestandsimmobilien in Riedstadt