Das Fertighaus EVOLUTION 136 von Bien-Zenker begeistert mit einem durchdachten Konzept, das auf die individuellen Wünsche und Vorstellungen der Bauherren eingeht. Mit einer Wohnfläche von 136 Quadratmetern und insgesamt 4 Zimmern, darunter 3 Schlafzimmer und 2 Badezimmer, bietet dieses Haus ausreichend Platz für Familien, Paare oder Singles, die Wert auf Flexibilität und Komfort legen. Die beiden Satteldach-Varianten verleihen dem Haus nicht nur einen modernen Charme, sondern sorgen auch für eine optimale Raumausnutzung. Die intelligente Raumaufteilung ermöglicht eine harmonische Verbindung von Wohn- und Arbeitsbereichen im Erdgeschoss und großzügigen Rückzugsorten im Obergeschoss. Ein besonderes Highlight ist die elegante, geradläufige Treppe, die die Diele nicht nur verbindet, sondern auch zu einem einladenden Mittelpunkt des Hauses macht.
Das EVOLUTION 136 überzeugt nicht nur durch seine Architektur, sondern auch durch durchdachte Komfortdetails. Die lichtdurchfluteten Räume schaffen eine angenehme Wohnatmosphäre, während die großzügigen Fensterfronten für ein harmonisches Zusammenspiel von Innen und Außen sorgen. Die Terrasse und der Garten laden zu entspannenden Stunden im Freien ein und bieten Raum für Freizeitaktivitäten mit der Familie. Dank des durchdachten Grundrisses finden Sie sowohl private Rückzugsorte als auch gesellige Bereiche, die das Zusammenleben fördern. Die durchdachte Raumaufteilung sorgt dafür, dass jede Familie ihr individuelles Lebensgefühl entfalten kann.
Mit der Ausbaustufe "Schlüsselfertig" entscheiden Sie sich für einen stressfreien Bauablauf. Bien-Zenker übernimmt für Sie den kompletten Hausbau, vom Fundament bis zum letzten Handgriff. Das bedeutet für Sie, dass Sie sich um nichts kümmern müssen und einfach einziehen können, sobald alles fertig ist. So sparen Sie Zeit, Nerven und Planung und können die Vorfreude auf Ihr neues Zuhause in vollen Zügen genießen. Diese Ausbaustufe bietet Ihnen den Komfort, den Sie verdienen, während Bien-Zenker sich um die Realisierung Ihrer Wohnträume kümmert.
Grundrisse und Abbildungen können Extras zeigen. Flächenangaben nach DIN 277.
Bien-Zenker: Ihr individuelles Zuhause in Bad Ems - Das Fertighaus EVOLUTION 136
56130 Bad Ems
Die vollständige Adresse der Immobilie erhalten Sie vom Anbieter.
Auf Karte anzeigen
Die vollständige Adresse der Immobilie erhalten Sie vom Anbieter.
Finanzierungszertifikat
In nur zwei Minuten zu Ihrem persönlichen Finanzierungszertifkat.
Infos
| Etagenzahl | 2 |
|---|---|
| Wohnfläche ca. | 136 m2 |
| Grundstücksfläche | 577 m2 |
| Zimmer | 4 |
| Schlafzimmer | 3 |
| Badezimmer | 2 |
Kosten
| Kaufpreis |
586.665 € |
|---|---|
| Provision | Nein |
Finanzierungsrechner:
Kaufpreis:
600.000 €
Eigenkapital:
600.000 €
Monatliche Rate
0 €
Effektiver Jahreszins
0 %
Sollzinsbindung
10 Jahre
Bausubstanz & Energieausweis
| Baujahr | unbekannt |
|---|---|
| Qualität der Austattung | Gehoben |
Beschreibung des Objekts
Ausstattung
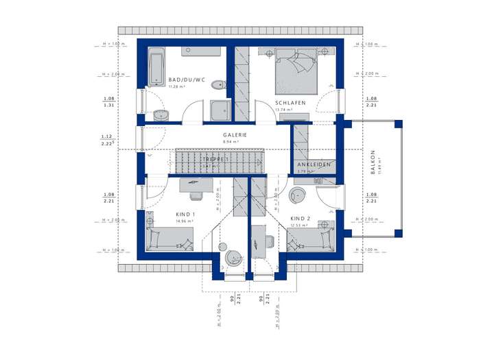
Der Grundriss des EVOLUTION 136 ist optimal auf die Bedürfnisse moderner Familien abgestimmt. Mit 4 Zimmern erstreckt sich die Wohnfläche von 136 Quadratmetern über zwei Etagen. Im Obergeschoss finden sich die drei Schlafzimmer, die Privatsphäre und Rückzugsmöglichkeiten bieten. Das großzügige Badezimmer sorgt für einen entspannten Start in den Tag, während das zusätzliche Badezimmer im Erdgeschoss für Komfort und Bequemlichkeit sorgt, besonders wenn Familie und Gäste zu Besuch sind. Die offene Gestaltung des Erdgeschosses fördert eine angenehme Raumwirkung und sorgt für ein harmonisches Miteinander.
Besondere Komfortdetails machen das Leben im EVOLUTION 136 noch angenehmer. Die lichtdurchfluteten Räume schaffen eine einladende Atmosphäre, die zum Verweilen einlädt. Die großzügigen Fenster erlauben nicht nur viel Tageslicht, sondern bieten auch einen herrlichen Ausblick in den Garten. Die Terrasse ist der perfekte Ort für gesellige Abende mit Familie und Freunden oder einfach zum Entspannen nach einem langen Tag. Das durchdachte Design der Räume sorgt dafür, dass jeder Bereich des Hauses harmonisch miteinander verbunden ist und gleichzeitig individuelle Rückzugsmöglichkeiten bietet.
Mit der Ausbaustufe "Schlüsselfertig" profitieren Sie von einem stressfreien Bauprozess. Bien-Zenker kümmert sich um alles - vom ersten Spatenstich bis zur finalen Übergabe. Sie müssen lediglich einziehen und den Komfort Ihres neuen Zuhauses genießen. Diese Ausbaustufe beinhaltet den kompletten Innenausbau, sodass Sie sich keine Gedanken über Materialbeschaffung oder Handwerkerorganisation machen müssen. So bleibt Ihnen mehr Zeit für die schönen Dinge im Leben und die Vorfreude auf Ihr neues, individuelles Zuhause.
Lage
Bad Ems besticht durch seine attraktive Lage, die sowohl Natur als auch eine hervorragende Infrastruktur bietet. In der Umgebung finden Sie zahlreiche Möglichkeiten zur Freizeitgestaltung, darunter Wanderwege, Parks und Sporteinrichtungen, die zu einem aktiven Lebensstil einladen. Für Familien ist die Nähe zu Bildungseinrichtungen wie Schulen und Kindergärten ein entscheidender Vorteil. Einkaufsmöglichkeiten sind ebenfalls in kurzer Distanz erreichbar, sodass Sie alles für den täglichen Bedarf bequem vor der Haustür haben.
Die Anbindung an den öffentlichen Nahverkehr ist optimal, sodass Sie schnell und unkompliziert in die angrenzenden Städte gelangen. Die Autobahn ist ebenfalls nur wenige Minuten entfernt, was Ihnen eine hervorragende Erreichbarkeit der umliegenden Metropolregionen ermöglicht. So können Sie die Vorzüge des Lebens in Bad Ems genießen und sind gleichzeitig gut angebunden. Diese Kombination aus ländlichem Charme und städtischer Anbindung macht Bad Ems zu einem idealen Wohnort für alle, die die Ruhe der Natur mit den Annehmlichkeiten des städtischen Lebens verbinden möchten.
Grundriss
33284-1705-4-g
>
>
33287-1705-3-g
>
>
Adresse
56130 Bad Ems
Interessante Orte
Preis- und Lageinformationen
Preistrend für Bestandsimmobilien in Bad Ems