Das Ein-Zweifamilienhaus wurde im Jahr 2005 er-richtet und besticht durch eine verklinkerte Außenfassade, die dem Gebäude nicht nur eine attraktive Optik verleiht, sondern auch für Langlebigkeit und eine pflegeleichte Wartung sorgt. Die Fassade be-findet sich in einem sehr guten Zustand, und die Farbgestaltung des Klinkers fügt sich harmonisch in die umliegende Landschaft ein.
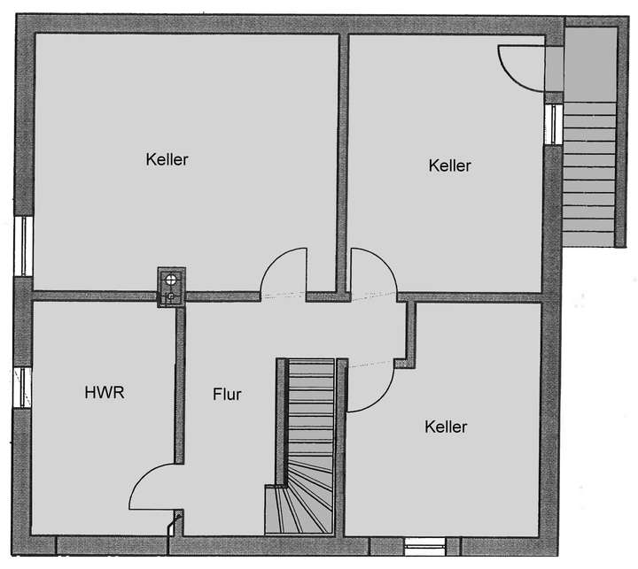
Das Objekt bietet einen Vollkeller, der eine großzügige Nutzfläche bereithält. Der Keller ist solide gebaut, jedoch sind an den Außenwänden Feuchtigkeitsspuren zu erkennen.
Der Carport zeigt sich als praktisch und funktional, ohne dabei das Gesamtbild des Hauses zu überfrachten. Er ist in offener Bauweise gestaltet.
Das Innere des Hauses bietet eine durchdachte Raumaufteilung und eignet sich sowohl hervorragend für eine Familie als auch für zwei separate Wohneinheiten. Dies schließt die Möglichkeit ein, das Gebäude als Einfamilienhaus oder als Mehrgenerationenhaus zu nutzen, was besonders hohe Flexibilität ermöglicht.
Das Einfamilienhaus präsentiert sich in einem gepflegten Zustand und kann mit nur geringem Reno-vierungsaufwand bezogen werden. Wände, Böden und Sanitärbereiche sind sauber und funktional, sodass keine größeren Investitionen erforderlich sind.
WIR FINDEN... dank der guten Bausubstanz und des modernen Ausstattungsstandards eignet sich das Haus ideal für Käufer, die zeitnah einziehen möchten, ohne eine umfassende Sanierung durch-führen zu müssen
Sie möchten mehr über dieses Haus erfahren? Gerne senden wir Ihnen unser ausführliches Exposé und machen einen privaten Kennenlerntermin bei einer Besichtigung.
Ihr Eckhard H. Imruck - 0172 2737517
Modernes Ein- Zweifamilienhaus in ruhiger Lage
Schwester-Katharina-Straße 22,
67578 Gimbsheim
Auf Karte anzeigen
Finanzierungszertifikat
In nur zwei Minuten zu Ihrem persönlichen Finanzierungszertifkat.
Infos
| Haustyp | Einfamilienhaus |
|---|---|
| Etagenzahl | 2 |
| Wohnfläche ca. | 162 m2 |
| Nutzfläche | 85 m2 |
| Grundstücksfläche | 440 m2 |
| Bezugsfrei ab | nach Absprache |
| Zimmer | 5 |
| Schlafzimmer | 3 |
| Badezimmer | 2 |
| Garage/Stellplatz | Carport |
| Anzahl Garage/Stellplatz | 1 |
Kosten
| Kaufpreis |
458.000 € |
|---|---|
| Provision |
2,98 % inkl. 19 % MwSt. Nach Abschluss des notariellen Kaufvertrags erhält der Makler vom Käufer eine Maklerprovision in Höhe von 2,5 % des Kaufpreises (zzgl. der gesetzlichen Mehrwertsteuer).Zudem zahlt der Auftraggeber dem Makler nach Abschluss des notariellen Kaufvertrags eine Maklerprovision in Höhe von 2,5 % des Kaufpreises (zzgl. der gesetzlichen Mehrwertsteuer). |
Finanzierungsrechner:
Kaufpreis:
600.000 €
Eigenkapital:
600.000 €
Monatliche Rate
0 €
Effektiver Jahreszins
0 %
Sollzinsbindung
10 Jahre
Bausubstanz & Energieausweis
| Baujahr | 2005 |
|---|---|
| Bauphase | Haus fertig gestellt |
| Qualität der Austattung | Normal |
| Heizungsart | Zentralheizung |
| Wesentliche Energieträger | Gas |
| Energieausweis | liegt vor |
| Energieausweistyp | Verbrauchsausweis |
| Energieverbrauchskennwert | 61,9 kWh/(m²*a) |
| Energieeffizienzklasse | B |
61,9
kWh/(m²*a)
Energieeffizienzklasse B
- A+
- A
- B
- C
- D
- E
- F
- G
- H
- 0
- 25
- 50
- 75
- 100
- 125
- 150
- 175
- 200
- 225
- >250
Beschreibung des Objekts
Ausstattung
Das im Jahr 2005 errichtete Einfamilienhaus ist mit einem modernen Gas-Brennwertgerät der Marke Viessmann ausgestattet und verfügt zusätzlich über einen separaten Beistellboiler.
Im Wohnzimmer bietet sich Ihnen der Vorteil eines eigenen Kaminzugs, der unabhängig von anderen Feuerstätten genutzt werden kann. Dies eröffnet Ihnen die hervorragende Möglichkeit, einen Kaminofen nach Ihren Wünschen anzuschließen und somit eine gemütliche Atmosphäre zu schaffen.
Der Bodenbelag im Wohn- und Schlafzimmer des Erdgeschosses ist aus hochwertigem Parkett gefertigt, während das Badezimmer, das Gäste-WC, der Hauswirtschaftsraum, die Küche sowie die Diele mit Fliesen versehen sind. Im Dachgeschoss sind der Wohnbereich, das Badezimmer und der Abstellraum gefliest, während die übrigen Räume mit Laminatboden ausgestattet sind.
Die Kellerräume sind durchgehend gefliest, wobei der größte Keller über ein großzügiges Tageslichtfenster verfügt und zusätzlich mit einer Heizung ausgestattet ist.
Hiermit möchten wir Sie darauf hinweisen, dass im Massivkeller Feuchtigkeit in den Außenwänden festgestellt wurde. Die Berücksichtigung der Schadensbehebung fand bereits bei der Ermittlung des Kaufpreises statt.
Lage
67578 Gimbsheim - Ein Ort mit reicher Geschichte und moderner Lebensqualität
Gimbsheim, innerhalb der Verbandsgemeinde Eich gelegen, kann auf eine beeindruckende über 1200-jährige Ortsgeschichte zurückblicken. Eingebettet zwischen den Städten Worms, Mainz und Alzey präsentiert sich die Gemeinde inmitten der malerischen Wein- und Kulturlandschaft Rheinhessen im Landkreis Alzey-Worms.
Von einem ursprünglich kleinen Fischer- und Bauerndorf hat sich Gimbsheim zu einer dynamischen Wohngemeinde entwickelt, die idealen Wohnraum für berufstätige Menschen bietet, die in den nahen Industriestädten ihrer Erwerbstätigkeit nachgehen.
Architektur und Sehenswürdigkeiten
Gimbsheim besticht durch eine attraktive Kombination aus modernen und traditionellen Bauwerken. Die malerischen Fachwerkhäuser im Ortskern prägen das Erscheinungsbild eines typischen rheinland-pfälzischen Dorfes. Die evangelische Kirche ist ein herausragendes Bauwerk, das auf eine lange Geschichte zurückblickt und nach wie vor ein zentraler Treff-punkt für die Gemeindemitglieder ist.
Zudem laden in der Umgebung mehrere Wander- und Radwege dazu ein, die naturbelassene Landschaft zu entdecken und zu erkunden.
Geografische Lage und Natur
Die geografische Lage Gimbsheims ist von landschaftlicher Schönheit geprägt, wobei die unmittelbare Nähe zum Rhein und den idyllischen Auenlandschaften eine große Rolle spielt. Der Fluss hat sowohl für die historische als auch für die wirtschaftliche Entwicklung der Region eine bedeutende Stellung. Die umliegende Natur zeichnet sich durch Felder, Wälder und die typischen Rheinauen aus. Besonders reizvoll ist das Naturschutzgebiet „Rheinauen“, das Wanderern und Naturfreunden zahlreiche Gelegenheiten für Ausflüge bietet.
Gimbsheim zählt etwa 3.150 Einwohner und ist von malerischen Weinbergen und landwirtschaftlichen Flächen umgeben.
Die Gemeinde bietet ein beheiztes Freibad sowie einen Naturbadesee. Ein umfangreiches Freizeitangebot mit Rad- und Wanderwegen sowie rund 35 verschiedenen Vereinen sorgt dafür, dass hier jeder auf seine Kosten kommt.
„Hier bin ich Mensch - hier darf ich’s sein!“
Sonstige Angaben
Die vorgenannten Angaben sollen dazu dienen, Ihnen eine Übersicht über die wesentlichen Rahmenbedingungen des Objekts zu geben.
Weitere Objektunterlagen wie Grundrisspläne, Grundbuchauszug, Lageplan etc. können wir Ihnen selbstverständlich kurzfristig zur Verfügung stellen.
Dieses Angebot unterbreiten wir Ihnen auf Basis unserer als Anlage beigefügten Allgemei-nen Geschäftsbedingungen (AGB). Unser Angebot wurde von uns aufgrund von Angaben und Unterlagen Dritter – insbesondere des Verkäufers – zusammengestellt.
Bei aller Sorgfalt können wir eine Haftung für deren Richtigkeit und Vollständigkeit nicht übernehmen. Ebenso wenig können wir eine anderweitige Veräußerung ausschließen.
Nähere Angaben auf Anfrage!
Weitere Dokumente
AGBGrundriss
Grundriss_KG 2
>
>
Grundriss_EG 2
>
>
Grundriss_DG 2
>
>
Adresse
Schwester-Katharina-Straße 22, 67578 Gimbsheim
Interessante Orte
Preis- und Lageinformationen
Preistrend für Bestandsimmobilien in Gimbsheim