Zum Verkauf steht ein attraktives Grundstück mit einer Gesamtfläche von ca. 1.156 m², aufgeteilt in ca. 737 m² Baugrundstück für das ein Preis von je 490 €/m² sowie zusätzlichen ca. 419 m² Hinterland und Grünfläche, für die je 25 €/m² aufgerufen werden.
Das Grundstück bietet ideale Voraussetzungen für die Errichtung eines modernen Mehrfamilienhauses.
Der Eigentümer hatte bereits Planungen für das Bauvorhaben in Auftrag gegeben, möchte diese aufgrund seines hohen Alters jedoch nicht mehr realisieren. Der Bauantrag für dieses Grundstück wurde bereits genehmigt, ist jedoch inzwischen abgelaufen. Ein neuer Eigentümer kann die Genehmigung bei Interesse erneut beantragen oder bei der zuständigen Bauaufsichtsbehörde eine Verlängerung prüfen lassen. Damit besteht weiterhin eine sehr gute Grundlage für eine zeitnahe Realisierung des Bauvorhabens.
Die Flächen im Hang hinter dem Gebäude hatte er angedacht, für die Installation von Solartechnik zu nutzen. Die entsprechenden Baupläne liegen diesem Exposé bei.
Die Lage überzeugt durch eine hervorragende Anbindung an öffentliche Verkehrsmittel, eine gute Infrastruktur sowie die Nähe zu Einkaufsmöglichkeiten. Damit stellt das Grundstück sowohl für Eigennutzer als auch für Kapitalanleger eine interessante Investitionsmöglichkeit dar.
Die großzügige Fläche und die günstige Grundstücksform ermöglichen die Umsetzung eines durchdachten Wohnprojekts mit hoher Wohnqualität und zeitgemäßem Komfort.
Baugrundstück in Königswinter – Grund für Einfamilienhaus - Doppelhaushälften - Mehrfamilienhaus
53639 Königswinter
Die vollständige Adresse der Immobilie erhalten Sie vom Anbieter.
Auf Karte anzeigen
Die vollständige Adresse der Immobilie erhalten Sie vom Anbieter.
Finanzierungszertifikat
In nur zwei Minuten zu Ihrem persönlichen Finanzierungszertifkat.
Infos
| Vermarktungsart | Kaufen |
|---|---|
| Grundstücksfläche | 1.156 m2 |
| Verfügbar ab | nach Vereinbarung |
Kosten
| Miete pro Jahr |
372.000 € |
|---|---|
| Provision |
3,57 % inkl.. 19% MwS.t vom Kaufpreis Bei Abschluss eines Kaufvertrages ist eine Provision von 3,57 % aus der Kaufsumme inkl. gesetzlicher Mehrwertsteuer zu zahlen. Die Provision ist bei Vertragsabschluss verdient und vom Käufer an Siegmund Immobilien zu zahlen. |
Finanzierungsrechner:
Kaufpreis:
600.000 €
Eigenkapital:
600.000 €
Monatliche Rate
0 €
Effektiver Jahreszins
0 %
Sollzinsbindung
10 Jahre
Beschreibung des Objekts
Lage
Das Baugrundstück befindet sich in der Winzerstraße in Königswinter, einer der begehrten Wohnlagen am Fuße des Siebengebirges. Es liegt in einem gewachsenen Wohngebiet mit Ein- und Zwei- sowie Mehrfamilienhäusern.
Das Grundstück erstreckt sich zwischen den Bestandsimmobilien Winzerstraße 34 und Winzerstraße 52. Im direkten Umfeld befinden sich gepflegte Wohnhäuser sowie Gärten, die für ein grünes und freundliches Wohnumfeld sorgen. Die Winzerstraße zeichnet sich durch ihre verkehrsberuhigte Lage und die gleichzeitig gute Anbindung aus: Einkaufsmöglichkeiten, Schulen, Kindergärten sowie Ärzte sind in wenigen Minuten erreichbar. Zudem bietet die nahegelegene Rheinuferpromenade attraktive Freizeitmöglichkeiten.
Lagebeschreibung – Königswinter
Mit rund 41.000 Einwohnern zählt Königswinter zu den stärkeren Kommunen im Rhein-Sieg-Kreis – die Kaufkraft liegt über dem Bundesschnitt (ca. 117 %). Die Stadt überzeugt durch ihre Lage am Rhein, die Nähe zu Bonn und die hohe Wohnqualität – ideale Rahmenbedingungen für ein attraktives Wohnbauprojekt.
Wirtschaftliche und demographische Rahmenbedingungen
Die unmittelbare Nähe zur Bundesstadt Bonn mit ihren internationalen Organisationen, Behörden, Unternehmen und Forschungseinrichtungen sorgt für eine kontinuierliche Nachfrage nach Wohnraum. Besonders Berufspendler, Familien und Senioren schätzen die Kombination aus naturnahem Wohnen im Siebengebirge und der schnellen Erreichbarkeit der städtischen Infrastruktur in Bonn und Köln. Für Bauunternehmer bedeutet dies: eine nachhaltige Vermietbarkeit und Werthaltigkeit neu geschaffener Wohneinheiten.
Verkehrsanbindung
Königswinter verfügt über eine ausgezeichnete Verkehrsanbindung. Über die B42 besteht eine schnelle Verbindung nach Bonn, Köln und Koblenz. Die Autobahnen A3, A59 und A565 sind in wenigen Fahrminuten erreichbar. Darüber hinaus ist Königswinter an das Netz der Deutschen Bahn sowie an die Stadtbahnlinie 66 („Telekom-Express“) angebunden, die eine direkte Verbindung nach Bonn und Sankt Augustin bietet. Der Flughafen Köln/Bonn ist in ca. 25 Minuten erreichbar.
Wohn- und Lebensumfeld
Die Stadt bietet eine sehr gute Infrastruktur mit Schulen, Kindergärten, Ärzten, Einkaufsmöglichkeiten und Gastronomie. Gleichzeitig sorgen der Rhein und das angrenzende Siebengebirge für ein hohes Maß an Freizeitwert und Lebensqualität. Diese Kombination macht Königswinter besonders attraktiv für Menschen, die stadtnah wohnen und gleichzeitig im Grünen leben möchten.
Nachfrage nach Wohnraum
Die Wohnraumnachfrage ist konstant hoch, insbesondere nach modernen Mietwohnungen in Mehrfamilienhäusern. Die zentrale Lage im Speckgürtel von Bonn, die hohe Kaufkraft und die Qualität des Wohnumfeldes schaffen ideale Voraussetzungen für eine erfolgreiche Projektentwicklung.
Fazit für Bauunternehmer und Investoren
Für Bauunternehmer bietet Königswinter ein zukunftssicheres Investitionsumfeld. Die Kombination aus hoher Kaufkraft, stabiler Nachfrage nach Wohnraum, guter Anbindung an die Wirtschaftszentren Bonn und Köln sowie der attraktiven Lage im Siebengebirge ermöglicht eine erfolgreiche Realisierung von Mehrfamilienhausprojekten – sowohl für die Vermietung als auch für den Verkauf an Eigennutzer und Kapitalanleger.
Sonstige Angaben
Was machen Sie daraus?
Auch heute braucht es nicht viel Vorstellungskraft, um zu erkennen, welches Potenzial dieses Baugrundstück bietet. Ob modernes Mehrfamilienhaus, Einfamilienhaus mit Garten oder ein individuell geplantes Projekt – die großzügige Fläche und die günstige Grundstücksform bieten vielfältige Möglichkeiten. Das Grundstück ist derzeit mit Bäumen und Büschen bewachsen, die sich je nach Planung entfernen oder in die Gestaltung einbeziehen lassen.
Sind Sie neugierig geworden? Kontaktieren Sie uns gerne telefonisch – wir stehen Ihnen für alle Fragen rund um das Grundstück zur Verfügung.
Gerne vermitteln wir auch Architekten, Planer, Bauunternehmen oder weitere Dienstleister aus unserem Netzwerk, um Sie bei der Planung und Umsetzung Ihres Projektes zu unterstützen.
Hinweise:
Alle Angaben sind ohne Gewähr und basieren u. a. auf Informationen, die uns von unserem Auftraggeber übermittelt wurden. Siegmund Immobilien übernimmt keine Gewähr für die Vollständigkeit, Richtigkeit und Aktualität dieser Angaben. Irrtum und Zwischenverkauf vorbehalten.
Wird dem Vertragspartner eine Gelegenheit zum Abschluss eines Rechtsgeschäftes nachgewiesen, so wird vermutet, dass ihm das Objekt unbekannt ist, wenn er nicht innerhalb von zwei Wochen widerspricht und Mitteilung darüber macht, woher die Kenntnis stammt.
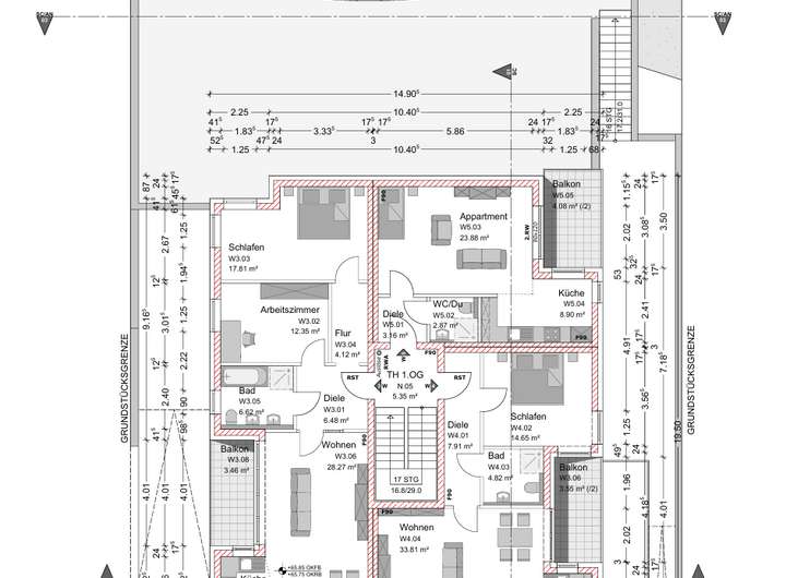
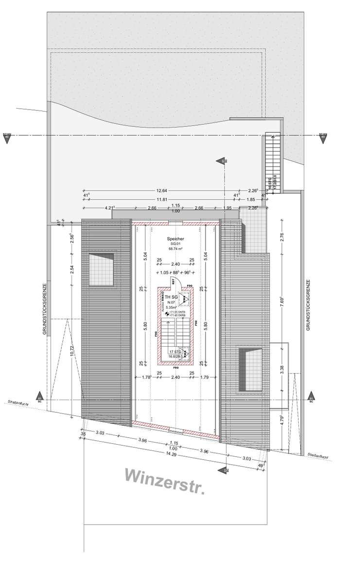
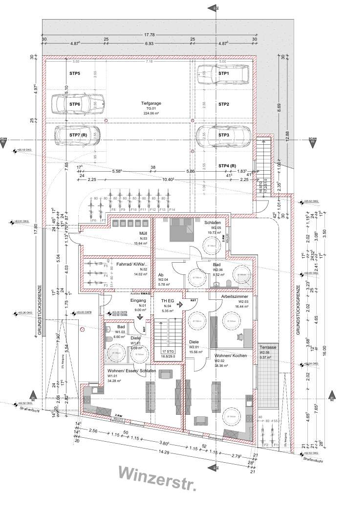
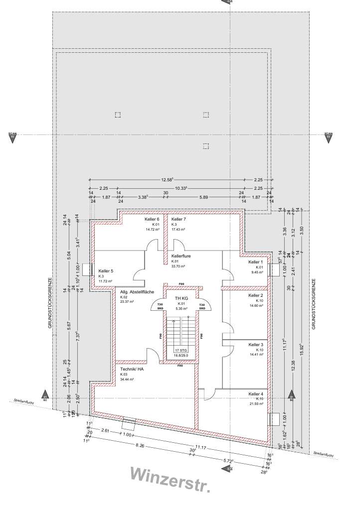
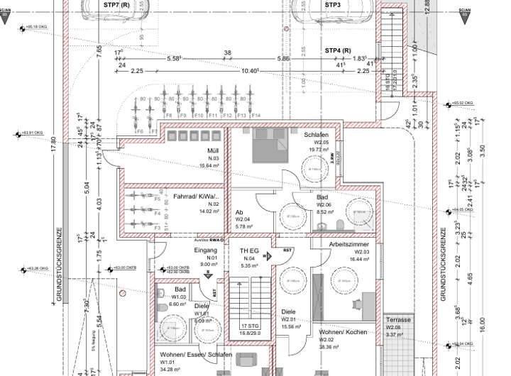
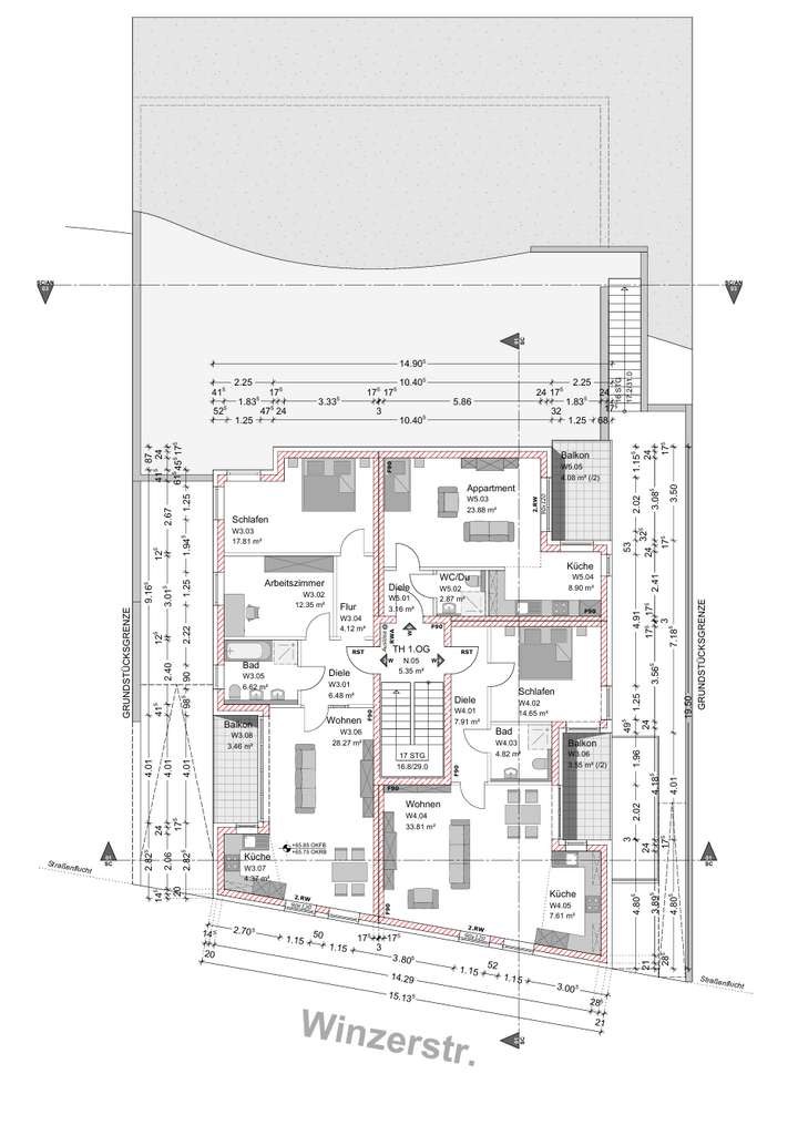
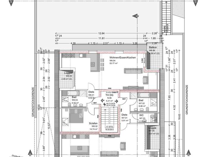
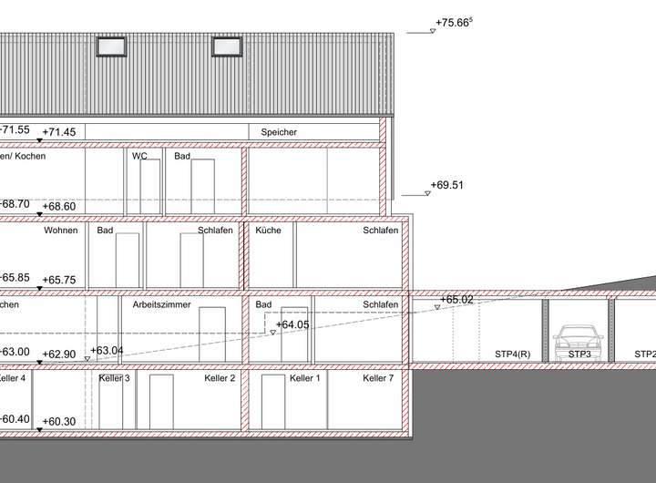
Grundriss
Grundriss Erdgeschoss
>
>
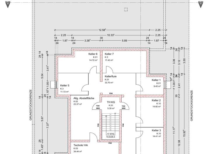
Grundriss Kellergeschoss
>
>
Grundriss Obergeschoss
>
>
Grundriss Dachgeschoss
>
>
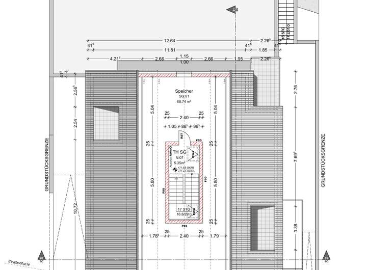
Grundriss Spitzdach
>
>