🚀 Unsere Mission:
WHITE & BLACK🤍🖤
WOHNEIGENTUM BEZAHLBAR💡💶
Ein Eigenheim zu besitzen, ist ein großartiges
Lebensziel - es ist ein Meilenstein für die eigene
Life Journey. Doch viele ahnen nicht, dass ihr
eigenes Zuhause zum Greifen nah ist. Wir wissen,
dass Wohneigentum für viel mehr Menschen
realisierbar ist und haben mit White&Black die
Lösung für diejenigen geschaffen, die sich dieser
Traum erfüllen mochten. ✨🏠
Wir stehen für modernes Wohnen, das nicht nur
erschwinglich, sondern auch zukunftssicher ist.
Dein Zuhause gibt dir Stabilität, Freiheit und die
Sicherheit, in deine eigene Zukunft zu investieren -
ohne steigende Mieten, ohne Abhängigkeit, dafür
mit echtem Wert. 💎🌱
Wohnen bedeutet mehr als ein
Dach über dem Kopf - es ist das Ankommen im
eigenen Leben. 🏡❤️
Mainz / Weil Wohnen mehr ist als nur vier Wände.
55128 Mainz
Die vollständige Adresse der Immobilie erhalten Sie vom Anbieter.
Auf Karte anzeigen
Die vollständige Adresse der Immobilie erhalten Sie vom Anbieter.
Finanzierungszertifikat
In nur zwei Minuten zu Ihrem persönlichen Finanzierungszertifkat.
Infos
| Haustyp | Einfamilienhaus |
|---|---|
| Wohnfläche ca. | 150 m2 |
| Nutzfläche | 0 m2 |
| Grundstücksfläche | 615 m2 |
| Zimmer | 4 |
| Schlafzimmer | 3 |
| Badezimmer | 1 |
| Anzahl Garage/Stellplatz | 0 |
Kosten
| Kaufpreis |
990.000 € |
|---|---|
| Provision | Nein |
Finanzierungsrechner:
Kaufpreis:
600.000 €
Eigenkapital:
600.000 €
Monatliche Rate
0 €
Effektiver Jahreszins
0 %
Sollzinsbindung
10 Jahre
Bausubstanz & Energieausweis
| Baujahr | 2026 |
|---|---|
| Bauphase | Haus in Planung (projektiert) |
| Qualität der Austattung | Gehoben |
| Heizungsart | Wärmepumpe |
Beschreibung des Objekts
Ausstattung
THINK WHITE 🤍 oder THINK BLACK 🖤? Oder doch ein bisschen was von beiden? - Then THINK GREY 🩶. Egal ob WHITE, BLACK oder GREY - ihr entscheidet!
🤍 THINK WHITE – do it yourself (im Preis enthalten)
Für alle, die selbst mitgestalten wollen. Mit der Ausbaustufe WHITE erhaltet Ihr die fertige Gebäudehülle - der Innenausbau liegt in euren Händen 🤲🛠️. Perfekt für kreative Köpfe und Macher, die ihr Zuhause individuell gestalten möchten. Wenn ihr handwerklich geschickt seid bzw. Geld sparen möchtet, ist das die ideale Wahl für euch💡💪.
Bei Ausbaustufe WHITE 🤍 enthalten:
🏅 Energieeffizienzhaus 55 🌱
✔️ Fertig verputzte Außenwände💡
✔️ Inkl. Fenster 🪟, Haustür 🚪, Dacheindeckung 🏠
✔️ Dezentrales Lüftungssystem 💨
✔️ auch innen bereits geschlossene (beplankte) Wände = malerfertig mit Vorbereitung für Elektroinstallation (das spart euch viel Arbeit)✨
....oder lieber ein bisschen mehr?
🩶 THINK GREY - nearly finished (gegen Aufpreis ca. 90.000€)
Ideal für alle, die Zeit sparen und den technischen Innenausbau in erfahrene Hände legen möchten. Ihr kümmert euch nur noch um den kreativen Feinausbau – den Rest übernehmen wir. 💡🙌
Bei Ausbaustufe GREY 🩶 enthalten:
✔️ Ausbaustufe WHITE 🤍 wie oben stehend und zusätzlich:
✔️ Elektroinstallation ⚡
✔️ Sanitärverrohrung 🚿
✔️ Wärmepumpen-Heizung 🔥
✔️ Geschlossene (beplankte) Decken & Dachschrägen ✨
✔️ Schwimmender Estrich 🔗
🖤 THINK BLACK - all-in (gegen Aufpreis)
Ihr wollt Full-Service? Dann ist 🖤 BLACK das Richtige für euch - wir übernehmen den kompletten Innenausbau, sodass Ihr ein schlüsselfertiges = bezugsfertiges Zuhause erhaltet - ready-to-move-in 🚚✨.
Bei Ausbaustufe 🖤 BLACK enthalten:
✔️Wand- und Bodenfliesen
✔️Sanitärobjekte
✔️Spachtelarbeiten
✔️Maler- und Tapezierarbeiten
✔️Laminat- und Bodenbeläge (Teppich)
✔️Innentüren
💡Für die o.g. Leistungen gibt es auch ein Materialpaket, bei dem alle Mengen schon genau auf euer Haus abgestimmt sind. So spart Ihr, die SH-Lohnkosten durch Eigenleitung.
Im oben genannten Preis ist das Wohnhaus mit der zuvor beschriebenen Ausstattung sowie das Baugrundstück eingerechnet. Die üblichen orts- und grundstücksabhängigen Erwerbs- & Baunebenkosten, die Bodenplatte bzw. ein gewünschter Keller, Garagen, Carports sind hinzuzurechnen.
Lage
🎯Gebaut wird in einem schönen, zentralgelegenen Wohngebiet in Mainz.
👨👩👧👦 Der Kindergarten sowie die Grundschule sind in wenigen Minuten zu erreichen. Weiterführende Schulen befinden sich direkt im Ort.
🏪 In nur wenigen Minuten erreichen Sie umfangreiche Einkaufsmöglichkeiten (Supermärkte, Bäcker, Apotheke, Ärzte, Drogeriemarkt, Banken, Getränkemarkt).
🛣️ Der nächste Autobahn-Anschluss (A60 bzw. A63) ist in ca. 5 Minuten erreichbar, der Flughafen Frankfurt am Main in ca. 35 Minuten. Auch die Wiesbadener Innenstadt erreichen Sie per Auto in nur ca. 15 Minuten.
📅....am besten selbst überzeugen - ein Termin ist schnell vereinbart.
(Es gibt keine weiteren EXPOSÉ-Daten zu diesem Neubauprojekt, da individuell nach euren Wünschen auf dem Baugrundstück gebaut wird. Individuelle Wünsche klären wir gerne im persönlichen Gespräch)
Sonstige Angaben
Das angebotene Haus ist projektiert inkl. Grundstück. Das Grundstück wird in Kommission mit angeboten bzw. direkt von Dritten verkauft. Daher kann der o.g. Preis aufgrund aktueller Marktsituationen schwanken.
Abbildungen und Grundrisse sind beispielhaft und können Extras zeigen, wie z.B. Carports, Garagen, Keller, zusätzl. Fenster und Anbauteile (die ggf. in den Grundrissen mehr Wohnfläche darstellen), die alle als Sonderausstattung gegen Preiskorrektur angeboten werden könnten. Der o. g. Preis bezieht sich auf die Gesamt-Wohnfläche im Textteil. Die Flächenangaben verstehen sich in Anlehnung an die DIN 277.
Die Fotos und das Bildmaterial sind urheberrechtlich geschützt. Die Nutzungsrechte liegen bei der Schwabenhaus GmbH bzw. der FH Solutions GmbH.
Änderungen und Irrtümer sind vorbehalten. Angebote sind freibleibend und unverbindlich. Weitere Geschäftsbedingungen sind in der Rubrik RECHTLICHE ANGABEN / IMPRESSUM aufgeführt.
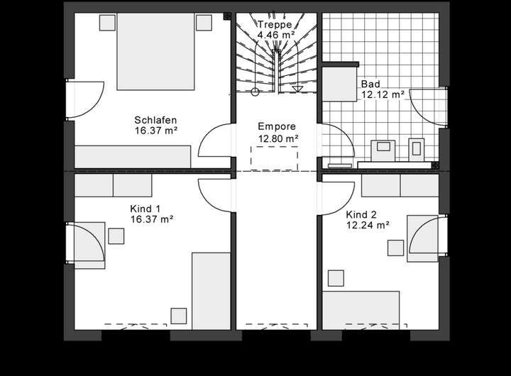
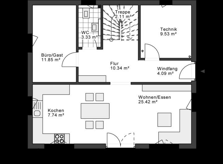
Grundriss
Grundriss EG
>
>
Grundriss OG
>
>
Adresse
55128 Mainz
Interessante Orte
Preis- und Lageinformationen
Preistrend für Bestandsimmobilien in Bretzenheim