Im Weinort Sprendlingen, inmitten der Region Rheinhessen, wird ein exklusives Neubauprojekt mit hochwertigen Einfamilienhäusern in einer zeitlosen Stadtvilla-Architektur realisiert. An dieser Stelle verschmelzen naturräumliche Beschaffenheit und städtische Infrastruktur zu einem Wohnkonzept, das sowohl für Eigennutzer als auch für Kapitalanleger attraktiv ist. Sprendlingen zeichnet sich durch eine verkehrsgünstige Lage inmitten einer reizvollen Landschaft mit weitläufigen Weinbergen aus und bietet die perfekte Balance zwischen Erholung, Lebensqualität und Zukunftssicherheit. Die modernen Stadtvillen zeichnen sich durch eine durchdachte Raumaufteilung, den Einsatz moderner Technik und ein auf Nachhaltigkeit ausgerichtetes Energiekonzept aus. Diese eignen sich ideal für Familien, Paare oder Einzelpersonen, die eine Immobilie in einer ruhigen, aber vernetzten Lage für den Eigenbedarf suchen. Auch Investoren, die auf eine wertstabile und zukunftsfähige Immobilie setzen, finden in dem Objekt eine geeignete Möglichkeit der Kapitalanlage.
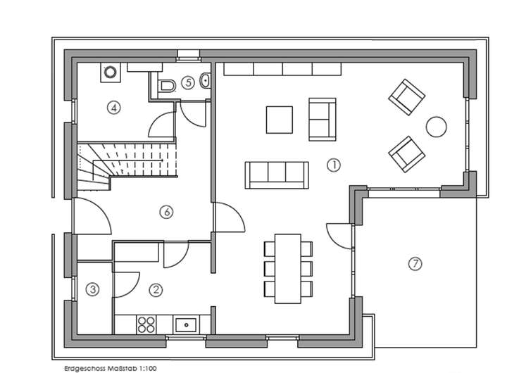
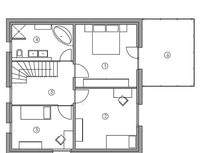
Die Stadtvilla präsentiert sich mit einer Wohnfläche von rund 150 m² und bietet auf drei Ebenen großzügige Entfaltungsmöglichkeiten. Das Erdgeschoss verfügt über einen offenen Wohn- und Essbereich mit bodentiefen Fenstern und einen direkten Zugang zur sonnigen Terrasse sowie zum privaten Garten. Das Raumangebot auf dieser Ebene wird durch eine separate Küche, ein Gäste-WC sowie einen großzügigen Hauswirtschaftsraum ergänzt. Im Obergeschoss befinden sich ein Elternschlafzimmer, zwei vielseitig nutzbare Kinder- oder Arbeitszimmer sowie ein Badezimmer, das mit einer ebenerdigen Dusche, Badewanne und Doppelwaschtisch ausgestattet ist. Das Dachgeschoss, das durch den Ausbau zusätzlichen Raum erhält, eignet sich für die Nutzung als Atelier, weiteres Büro oder Gästezimmer, das durch die Schaffung von Stauraum noch besser genutzt werden kann.
Die Stadtvilla wird in massiver Bauweise errichtet und erfüllt den Standard eines KfW-Effizienzhauses 40 QNG Plus. Die Wärmeversorgung des Hauses erfolgt mittels einer Luft-Wasser-Wärmepumpe, welche den aktuellen Standards entspricht. Zur Gewährleistung eines optimalen Raumklimas ist eine kontrollierte Wohnraumlüftung installiert, die eine Versorgung der Wohn- und Schlafräume mit frischer, sauerstoffreicher Luft sicherstellt. Dreifach verglaste Fenster, ein Wärmedämmverbundsystem und hochwertige Schallschutzmaßnahmen garantieren Qualität, Energieeffizienz und Wohnkomfort auf höchstem Niveau. Zusätzlich verfügt die Stadtvilla über eine Photovoltaikanlage inklusive 5 kW Speicher, die eine nachhaltige Stromerzeugung ermöglicht und zur weiteren Steigerung der Energieeffizienz beiträgt. Pro Haus sind zwei Stellplätze im Preis inbegriffen, sodass Sie bequemes Parken direkt am Haus haben.
Hinweis: Die Immobilie wird in einem Ausbauzustand übergeben, bei dem Sie die Gestaltung selbst mitbestimmen können. Maler- und Tapezierarbeiten sowie die Auswahl und Verlegung der Bodenbeläge sind nicht im Kaufpreis enthalten. Diese können ganz nach Ihrem Geschmack in Eigenleistung ausgeführt oder auf Wunsch gegen Aufpreis über den Bauträger beauftragt werden. Die Fliesenarbeiten sind bereits im Leistungsumfang enthalten und werden fachgerecht verlegt.
Für Kapitalanleger bietet diese Immobilie hervorragende Perspektiven. Angesichts der hohen Nachfrage nach Wohnraum in dieser Region und des begrenzten Mietangebots sind perspektivisch steigende Mieten zu erwarten. Aufgrund der energieeffizienten Bauweise kommen Investoren in den Genuss steuerlicher Vorteile, wie etwa die Sonderabschreibung für Effizienzhäuser. Dabei ist in den ersten vier Jahren eine Abschreibung in Höhe von 10 % und danach eine degressive Abschreibung in Höhe von 5 % möglich. Zudem können Förderkredite der KfW-Bank in Anspruch genommen werden.
Ob zur Eigennutzung oder als langfristige Kapitalanlage: Diese moderne Stadtvilla im Neubaugebiet „Wißberg“ bi
Neubau-Stadtvilla mit höchster Energieeffizienz mit KfW QNG 40 Plus- Standard
55576 Sprendlingen
Die vollständige Adresse der Immobilie erhalten Sie vom Anbieter.
Auf Karte anzeigen
Die vollständige Adresse der Immobilie erhalten Sie vom Anbieter.
Finanzierungszertifikat
In nur zwei Minuten zu Ihrem persönlichen Finanzierungszertifkat.
Infos
| Haustyp | Einfamilienhaus |
|---|---|
| Etagenzahl | 3 |
| Wohnfläche ca. | 150 m2 |
| Grundstücksfläche | 377 m2 |
| Zimmer | 5 |
| Schlafzimmer | 3 |
| Badezimmer | 1 |
| Anzahl Garage/Stellplatz | 2 |
Kosten
| Kaufpreis |
715.500 € |
|---|---|
| Provision |
ohne Käuferprovision ohne Käuferprovision |
Finanzierungsrechner:
Kaufpreis:
600.000 €
Eigenkapital:
600.000 €
Monatliche Rate
0 €
Effektiver Jahreszins
0 %
Sollzinsbindung
10 Jahre
Bausubstanz & Energieausweis
| Baujahr | 2026 |
|---|---|
| Bauphase | Haus im Bau |
| Objektzustand | Erstbezug |
| Qualität der Austattung | Gehoben |
| Heizungsart | Wärmepumpe |
| Wesentliche Energieträger | Umweltwärme |
| Energieausweis | liegt zur Besichtigung vor |
Beschreibung des Objekts
Ausstattung
Ausstattung & Bauweise
- Zeitlose Stadtvilla-Architektur
- Massive Bauweise
- Wohnfläche ca. 150 m²
- Großzügiger, offener Wohn- und Essbereich mit bodentiefen Fenstern
- Separate Küche
- Gäste-WC im Erdgeschoss
- Hauswirtschaftsraum mit viel Stauraum
- Elternschlafzimmer im Obergeschoss
- Zwei weitere Zimmer (Kinderzimmer, Gäste- oder Arbeitszimmer)
- Ausgebautes Dachgeschoss (z. B. Büro, Gästezimmer, Atelier)
Energie & Technik
- KfW-Effizienzhaus 40 QNG Plus
- Luft-Wasser-Wärmepumpe
- Kontrollierte Wohnraumlüftung mit Wärmerückgewinnung
- Photovoltaikanlage inklusive 5kW Speicher
- Dreifach verglaste Fenster
- Wärmedämmverbundsystem
- Hochwertiger Schallschutz
Badezimmer
- Modern ausgestattetes Familienbad mit:
- ebenerdiger, gefliester Dusche
- Badewanne
- Doppelwaschtisch
- Hochwertige Armaturen
Außenbereich
- Terrasse mit Zugang zum privaten Garten
- Zwei Stellplätze (im Preis inbegriffen)
Kapitalanlage & Förderung
- Attraktive Renditeperspektive durch Mietpotenzial
- Steuerliche Vorteile (z. B. Sonderabschreibung für Effizienzhäuser)
- Förderkredite der KfW-Bank möglich
Lage
Inmitten der rheinhessischen Weinlandschaft entsteht in Sprendlingen ein Neubaugebiet, das sich durch seine attraktive Lage auszeichnet. Es verbindet ländliche Ruhe mit einer gut ausgebauten Infrastruktur. Die Nähe der A61 und B50 sowie des Bahnhofs Sprendlingen ermöglicht eine zügige Erreichbarkeit der Städte Mainz, Bingen und Frankfurt, was insbesondere für Pendler von Vorteil ist.
Die Gemeinde zeichnet sich durch eine hervorragende infrastrukturelle Grundversorgung aus, die durch verschiedene Einzelhandelsgeschäfte, Bäckereien, Apotheken und Ärzte geprägt ist. Für Familien sind insbesondere die Nähe zu Kindergärten, einer Grundschule im Ort und weiterführenden Schulen in der Umgebung attraktiv. Die medizinische Versorgung ist durch die lokale Verfügbarkeit von Fachärzten sichergestellt. Zudem befindet sich in Bad Kreuznach ein Krankenhaus in unmittelbarer Nähe.
Darüber hinaus bietet Sprendlingen eine Vielzahl an Möglichkeiten zur Freizeitgestaltung und Erholung. Das Gemeindegebiet verfügt über ein gut ausgebautes Netz an Rad- und Wanderwegen, welche durch die Weinberge führen, sowie über ein Freibad, Spiel- und Sportanlagen und ein reges Vereinsleben. All diese Aspekte tragen zur hohen Lebensqualität in Sprendlingen bei und machen den Ort zu einem attraktiven Wohnort.
Sonstige Angaben
Die in unserem Exposé enthaltenen Aussagen basieren ausschließlich auf Informationen, die uns vom Verkäufer und von Handwerkern zur Verfügung gestellt wurden.
Wir übernehmen daher keine Gewähr für die Vollständigkeit und Richtigkeit der Angaben.
Das Immobilienangebot ist freibleibend.
Irrtum und Zwischenverkauf bleiben vorbehalten.
Weitere Details zum Objekt erläutern wir Ihnen gerne bei einem Besichtigungstermin.
Wir bitten um Ihr Verständnis dafür, dass wir nur Anfragen mit vollständigen Adressdaten inklusive Vor- und Zuname, Anschrift, Telefon-/Mobilnummer und Email Adresse bearbeiten können.
Sie suchen nach der passenden Finanzierung? Wir finden sie!
Als ungebundene Finanzierungsvermittler vergleichen wir über 900 Banken und finden einen optimalen Kredit für Sie.
Wir prüfen für Sie ob öffentliche Fördermittel der KfW oder ISB-Rheinland-Pfalz eingesetzt werden können.
Sparen Sie Geld und Zeit! Mit Sicherheit günstiger als Ihre Hausbank.
Hier klicken: Kostenfrei Kreditvergleich und Finanzierungsbestätigung anfragen!
Wir freuen uns auf den Kontakt zu Ihnen:
Immotactics GmbH
0671 – 20272030
info@immotactics.de
Grundriss
Erdgeschoss
>
>
Obergeschoss
>
>
Dachgeschoss
>
>
Adresse
55576 Sprendlingen
Interessante Orte
Preis- und Lageinformationen
Preistrend für Bestandsimmobilien in Sprendlingen