Attraktives Mehrfamilienhaus mit drei Wohneinheiten – solide Kapitalanlage mit Entwicklungspotenzial
Dieses gepflegte Mehrfamilienhaus mit drei separaten Wohneinheiten präsentiert sich mit Wohnungen in zeitgemäßen Zustand und bietet hervorragende Voraussetzungen für eine nachhaltige Vermietung sowie langfristige Wertstabilität.
Erdgeschoss:
Die 3-Zimmer-Wohnung im Erdgeschoss umfasst 64,27 m² Wohnfläche. Sie ist funktional geschnitten und verfügt über eine Küche, ein Badezimmer, einen Flur sowie einen separaten Kellerraum. Ein zugeordneter Stellplatz erhöht die Attraktivität für Mieter zusätzlich.
Obergeschoss:
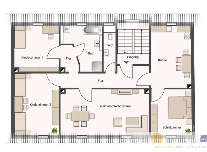
Die großzügige 4-Zimmer-Wohnung mit 90,88 m² Wohnfläche bietet durch ihre Aufteilung vielseitige Nutzungsmöglichkeiten – ideal für Familien oder Wohngemeinschaften. Zur Ausstattung gehören eine geräumige Küche, ein Badezimmer, ein separates WC, ein Flur sowie ein eigener Kellerraum. Ein Stellplatz ist ebenfalls vorhanden.
Dachgeschoss:
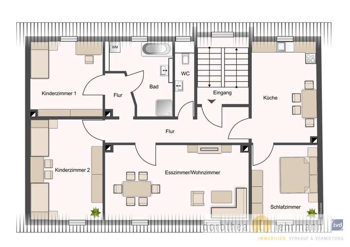
Die ca. 70 m² große 4-Zimmer-Wohnung im Dachgeschoss überzeugt mit einem durchdachten Grundriss. Auch hier stehen eine Küche, ein Bad, ein separates WC, ein Flur sowie ein Kellerraum zur Verfügung. Ein weiterer Stellplatz rundet das Angebot ab.
Fazit:
Mit drei gut vermietbaren Wohneinheiten in gefragter Größe und Aufteilung stellt dieses Objekt eine solide Investition mit attraktiver Renditechance dar. Der gepflegte Zustand sowie die vorhandenen Stellplätze und Kellerräume sprechen für ein dauerhaft hohes Mieterinteresse. Ideal für Kapitalanleger, die auf Stabilität und Werterhalt setzen.
Dreifamilienhaus mit gut ausgestatteten Wohnungen und soliden Mietern
65203 Wiesbaden
Die vollständige Adresse der Immobilie erhalten Sie vom Anbieter.
Auf Karte anzeigen
Die vollständige Adresse der Immobilie erhalten Sie vom Anbieter.
Finanzierungszertifikat
In nur zwei Minuten zu Ihrem persönlichen Finanzierungszertifkat.
Infos
| Haustyp | Mehrfamilienhaus |
|---|---|
| Wohnfläche ca. | 235 m2 |
| Grundstücksfläche | 421 m2 |
| Zimmer | 11 |
| Badezimmer | 3 |
| Garage/Stellplatz | Außenstellplatz |
| Anzahl Garage/Stellplatz | 3 |
Kosten
| Kaufpreis |
550.000 € |
|---|---|
| Provision |
5,95 % Der Käufer zahlt 5,95 % vom Kaufpreis |
Finanzierungsrechner:
Kaufpreis:
600.000 €
Eigenkapital:
600.000 €
Monatliche Rate
0 €
Effektiver Jahreszins
0 %
Sollzinsbindung
10 Jahre
Bausubstanz & Energieausweis
| Baujahr | 1895 |
|---|---|
| Objektzustand | Gepflegt |
| Qualität der Austattung | Normal |
| Heizungsart | Etagenheizung |
| Wesentliche Energieträger | Erdgas leicht |
| Energieausweis | liegt vor |
| Energieausweistyp | Bedarfsausweis |
| Energieverbrauchskennwert | 391,8 kWh/(m²*a) |
| Energieeffizienzklasse | H |
391,8
kWh/(m²*a)
Energieeffizienzklasse H
- A+
- A
- B
- C
- D
- E
- F
- G
- H
- 0
- 25
- 50
- 75
- 100
- 125
- 150
- 175
- 200
- 225
- >250
Beschreibung des Objekts
Ausstattung
Historisches Wohnhaus mit Charme und solider Substanz – modernisiert und bestens gepflegt
Das stilvolle, verklinkerte Gebäude stammt aus dem Jahr 1895 und vereint historischen Charakter mit zeitgemäßer Wohnqualität. Es wurde im Laufe der Jahrzehnte mehrfach modernisiert und umgestaltet. Bauliche Unterlagen aus den Jahren 1953, 1965 und 1990 dokumentieren die kontinuierliche Weiterentwicklung der Immobilie. Im Rahmen der letzten umfassenden Umgestaltung 1990 wurde das Haus in drei separate Wohneinheiten aufgeteilt.
Das Dachgeschoss wurde seit jeher zu Wohnzwecken genutzt – historische Pläne deuten darauf hin, dass es ursprünglich als Unterkunft für Dienstpersonal diente.
Bereits beim Betreten vermittelt das Haus einen gepflegten Eindruck. Die Wohnungen sind modern ausgestattet und verfügen jeweils über eine eigene Gasetagenheizung. Zu jeder Einheit gehören ein separates Kellerabteil sowie ein PKW-Stellplatz direkt vor dem Haus.
Ein besonderes Highlight ist der großzügige, autofreie Hinterhof, der der Mietergemeinschaft zur gemeinschaftlichen Nutzung zur Verfügung steht. Besonders bei Familien ist dieser grüne Außenbereich als geschützter Spielraum für Kinder sehr beliebt.
Die Modernisierungen im Einzelnen:
EG: Wohnung modernisiert in 2014 (Wände, Böden), Küche in 2015 , Bad in 2021.
1 OG: Alle Wände, Böden, Küche, Bad modernisiert in 2016
2 OG: Modernisierung inkl. Küche, Bad, WC etc. in 2013 / 2014
Lage
Zentrale Lage mit idealer Anbindung – Wohnen in Mainz-Amöneburg
Die Immobilie befindet sich in attraktiver Lage im Stadtteil Mainz-Amöneburg und überzeugt durch ihre zentrale Lage sowie die hervorragende Verkehrsanbindung an Wiesbaden und Mainz.
Besonders für Familien bietet die Umgebung beste Voraussetzungen: Ein Kindergarten liegt nur rund einen Kilometer entfernt, die nächstgelegene Grundschule erreicht man in etwa 1,5 Kilometern. Weiterführende Schulen wie Realschule und Gymnasium befinden sich jeweils in einem Umkreis von rund 3 Kilometern.
Auch die Anbindung an das überregionale Verkehrsnetz ist exzellent – die nächste Auffahrt zur A66 liegt lediglich ca. 2 Kilometer entfernt und ermöglicht eine schnelle Erreichbarkeit der umliegenden Städte. Das Zentrum von Wiesbaden und Mainz ist mit Bus und Auto in nur rund 5 Kilometern zu erreichen und bietet ein vielfältiges Angebot an Einkaufs-, Kultur- und Freizeitmöglichkeiten.
In unmittelbarer Umgebung der Immobilie finden sich zudem zahlreiche Einrichtungen des täglichen Bedarfs. Die Nähe zum Rhein sowie zu mehreren Naherholungsgebieten rundet die Wohnlage ab und sorgt für eine hohe Lebensqualität – sowohl für Familien als auch für Berufstätige, die urbanes Leben mit Erholungsmöglichkeiten verbinden möchten.
Sonstige Angaben
Unsere Angaben erfolgen nach den Angaben des Eigentümers. Das Exposé wurde vom Eigentümer geprüft und freigegeben, für die Richtigkeit und Vollständigkeit der Angaben der Eigentümer übernehmen wir keine Gewähr.
Sie möchten einen Besichtigungstermin vereinbaren? Dann schreiben Sie uns doch eine E-Mail mit Ihrem Terminwunsch für eine Besichtigung an info@lehrmann-mainz.de oder rufen Sie uns an.
Weitere Angebote finden Sie auf www.lehrmann-mainz.de.
Weitere Dokumente
Energieausweis-102933-HE-2025-Grundriss
_EG
>
>
OG
>
>
DG
>
>
Adresse
65203 Wiesbaden
Interessante Orte
Preis- und Lageinformationen
Preistrend für Bestandsimmobilien in Amöneburg