Dieses denkmalgeschützte Giebelhaus aus der Gründerzeit – eine typische „Oldenburger Hundehütte“ – wurde zwischen 1895 und 1897 von Johann Wempe errichtet und besticht durch seine historische Fassade mit dekorativen Gesimsen und Verdachungen sowie durch seine attraktive Lage im beliebten Stadtteil Bürgeresch in Oldenburg. Auf einem 505 m² großen Grundstück bietet das Haus eine Gesamtwohn- und Nutzfläche von ca. 490 m² und eignet sich ideal als Mehrgenerationenhaus oder zur Kombination von Wohnen und Arbeiten.
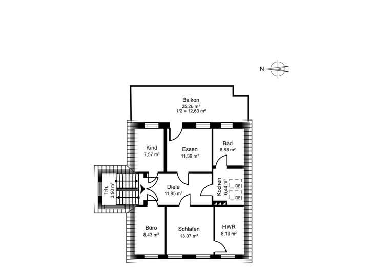
Die Immobilie ist in drei Wohneinheiten aufgeteilt: Das Souterrain (ca. 60 m²) verfügt über zwei Zimmer, Küche, Bad und Flur. Im Hochparterre (ca. 90 m²) befinden sich vier Zimmer, eine Küche mit Abstellraum, Bad und Flur sowie eine großzügige Dachterrasse. Das Obergeschoss (ca. 80 m²) bietet vier Zimmer, Küche, Bad, Flur, Abstellraum und einen ca. 24 m² großen Balkon.
Das Souterrain und das Obergeschoss werden beide bis Ende Februar geräumt, während das Hochparterre bereits frei ist.
Zusätzlich stehen rund 247 m² Nutzfläche mit Lager, Werkstatt- und Geschäftsräumen zur Verfügung. Besonders hervorzuheben ist das großzügige Treppenhaus mit einer original erhaltenen Holztreppe, die dem Gebäude seinen historischen Charakter verleiht. Ebenso sind viele der alten Türen und Türzargen noch im Originalzustand und unterstreichen den authentischen Altbaucharme der Immobilie.
Zwei Gasheizungen versorgen die Wohnungen separat: Eine Gasheizung (2 Jahre alt) beheizt die Souterrain- und Obergeschosswohnung und ist mit Zwischenzählern ausgestattet. Eine weitere Gasheizung (12 Jahre alt) versorgt die Dachgeschosswohnung. Zudem verfügt das Haus über eine Klingelanlage mit Gegensprechanlage sowie einen elektrischen Türöffner. Außen bietet das Objekt Stellplätze, eine Einfahrt sowie einen Carport für Fahrräder.
Dieses historische Haus vereint Altbaucharme mit vielseitigen Nutzungsmöglichkeiten und stellt eine seltene Gelegenheit auf dem Oldenburger Immobilienmarkt dar.
Charmante Hundehütte im beliebten Oldenburger Bürgereschviertel
26123 Oldenburg (Oldenburg)
Die vollständige Adresse der Immobilie erhalten Sie vom Anbieter.
Auf Karte anzeigen
Die vollständige Adresse der Immobilie erhalten Sie vom Anbieter.
Finanzierungszertifikat
In nur zwei Minuten zu Ihrem persönlichen Finanzierungszertifkat.
Infos
| Haustyp | Einfamilienhaus |
|---|---|
| Wohnfläche ca. | 243 m2 |
| Nutzfläche | 247 m2 |
| Grundstücksfläche | 505 m2 |
| Zimmer | 10 |
| Garage/Stellplatz | Außenstellplatz |
| Anzahl Garage/Stellplatz | 2 |
Kosten
| Kaufpreis |
745.000 € |
|---|---|
| Provision |
3,57 % inkl. MwSt. |
Finanzierungsrechner:
Kaufpreis:
600.000 €
Eigenkapital:
600.000 €
Monatliche Rate
0 €
Effektiver Jahreszins
0 %
Sollzinsbindung
10 Jahre
Bausubstanz & Energieausweis
| Baujahr | 1895 |
|---|---|
| Objektzustand | Gepflegt |
| Heizungsart | Gas-Heizung |
| Wesentliche Energieträger | Gas |
| Energieausweis | laut Gesetz nicht erforderlich |
Beschreibung des Objekts
Ausstattung
Ein Energieausweis ist nicht erforderlich, da das Gebäude unter Denkmalschutz steht.
Lage
Die liebevoll erhaltene Oldenburger Hundehütte befindet sich im beliebten Bürgereschviertel, einem der traditionsreichsten und charaktervollsten Stadtteile Oldenburgs. Das Viertel ist geprägt von charmanten Altbauten, begrünten Straßen und einer lebendigen, zugleich ruhigen Nachbarschaft. Hier verbindet sich historisches Flair mit urbaner Lebensqualität, wodurch eine ganz besondere Wohnatmosphäre entsteht.
Das Bürgereschviertel überzeugt durch seine zentrale und dennoch ruhige Lage. Die Oldenburger Innenstadt ist in wenigen Minuten erreichbar, egal ob zu Fuß, mit dem Fahrrad oder den öffentlichen Verkehrsmitteln. Mehrere Buslinien sorgen für eine gute Anbindung an den Hauptbahnhof und andere Stadtteile. Auch die Autobahnen A28 und A29 liegen in kurzer Entfernung und bieten eine ideale Verbindung in die Region.
In der näheren Umgebung finden sich zahlreiche Einkaufsmöglichkeiten für den täglichen Bedarf. Supermärkte, Bäckereien und kleine Fachgeschäfte liegen ebenso in Reichweite wie gemütliche Cafés und Restaurants. Schulen, Kindergärten und medizinische Einrichtungen tragen zusätzlich zu einer hohen Lebensqualität bei.
Grünflächen und kleine Parks in der Umgebung laden zu Spaziergängen und Momenten der Erholung ein. Das Viertel bietet damit eine angenehme Mischung aus städtischem Leben und naturnaher Ruhe. Die Kombination aus gewachsenem Umfeld, guter Erreichbarkeit und dem besonderen Charme des Bürgereschviertels macht diese Lage zu einer der begehrtesten Wohnadressen in Oldenburg.
Sonstige Angaben
Bitte haben Sie Verständnis, dass wir nur Anfragen mit vollständig angegebenem Namen, Adresse und Telefonnummer bearbeiten können.
Sämtliche Fotos, Texte und grafische Darstellungen (Grundrisse) sind Eigentum von der Firma KAVEH Immobilien und dürfen nicht von Dritten verwendet oder weitergegeben werden.
Es gelten unsere Allgemeinen Geschäftsbedingungen.
Alle Angaben sind ohne Gewähr und basieren ausschließlich auf Informationen, die uns von unserem Auftraggeber zur Verfügung gestellt wurden. Wir übernehmen keine Gewähr für die Vollständigkeit, Richtigkeit und Aktualität dieser Angaben.
Adresse
26123 Oldenburg (Oldenburg)
Interessante Orte
Preis- und Lageinformationen
Preistrend für Bestandsimmobilien in Bürgeresch