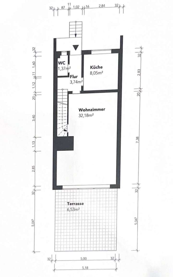
Dieses gepflegte und lichtdurchflutete Reihenendhaus aus dem Baujahr 1975 befindet sich in begehrter Lage von Bremen-Oberneuland. Mit einer Wohnfläche von ca. 90 m² und einer zusätzlichen Nutzfläche von ca. 51 m² bietet das Haus ein durchdachtes und vielseitiges Raumkonzept auf insgesamt drei Ebenen.
Das Haus verfügt über insgesamt vier Zimmer, darunter drei Schlafzimmer und ein gemütliches Wohnzimmer mit Kamin. Vom Wohnzimmer aus führt eine Treppe in den kleinen Kellerbereich. Der ausgebaute Spitzboden bietet Ihnen einen zusätzlichen, vielseitig nutzbaren Raum, der dank großer Fenster, integrierter Heizung und Vinylboden besonders hell und einladend ist. Die übrigen Räume im Haus sind mit pflegeleichten Fliesen ausgestattet.
Im Jahr 2023 wurde das Haus umfassend teilsaniert und modernisiert. Erneuert wurden sämtliche Fenster ( außer im Dachboden ), die Innentüren, die Eingangstüren sowohl des Haupthauses als auch des umgebauten Nebenbereichs, die Einbauküche sowie beide Badezimmer. Zusätzlich wurde die Elektrik vollständig erneuert (dreiadrig). Die Dachflächenfenster im Obergeschoss sind von VELUX und sorgen für ein besonders helles, freundliches Wohnambiente. Im gesamten Haus sind moderne LED-Leuchten installiert, die für eine gleichmäßige und energieeffiziente Beleuchtung sorgen.
Das Haus wird derzeit über eine moderne Elektroheizung beheizt. Alternativ besteht die Möglichkeit, die vorhandene Ölheizungsanlage im Keller wieder in Betrieb zu nehmen – alle Anschlüsse und Komponenten hierfür sind vorhanden. Somit kann flexibel zwischen beiden Heizsystemen gewählt werden.
Die ehemals als Garage genutzte Fläche wurde zu einem komfortablen, beheizten Nebenbereich mit einer Größe von ca. 25 m² umgebaut. Dieser Bereich umfasst zwei geräumige Räume und ein modernes WC mit Dusche. Zudem sind auch Anschlüsse für eine kleine Küchennische vorhanden. Durch die eigene Eingangstür und die vollständige Ausstattung eignet sich dieser Teil des Hauses ideal als Gästewohnung, Büro oder Studio.
Das ca. 325 m² große Grundstück bietet eine sonnige Südterrasse und einen pflegeleicht angelegten Gartenbereich. Zwei bis drei Stellplätze befinden sich direkt am Haus.
Das Objekt überzeugt durch seine helle und freundliche Atmosphäre.
Es besticht durch die moderne Ausstattung und die flexiblen Nutzungsmöglichkeiten.
Zusätzlich bietet es viel Potenzial für individuelle Wohnideen.
Bremen-Oberneuland - Modernisiertes Reihenendhaus mit Zusatzbereichen - Ohne Provision
28355 Bremen
Die vollständige Adresse der Immobilie erhalten Sie vom Anbieter.
Auf Karte anzeigen
Die vollständige Adresse der Immobilie erhalten Sie vom Anbieter.
Finanzierungszertifikat
In nur zwei Minuten zu Ihrem persönlichen Finanzierungszertifkat.
Infos
| Haustyp | Sonstige |
|---|---|
| Etagenzahl | 2 |
| Wohnfläche ca. | 90 m2 |
| Nutzfläche | 51,53 m2 |
| Grundstücksfläche | 325 m2 |
| Zimmer | 4 |
| Schlafzimmer | 3 |
| Badezimmer | 2 |
| Anzahl Garage/Stellplatz | 2 |
Kosten
| Kaufpreis |
419.000 € |
|---|---|
| Provision | Nein |
Finanzierungsrechner:
Kaufpreis:
600.000 €
Eigenkapital:
600.000 €
Monatliche Rate
0 €
Effektiver Jahreszins
0 %
Sollzinsbindung
10 Jahre
Bausubstanz & Energieausweis
| Baujahr | 1975 |
|---|---|
| Letzte Sanierung | 2023 |
| Objektzustand | Erstbezug nach Sanierung |
| Qualität der Austattung | Normal |
| Heizungsart | Elektro-Heizung |
| Wesentliche Energieträger | Strom |
| Energieausweis | liegt vor |
| Energieausweistyp | Verbrauchsausweis |
| Energieverbrauchskennwert | 77,9 kWh/(m²*a) |
| Energieeffizienzklasse | C |
77,9
kWh/(m²*a)
Energieeffizienzklasse C
- A+
- A
- B
- C
- D
- E
- F
- G
- H
- 0
- 25
- 50
- 75
- 100
- 125
- 150
- 175
- 200
- 225
- >250
Beschreibung des Objekts
Ausstattung
- Baujahr 1975
- ca. 90 m² Wohnfläche
- ca. 51 m² Nutzfläche
- ca. 325 m² Grundstücksfläche
- 3 Ebene (Erdgeschoss, Obergeschoss und ausgebauter Spitzboden)
- 4 Zimmer gesamt
- Wohnzimmer mit Kamin
- Zusätzlicher Raum dank ausgebautem Spitzboden
- Gäste-WC mit Fenster
- Duschbad mit Fenster
- Umgebaute Garage als Nutzbereich
Modernisierungen und Sanierungen (2023)
- Erneuerung sämtlicher Fenster ( außer im Dachboden )
- Neue VELUX-Dachflächenfenster im Obergeschoss
- Neue Hauseingangstür und separate Eingangstür im Nebenbereich
- Erneuerte Innentüren
- Neue, moderne Einbauküche
- Beide Badezimmer vollständig saniert
- Elektrik komplett erneuert (dreiadrig)
- integrierte LED-Leuchten im gesamten Haus
Heizung & Energie
- Aktuell Elektroheizung
- Alternative Ölheizungsanlage im Keller vorhanden (anschlussbereit)
- Flexible Wahl zwischen Elektro- und Ölheizung
Böden & Materialien
- Fliesen in allen Wohnbereichen
- Vinylboden im ausgebauten Spitzboden
Nebenbereich (ehemalige Garage)
- Umbau zu beheiztem Nutzbereich mit zwei Zimmern und WC mit Dusche
- Anschlussmöglichkeit für eine kleine Küchennische
- Eigener Eingang
Außenbereich
- Sonnige Terrasse mit Südausrichtung
- Schuppen im Garten
- Zwei bis drei Pkw-Stellplätze direkt am Haus
Lage
Diese Immobilie befindet sich in einer ausgezeichneten Lage in Bremen-Oberneuland. Ideal für alle, die Wert auf eine optimale Anbindung und eine lebendige Umgebung legen. Die Bushaltestelle befindet sich in unmittelbarer Nähe, sodass Sie bequem mit öffentlichen Verkehrsmitteln fahren können. Dies bietet eine super Anbindung sowohl zur Universität als auch zur Autobahn, was Pendler und Studenten gleichermaßen zu schätzen wissen.
In unmittelbarer Nähe finden Sie zudem mehrere Schulen, was diese Lage besonders attraktiv für Familien macht. Darüber hinaus sind die Einkaufsmöglichkeiten nur einen kurzen Spaziergang entfernt. Genießen Sie die Vorteile dieser hervorragenden Lage.
Sonstige Angaben
Alle Angaben sind ohne Gewähr und basieren ausschließlich auf Informationen, die uns vom Auftraggeber bzw. Dritten zur Verfügung gestellt wurden. Trotz sorgfältiger Prüfung können wir keine Gewähr für die Richtigkeit, Vollständigkeit und Aktualität übernehmen. Irrtum, Änderungen sowie Zwischenverkauf bleiben ausdrücklich vorbehalten.
Als Immobilienmakler sind wir nach § 2 Abs. 1 Nr. 14 und § 10 GwG verpflichtet, vor Begründung einer Geschäftsbeziehung die Identität des Vertragspartners festzustellen.
Grundriss
Grundriss EG
>
>
Grundriss OG
>
>
Grundriss Spitzboden
>
>
Grundriss Keller & umgebaute G
>
>
Adresse
28355 Bremen
Interessante Orte
Preis- und Lageinformationen
Preistrend für Bestandsimmobilien in Oberneuland