Moderne Neubau-Doppelhaushälfte in ruhiger Lage – Erstbezug!
Diese neugebaute Doppelhaushälfte im Ortsteil Mitterlern (Berglern) bietet ca. 155 m² Wohnfläche, ein durchdachtes Raumkonzept und hohen Wohnkomfort – ideal für Familien oder Paare mit Platzbedarf.
Lage & Zugang
Das Haus liegt in einer ruhigen Wohnsiedlung. Der Eingang auf der Ostseite führt in einen hellen, großzügigen Flur mit Platz für eine Garderobe. Ein Gäste-WC ist direkt angrenzend.
Erdgeschoss
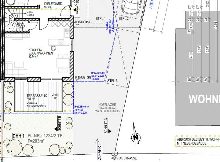
Der offene Wohn- und Essbereich mit großen Fenstern und Terrassentür ist das Herz des Hauses. Von hier gelangen Sie auf die sonnige Südterrasse und in den Garten.
Die Küche fügt sich harmonisch ins Gesamtbild ein und bietet Ihnen die Freiheit, diese individuell zu gestalten und selbst anzuschaffen.
Im Erdgeschoss befinden sich außerdem ein Hauswirtschaftsraum mit Waschmaschinenanschluss und Ausgussbecken sowie ein praktischer Abstellraum unter der Treppe.
Obergeschoss
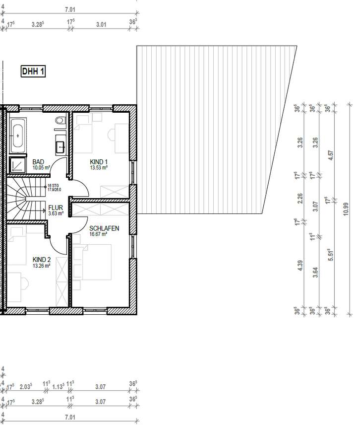
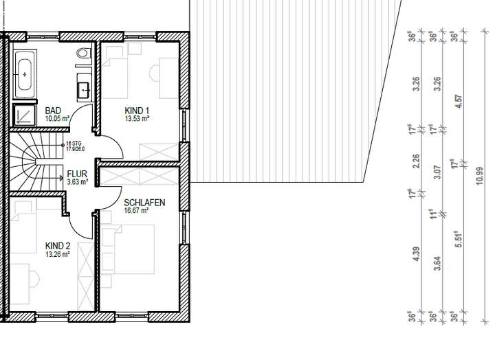
Hier finden Sie ein großes Schlafzimmer und zwei weitere Zimmer – ideal für Kinder, Gäste oder Homeoffice. Das Bad ist mit einer Badewanne, Dusche, WC, Waschbecken und einem Fenster ausgestattet.
Dachgeschoss
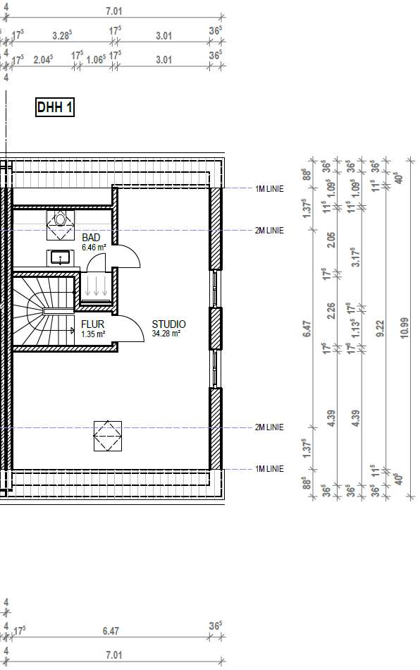
Ein geräumiges Studio bietet viele Nutzungsmöglichkeiten, z. B. als Hobbyraum oder Gästezimmer. Zusätzlich gibt es hier ein zweites Bad mit Dusche.
Außenbereich & Stellplätze
Zur Immobilie gehören ein Carport für zwei Autos, ein weiterer Stellplatz und ein praktischer Abstellraum hinter dem Carport. Eine kleine Grünfläche im Norden bietet zusätzlichen Gestaltungsspielraum.
Fazit
Hochwertige Ausstattung, viel Platz und eine ruhige Lage machen dieses Haus zu einem idealen neuen Zuhause.
Traumhafte Doppelhaushälfte in Berglern – Neubau mit Garten & Carport
85459 Berglern
Die vollständige Adresse der Immobilie erhalten Sie vom Anbieter.
Auf Karte anzeigen
Die vollständige Adresse der Immobilie erhalten Sie vom Anbieter.
Infos
| Haustyp | Doppelhaushaelfte |
|---|---|
| Etagenzahl | 3 |
| Wohnfläche ca. | 155 m2 |
| Grundstücksfläche | 290 m2 |
| Bezugsfrei ab | 01.12.2025 |
| Zimmer | 5 |
| Schlafzimmer | 3 |
| Badezimmer | 2 |
| Haustiere | Nein |
| Garage/Stellplatz | Carport |
| Anzahl Garage/Stellplatz | 1 |
Kosten
| Kaltmiete |
2.060 € |
|---|---|
| Nebenkosten | keine Angabe |
| Heizkosten | keine Angabe |
| Gesamtmiete | 2.350 € (zzgl. Nebenkosten) |
| Miete für Garage/Stellplatz | 150 € |
| Kaution o. Genossenschaftsanteile | 3 MM |
Weiter mieten oder doch kaufen?
Wer in Miete wohnt, überweist dem Vermieter im Laufe der Jahre hohe Summen, die sich
auch in die eigenen vier Wände investieren lassen könnten.
Bausubstanz & Energieausweis
| Baujahr | 2025 |
|---|---|
| Objektzustand | Erstbezug |
| Qualität der Austattung | Gehoben |
Beschreibung des Objekts
Ausstattung
Diese Immobilie überzeugt durch eine zeitgemäße und energieeffiziente Ausstattung
- Nachhaltige Luftwärmepumpe für effizientes Heizen
- Fußbodenheizung in allen Wohnräumen für ein angenehmes Raumklima
- Lüftungssystem für eine kontinuierliche Frischluftzufuhr
- Hochwertige 3-fach verglaste Fenster für optimalen Wärme- und Schallschutz
- Elektrisch bedienbare Jalousien
- Carport mit zwei Stellplätzen sowie ein zusätzlicher Außenstellplatz
Darüber hinaus bietet das Haus:
- Eine innenliegende Stahlbetontreppe mit moderner Optik und hoher Stabilität
- Einen Kellerersatzraum im Außenbereich, ideal für zusätzlichen Stauraum
Lage
Die Doppelhaushälfte befindet sich im Ortsteil Mitterlern der Gemeinde Berglern im oberbayerischen Landkreis Erding.
Berglern liegt etwa 9 km südwestlich von Erding und rund 12 km nordöstlich des Münchner Flughafens, eingebettet in die Region München im Erdinger Moos.
In der Anliegerstraße befinden sich überwiegend freistehenden Einfamilienhäusern. In der Umgebung befinden sich weitere Wohnhäuser sowie ein paar kleinere Gewerbebetriebe.
Die Nähe zum Flughafen München sowie die Anbindung an die Städte Erding und Moosburg machen die Lage verkehrstechnisch günstig.
Berglern überzeugt durch seine ideale Lage mit einer schnellen und unkomplizierten Erreichbarkeit des Flughafens, sodass Sie ohne Umwege und in kürzester Zeit Ihr Reiseziel oder Arbeitsplatz erreichen.
Die Lage in Berglern bietet eine ruhige Wohnumgebung mit guter Anbindung an wichtige Verkehrswege wie die Autobahnen A92 und A94. Einkaufsmöglichkeiten sind sowohl direkt im Ort als auch in den benachbarten Städten Wartenberg, Erding und Moosburg reichlich vorhanden. Die Region zeichnet sich durch eine gute Versorgung für den täglichen Bedarf und eine schnelle Erreichbarkeit weiterer Einkaufsmöglichkeiten aus. Insgesamt ist Berglern eine gut erreichbare und komfortable Lage für Wohn- und Alltagsbedürfnisse.
Sonstige Angaben
Der Bezug der Doppelhaushälfte ist nach Vereinbarung voraussichtlich ab November 2025 möglich.
Das Objekt wird ohne Küche übergeben, sodass Sie Ihre individuellen Vorstellungen frei umsetzen können.
Grundriss
Grundriss Erdgeschoss
>
>
Grundriss Obergeschoss
>
>
Grundriss Dachgeschoss
>
>
Adresse
85459 Berglern
Interessante Orte
Preis- und Lageinformationen
Preistrend für Bestandsimmobilien in Berglern