Modernes Doppelhaus mit viel Licht & Platz – ruhig gelegen mit Tiefgarage
Diese exklusive Immobilie verbindet modernen Wohnkomfort mit naturnaher Lage und hervorragender Infrastruktur – perfekt für alle, die urbanes Leben mit Ruhe und Stil vereinen möchten. Das im Jahr 2009 errichtete Haus besticht durch seine zeitgemäße Architektur, eine großzügige Raumaufteilung und hochwertige Ausstattungsdetails.
Auf vier Ebenen – vom Gartengeschoss bis hin zum Dachgeschoss – entfaltet sich eine durchdachte Wohnfläche, die selbst höchsten Ansprüchen an Design und Lebensqualität gerecht wird.
Klare, zeitlose Architektursprache: Doppelhaus mit Einliegerwohnung und großzügigen Außenflächen
60431 Frankfurt am Main
Die vollständige Adresse der Immobilie erhalten Sie vom Anbieter.
Auf Karte anzeigen
Die vollständige Adresse der Immobilie erhalten Sie vom Anbieter.
Finanzierungszertifikat
In nur zwei Minuten zu Ihrem persönlichen Finanzierungszertifkat.
Infos
| Haustyp | Doppelhaushaelfte |
|---|---|
| Etagenzahl | 4 |
| Wohnfläche ca. | 236 m2 |
| Grundstücksfläche | 359 m2 |
| Bezugsfrei ab | nach Vereinbarung |
| Zimmer | 6 |
| Schlafzimmer | 4 |
| Badezimmer | 3 |
| Garage/Stellplatz | Tiefgarage |
| Anzahl Garage/Stellplatz | 6 |
Kosten
| Kaufpreis |
2.040.000 € |
|---|---|
| Provision |
3,57 % inkl. der gesetzlichen MwSt. bezogen auf den Kaufpreis |
Finanzierungsrechner:
Kaufpreis:
600.000 €
Eigenkapital:
600.000 €
Monatliche Rate
0 €
Effektiver Jahreszins
0 %
Sollzinsbindung
10 Jahre
Bausubstanz & Energieausweis
| Baujahr | 2009 |
|---|---|
| Objektzustand | Modernisiert |
| Qualität der Austattung | Gehoben |
| Heizungsart | Fußbodenheizung |
| Wesentliche Energieträger | Pelletheizung |
Beschreibung des Objekts
Ausstattung
_ Baujahr 2009
_ das Doppelhaus ist als Passivhaus konzipiert und verfügt über eine Lüftungsanlage sowie Solartechnik
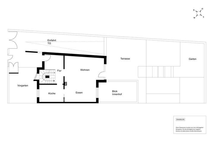
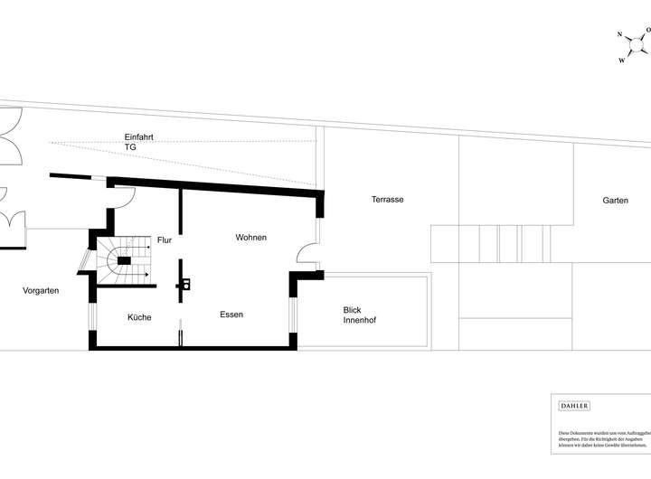
_ Wohnfläche auf vier Ebenen: Gartengeschoss, Erdgeschoss, 1. Obergeschoss und Dachgeschoss
_ großzügiger Wohn-/Essbereich mit offenem Küchenkonzept
_ Parkettboden in allen Räumen
_ Fußbodenheizung
_ Wärmepumpe von 2024
_ bodentiefe Fenster und raumhohe Türen für ein lichtdurchflutetes Wohnambiente
_ Kaminofen für gemütliche Stunden
_ modernes Bussystem zur Haussteuerung
_ zentrale Staubsaugeranlage
_ Einbauten in Form von Einbauschränken
_ Deckenaufbauleuchten
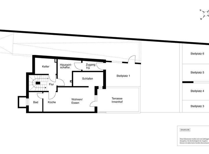
_ Einliegerwohnung mit separatem Eingang, eigener Einbauküche, Bad, Wohn-/ und Schlafzimmer sowie Terrasse
_ insgesamt vier Schlafzimmer
_ drei stilvoll ausgestattete Bäder sowie ein separates Gäste-WC
_ großzügige Terrassenflächen, gepflegter Garten sowie eine Dachterrasse
_ sechs Tiefgaragen-Stellplätze mit direktem Zugang zum Haus
_ Hauswirtschaftsraum und weitere Nebenflächen bieten zusätzlichen Stauraum
Lage
_ Moderne Neubauten und Villen aus der Gründerzeit prägen den Stadtteil Dornbusch
_ Um die letzte Jahrhundertwende bestand der Dornbusch fast vollständig aus Dornbüschen
_ Daher auch der eigentliche Name des Stadtviertels
_ Viele Einkaufsmöglichkeiten sowie Schulen und Kindergärten in unmittelbarer Nähe
_ Der Sinaipark, als begehrte Oase des Stadtteils
_ Über zahlreiche U-Bahn-Linien, wie der U1,U2,U3,U5 und U8 sowie zahlreicher Buslinien, ist das Viertel perfekt an die Innenstadt angebunden
_ Wenige Fahrminuten zur Innenstadt und der nahe gelegenen A66, A661gelangt man in nur wenigen Minuten zu den Autobahmen A3 und A5
_ Der Frankfurter Flughafen ist mit dem PKW in nur 20 Minuten bequem erreichbar
Sonstige Angaben
Modernes Doppelhaus mit viel Licht & Platz – ruhig gelegen mit Tiefgarage
Diese exklusive Immobilie verbindet modernen Wohnkomfort mit naturnaher Lage und hervorragender Infrastruktur – perfekt für alle, die urbanes Leben mit Ruhe und Stil vereinen möchten. Das im Jahr 2009 errichtete Haus besticht durch seine zeitgemäße Architektur, eine großzügige Raumaufteilung und hochwertige Ausstattungsdetails.
Grundriss
Erdgeschoss
>
>
Grundriss 1. OG
>
>
Dachgeschoss
>
>
Untergeschoss
>
>
Adresse
60431 Frankfurt am Main
Interessante Orte
Preis- und Lageinformationen
Preistrend für Bestandsimmobilien in Dornbusch