Sorglos bauen - Der Büdenbender-Mehrwert für Ihre Doppelhaushälfte
Das Doppelhaus wird von einem professionellen Architekten geplant. Dabei ist der Entwurf kostenlos und unverbindlich. Wir sprechen über Ihre Vorstellungen vom Haus und auf dieser Basis zeichnet unser Architekt dann einen Entwurf.
Sie entspannen - wir koordinieren den kompletten Bauprozess. Ihr Bauleiter ist als fester Ansprechpartner für Sie da. Fachleute unterstützen Sie bei Anträgen und Behördengängen.
Ihr Haus wird im eigenen Werk vorgefertigt - Made in Germany.
Sie bauen nachhaltig mit zertifiziertem Holz und gesundheitlich unbedenklichen Materialien.
Das Wandkonzept atmo-tec sorgt für ein angenehmes Raumklima und niedrige Energiekosten. Hochwertige Ausstattung (Sanitärobjekte, Türen, Fenster und Bodenbeläge namhafter Hersteller). Moderne Heizsysteme von Viessmann.
Bauerfahrung seit 1946. 22 Monate Festpreisgarantie. Sehr gute Brand- u. Schallschutzwerte. 50 Jahre Garantie auf die Grundkonstruktion. Zum wiederholten Male Bonitätszertifikat CrefoZert erhalten. Sehr faire Zahlungsbedingungen.
Gerne berät Sie unser Fachberater in einem persönlichen Gespräch und zeigt Ihnen den Weg in Ihr neues Zuhause.
Projektiertes Traumhaftes Grundstück in Altomünster mit S-Bahn Anbindung nach München
85250 Altomünster
Die vollständige Adresse der Immobilie erhalten Sie vom Anbieter.
Auf Karte anzeigen
Die vollständige Adresse der Immobilie erhalten Sie vom Anbieter.
Finanzierungszertifikat
In nur zwei Minuten zu Ihrem persönlichen Finanzierungszertifkat.
Infos
| Vermarktungsart | Kaufen |
|---|---|
| Grundstücksfläche | 404 m2 |
| Erschließung | Erschlossen |
| Bebaubar nach | Bebauungsplan |
| Verfügbar ab | 30.11.2025 |
Kosten
| Miete pro Jahr |
889.000 € |
|---|---|
| Provision | Nein |
Finanzierungsrechner:
Kaufpreis:
600.000 €
Eigenkapital:
600.000 €
Monatliche Rate
0 €
Effektiver Jahreszins
0 %
Sollzinsbindung
10 Jahre
Beschreibung des Objekts
Lage
Verkauft wird hier ein Grundstück in Altomünster projektiert mit einem Büdenbender Haus.
In der wunderschönen Region um Altomünster, die ihren Namen vom Gründer des Ortes, dem heiligen Alto, und vom lateinischen Wort monasterium für Kloster ableitet, finden Sie dieses Grundstück in nur 1,2 km nördlich vom Stadtzentrum entfernt. Diese Lage bietet die perfekte Balance zwischen Ruhe und urbaner Nähe, ideal für Familien, die Wert auf Bildung und Freizeitmöglichkeiten legen.
Für die Kinder gibt es eine Grund- und Mittelschule sowie zwei Kindergärten, die in wenigen Gehminuten erreichbar sind.
Die Verkehrsanbindung ist hervorragend, für Pendler ist die S-Bahn nach München (Zugstation Altomünster) nur 600 m entfernt. Eine Bushaltestelle gibt es direkt an der Schule, die fußläufig erreichbar ist. Für längere Strecken ist die Autobahnauffahrt Adelzhausener Berg an der A 8 in ca. 15 Minuten mit dem Auto erreichbar.
Der Flughafen München ist mit dem Auto in ca. 40 Minuten erreichbar.
Für den täglichen Bedarf stehen Ihnen mehrere Supermärkte wie Lidl, PENNY und Edeka sowie eine Bäckerei und ein Baumarkt in wenigen Gehminuten Entfernung zur Verfügung. Wenn es um die Gesundheit geht, profitieren Sie von einer Allgemeinmedizin und einer Apotheke in unmittelbarer Nähe.
Die Freizeitgestaltung wird groß geschrieben. Ein Museum, das fußläufig erreichbar ist, bietet kulturelle Abwechslung. Sportbegeisterte finden ihre Herausforderung in verschiedenen Vereinen, die mit dem Fahrrad leicht erreichbar sind.
Da das Grundstück überwiegend eben ist, entscheiden Sie, ob Sie einen Keller wollen oder auf einer Bodenplatte bauen möchten.
Das Grundstück kann nur in Verbindung mit dem Bau eines Büdenbender Hauses erworben werden. Sie kaufen das Grundstück direkt vom Eigentümer, ohne Maklergebühr.
Sonstige Angaben
Ein Haus baut man normalerweise nur einmal im Leben. Deshalb ist es besoners wichtig, alles perfekt zu machen. Unser Ziel ist es, nicht einfach nur Häuser bauen, sondern Häuser für Menschen, die Ihren eigenen Stil ausdrucken möchten und großen Wert auf Nachhaltigkeit, Qualität und Funktionalität legen. Wir denken nicht nur ans Bauen, sondern auch ans Wohnen. Denn ein Zuhause soll ein Ort sein, an dem man sich rundum wohl fühlt.
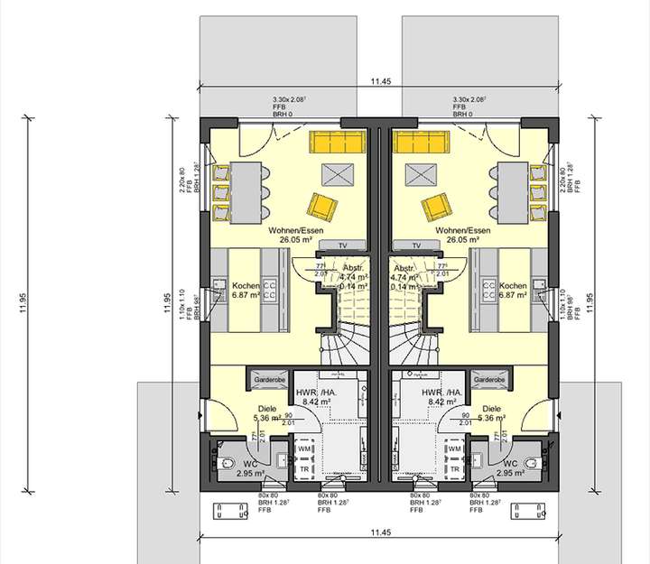
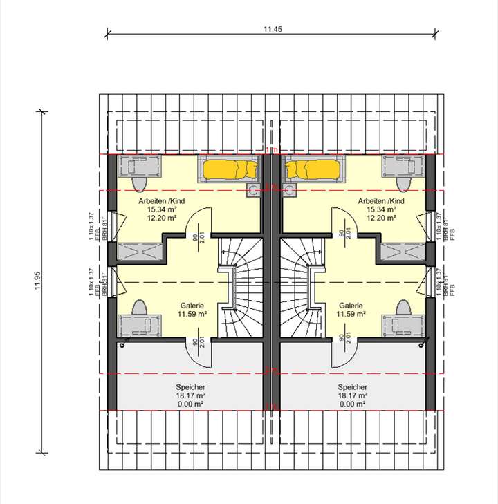
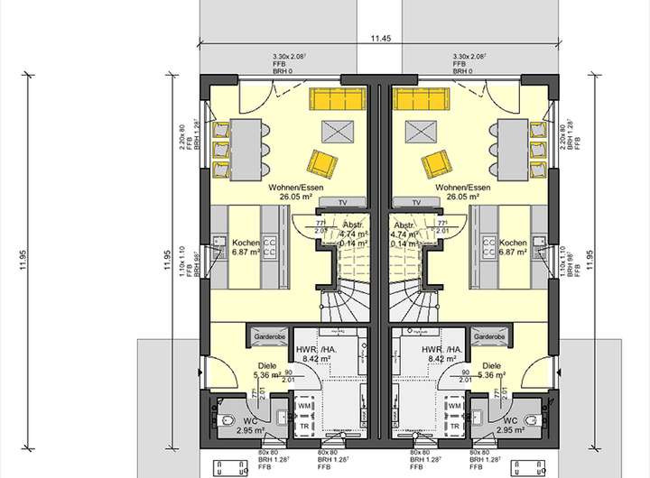
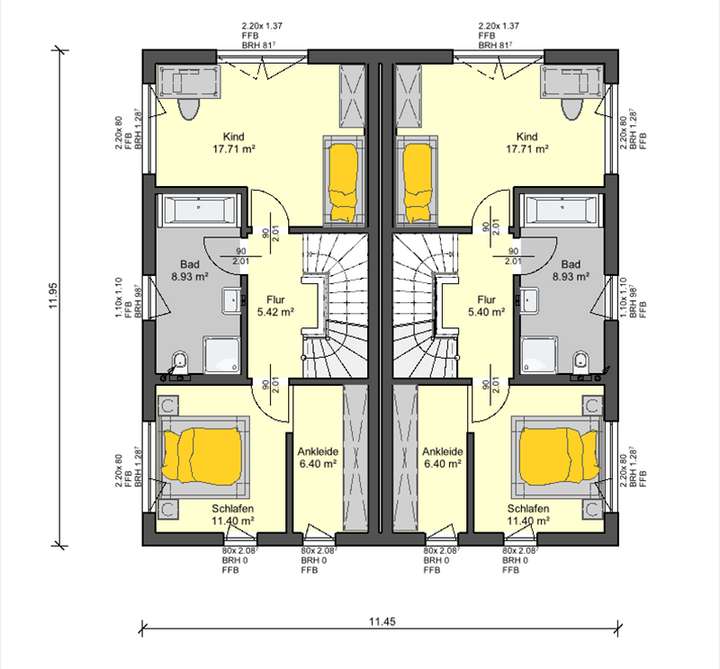
Grundriss
Grundriss Gemello-SD-147 EG
>
>
Grundriss Gemello-SD-147 OG
>
>
Grundriss Gemello-SD-147 DG
>
>