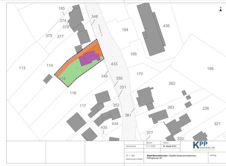
Das Grundstück liegt an der Hilfringhauser Straße in Wermelskirchen, in einem ruhigen und gewachsenen Wohngebiet.
Die Umgebung ist überwiegend durch Ein- und Zweifamilienhäuser geprägt.
Das Grundstück ist unbebaut und kann gemäß § 34 Baugesetzbuch (BauGB) bebaut werden.
Die Zufahrt ist gesichert, Versorgungsleitungen befinden sich in der angrenzenden Straße.
Wunderschönes und voll erschlossenes Baugrundstück für Ein- oder Zweifamilienhaus
42929 Wermelskirchen
Die vollständige Adresse der Immobilie erhalten Sie vom Anbieter.
Auf Karte anzeigen
Die vollständige Adresse der Immobilie erhalten Sie vom Anbieter.
Finanzierungszertifikat
In nur zwei Minuten zu Ihrem persönlichen Finanzierungszertifkat.
Infos
| Vermarktungsart | Kaufen |
|---|---|
| Grundstücksfläche | 664 m2 |
| Erschließung | Erschlossen |
| Empfohlene Nutzung | Einfamilienhaus |
| Grundflächenzahl (GRZ) | 0.4 |
| Geschossflächenzahl (GFZ) | 0.8 |
| Bebaubar nach | wie Nachbarbebauung |
| Verfügbar ab | sofort |
Kosten
| Miete pro Jahr |
174.000 € |
|---|---|
| Provision | Nein |
Finanzierungsrechner:
Kaufpreis:
600.000 €
Eigenkapital:
600.000 €
Monatliche Rate
0 €
Effektiver Jahreszins
0 %
Sollzinsbindung
10 Jahre
Beschreibung des Objekts
Lage
Die Hilfringhauser Straße befindet sich im südlichen Stadtgebiet von Wermelskirchen.
Einkaufsmöglichkeiten, Schulen und Kindergärten sind in wenigen Minuten erreichbar.
Die Anbindung an die A1 ist günstig, sodass Köln, Leverkusen und Remscheid schnell erreichbar sind.
Das Wohnumfeld ist ruhig und von viel Grün umgeben.
Sonstige Angaben
Die Bebauung erfolgt im Rahmen der Vorgaben des § 34 BauGB (Nachbarschaftsbebauung).
Weitere Informationen zum Bauvorhaben und zum vorliegenden Baubescheid können bei Interesse bereitgestellt werden.
Grundriss
1
>
>