Parkähnliches 2.845 m² großes Abrissgrundstück in gewachsener gehobener Wohnlage keine 500 Meter vom Kanal entfernt.
Der Bestand:
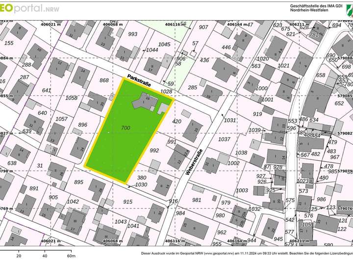
Im Bereich der Parkstraße befindet sich auf einem ca. 600 m² großen Teil des Gesamtgrundstückes ein stark sanierungsbedürftiges bzw. abgängiges Einfamilienhaus aus 1977 mit ca. 177 m² Wohnfläche (bei ca. 466 m² BGF), nebst Garage. Das Haus ist traufständig zur Parkstraße angeordnet, in der Tiefe des Grundstückes findet sich ein parkartiger Garten auf ca. 2.245 m² mit weiterer möglicher Erschließung über die Weberstraße.
Baurecht:
Das Grundstück kann gemäß § 34 BauGB im Rahmen des sog. Einfügungsgebotes neu beplant werden, hierbei richtet sich Art und Maß der neuen Bebauung nach der Umgebung und hat sich einzufügen, dies ist in aller Regel flexibler in der Gestaltung als ein starrer Bebauungsplan mit dezidierten Festsetzungen.
In einer ersten Konzeptionierung ist auf diesem sehr großen Grundstück mit zwei Erschließungswegen (Parkstraße und Weberstraße) eine Mehrhausanlage planerisch ansprechend darstellbar:
An der Parkstraße selber gelegen ein MFH mit 7 Wohneinheiten, nach konservativem Ansatz mit ca. 550 m² Wohnflächen.
In der Tiefe des Grundstückes, über die Weberstraße erschlossen, folgen vier Einfamilienhäuser (ggf. auch als 2-FMH) mit je ca. 147 m².
Abschließend zur Weberstraße läge ein kleineres MFH mit drei Wohneinheiten und insgesamt ca. 246 m² Wohnfläche.
Die Flächenermittlung erfolgt anhand der BGF mit 0.75-Ansatz für den Abzug der Verkehrsflächen, das Konzept ist noch nicht mit dem Bauamt besprochen, stellt aber im Rahmen der Einfügung in die Umgebung aus Sicht des Architekten ein argumentier- bzw. nachvollziehbares Verdichtungskonzept in Geschossigkeit und Planungsmischung aus (kleinen) Mehrparteilichkeiten und EFH / 2FMH dar, dies Bedarf aber der Abstimmung mit dem Bauamt bzw. einer erweiterten Bauvoranfrage.
Attraktives großzügiges Abrissgrundstück mit möglichem Neubaukonzept!
48477 Hörstel
Die vollständige Adresse der Immobilie erhalten Sie vom Anbieter.
Auf Karte anzeigen
Die vollständige Adresse der Immobilie erhalten Sie vom Anbieter.
Finanzierungszertifikat
In nur zwei Minuten zu Ihrem persönlichen Finanzierungszertifkat.
Infos
| Vermarktungsart | Kaufen |
|---|---|
| Grundstücksfläche | 2.845 m2 |
| Erschließung | Erschlossen |
| Empfohlene Nutzung | Doppelhaus, Einfamilienhaus, Mehrfamilienhaus |
| Grundflächenzahl (GRZ) | 0.62 |
| Geschossflächenzahl (GFZ) | 0.67 |
| Bebaubar nach | wie Nachbarbebauung |
| Verfügbar ab | sofort |
Kosten
| Miete pro Jahr |
0 € |
|---|---|
| Provision |
5,95 % inkl. 19% USt. Dieses Angebot ist provisionspflichtig. Durch die Inanspruchnahme unserer Maklertätigkeit kommt der Maklervertrag auf Basis dieses Objektexposees sowie unserer Geschäftsbedingungen mit uns zu Stande. Mit Abschluss des notariellen Kaufvertrages ist die Käufercourtage in Höhe von 5,95 % des Kaufpreises inkl. 19 % USt. verdient und fällig, zahlbar vom Käufer/Erwerber an die Müller & Fabritius Immobilien GmbH |
Finanzierungsrechner:
Kaufpreis:
600.000 €
Eigenkapital:
600.000 €
Monatliche Rate
0 €
Effektiver Jahreszins
0 %
Sollzinsbindung
10 Jahre
Beschreibung des Objekts
Lage
Riesenbeck - landschaftlich sehr reizvoll am Südhang des Teutoburger Waldes gelegen, grenzt Riesenbeck im Süden an das flachere Münsterland an. In der Nähe des Ortes, am umgangssprachlich "Nassen Dreieck", treffen der Dortmund-Ems-Kanal und der Mittellandkanal zusammen. Im nördlich von Riesenbeck gelegenen Teutoburger Wald befinden sich der Bergeshöveder Berg, Riesenbecker Berg, Lagerberg und der Birgter Berg.
Ortsteile von Riesenbeck sind Riesenbeck-Dorf, Birgte, Lage und Bergeshövede
Das Grundstück befindet sich in der Parkstraße in gewachsener ruhiger Wohnlage in gehobenem Umfeld zentral in Riesenbeck.
Die Umgebung ist geprägt von Einfamilienhäusern und kleinen Mehrfamilienhäusern. In unmittelbarer Nähe befinden sich diverse Supermärkte, mehrere Kitas und eine Grundschule. Auch der Wald und der Kanal als Naherholungsmöglichkeit sind schnell zu erreichen und bieten vielfältige Freizeitmöglichkeiten.
Die nächste größere Stadt Ibbenbüren ist ca. 9 Km entfernt und bietet eine gute Infrastruktur mit Einkaufsmöglichkeiten, allen Arten von weiterführenden Schulen und Freizeitangeboten. Auch die Städte Rheine (17 Km), Osnabrück (ca. 30 Km) und Münster (ca. 40 Km) sind schnell zu erreichen.
Die Autobahn A30 ist nur ca. 5 km entfernt, somit ist eine gute Anbindung an das überregionale Straßennetz gegeben.
Sonstige Angaben
Das gezeigte Konzept ist als Vorschlag zu verstehen und ist mit dem Bauamt vorbesprochen und für gut befunden worden, es Bedarf aber natürlich noch einer erweiterten Bauvoranfrage.
Grundriss
Riesenbeck in NRW
>
>
0229 Lage-1
>
>
0229 Lage groß-1
>
>
0229 Parkstr-16 Konzept 21-2
>
>