Zum Verkauf steht ein attraktives Grundstück in ruhiger, gewachsener Wohnlage.
In Kombination wird eine projektiere Doppelhaushälfte der Hanse Haus QNG-PLUS Line 38-136, fast fertig, angeboten.
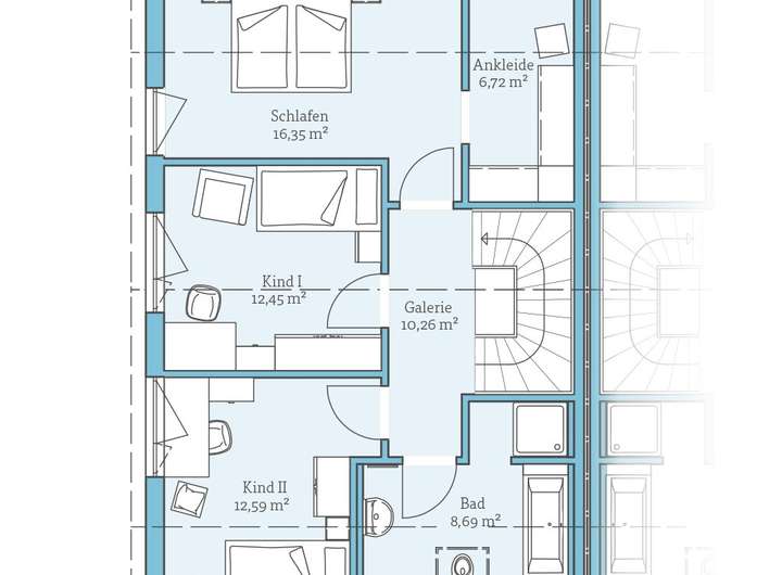
Die Immobilie ist seriell vorgeplant und ermöglicht dadurch einen Preisvorteil von bis zu 10 %.
Die Doppelhaushälfte ist im Rahmen der seriellen Planung optional bedingt anpassbar.
Bei der Ausstattung können Ihre Wünsche abgestimmt werden.
Aufgrund der seriellen Vorplanung ist der Grundriss unveränderbar.
Dieses Konzept vereint Planungssicherheit, hochwertige Bauqualität und nachhaltige Energietechnik – ideal für Familien oder Paare, die moderne Wohnarchitektur mit maximaler Effizienz suchen.
Greven: 136 m² Doppelhaushälfte QNG-PLUS – seriell geplant mit 10 % Preisvorteil
48268 Greven
Die vollständige Adresse der Immobilie erhalten Sie vom Anbieter.
Auf Karte anzeigen
Die vollständige Adresse der Immobilie erhalten Sie vom Anbieter.
Finanzierungszertifikat
In nur zwei Minuten zu Ihrem persönlichen Finanzierungszertifkat.
Infos
| Haustyp | Doppelhaushaelfte |
|---|---|
| Etagenzahl | 2 |
| Wohnfläche ca. | 122 m2 |
| Nutzfläche | 136 m2 |
| Grundstücksfläche | 432 m2 |
| Zimmer | 6 |
| Schlafzimmer | 3 |
| Badezimmer | 1 |
Kosten
| Kaufpreis |
532.799 € |
|---|---|
| Provision | Nein |
Finanzierungsrechner:
Kaufpreis:
600.000 €
Eigenkapital:
600.000 €
Monatliche Rate
0 €
Effektiver Jahreszins
0 %
Sollzinsbindung
10 Jahre
Bausubstanz & Energieausweis
| Baujahr | 2026 |
|---|---|
| Bauphase | Haus in Planung (projektiert) |
| Objektzustand | Erstbezug |
| Qualität der Austattung | Gehoben |
| Heizungsart | Fußbodenheizung |
| Wesentliche Energieträger | Strom |
Beschreibung des Objekts
Ausstattung
QNG-PLUS zertifizierbar
• Seriell vorgeplant – bis zu 10 % Preisvorteil
• Inklusive PV-Anlage mit Speicher (modellabhängig optional ergänzbar)
• Effiziente Luft-Wasser-Wärmepumpe
• Fußbodenheizung
• 3-fach-Isolierverglasung
• Kontrollierte Wohnraumlüftung mit Wärmerückgewinnung
• Elektrische Rollläden
• Bodengleiche Dusche
• Hochwertige Elektro- und Sanitärausstattung
• Festpreis- und Bauzeitgarantie
Lage
• Ruhige, familienfreundliche Wohnlage
• Einkaufsmöglichkeiten, Schulen, Kitas und Freizeitangebote in kurzer Distanz
• Gute Verkehrsanbindung
• Schnelle Wege nach Greven, Münster, Emsdetten, Flughafen FMO
• Ideales Umfeld für Familien, Paare und Mehrgenerationenwohnen
Sonstige Angaben
• Grundstücksverkauf über Kooperationspartner
• Hausberatung, Planung und Projektbegleitung durch Hanse Haus
• Unterstützung von A wie Anfangen bis Z wie Zuhause
• Beratung zu Fördermöglichkeiten (KfW, QNG)
• Projektiertes Haus – Ausstattung flexibel anpassbar
• Nachhaltiges, wertstabiles Baukonzept
Ihre nächsten Schritte
1. Vollständiges Exposé anfordern
2. Grundstücks- und Bebauungsdetails klären
3. Beratungstermin zur Doppelhaushälfte sichern
4. Finanzierung und Fördermittel prüfen
5. Ausstattung und Optionen abstimmen
6. Notartermin Grundstück und Vorvertrag Hanse Haus
7. Projektstart mit Festpreis- und Bauzeitgarantie
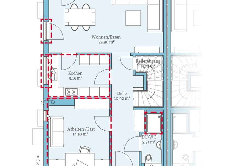
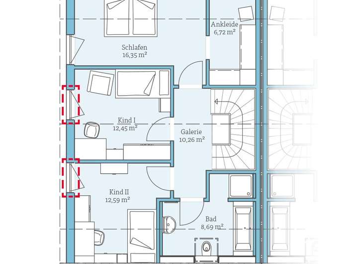
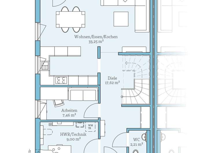
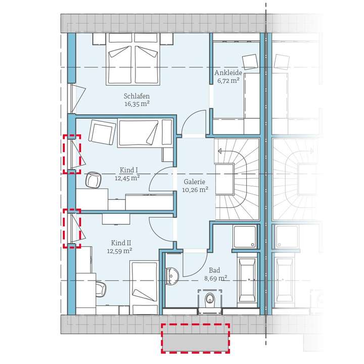
Grundriss
fertighaus-doppelhaus-38-136-e
>
>
fertighaus-doppelhaus-38-136-e
>
>
fertighaus-doppelhaus-38-136-d
>
>
fertighaus-doppelhaus-38-136-d
>
>
Adresse
48268 Greven
Interessante Orte
Preis- und Lageinformationen
Preistrend für Bestandsimmobilien in Greven