Dieses charmante Wohn- und Geschäftshaus im Herzen von Sankt Englmar vereint touristisches Potenzial mit bayerischer Authentizität ideal für Investoren, Gastronomen oder Betreiber individueller Ferienunterkünfte.
Im Erdgeschoss befindet sich eine vollständig eingerichtete Gastwirtschaft mit Gastraum, Kachelofen, Schankanlage, Lüftung, Soundsystem und Gastronomieküche inklusive Kühlzellen, Spülmaschine und Lagermöglichkeiten. Eine überdachte Terrasse mit Markise sowie ein eigener Getränkekeller mit Fassanschluss und Außenzugang runden das Gastronomiekonzept ab. Die Einrichtung ist im original bayerischen Stil gehalten und vollständig vorhanden einer kurzfristigen Inbetriebnahme steht nichts im Wege.
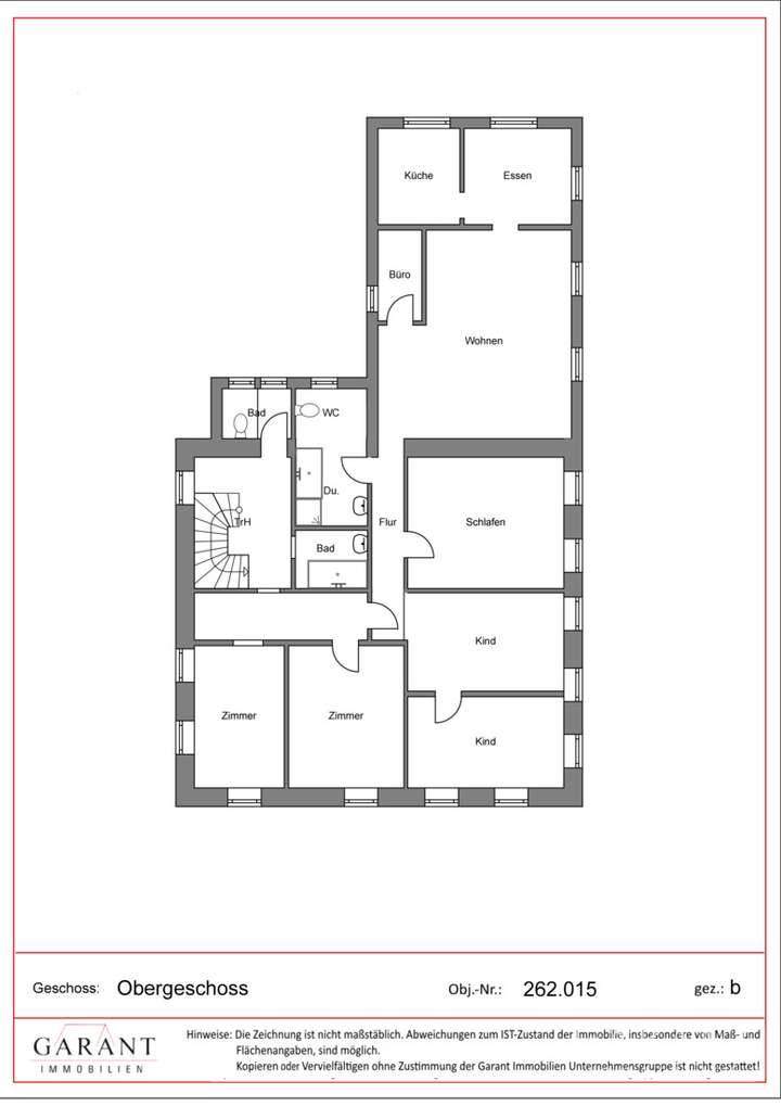
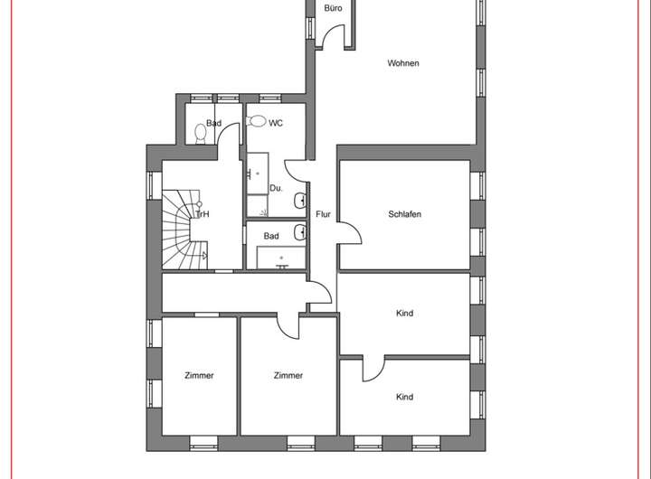
Im Obergeschoss befindet sich eine großzügige Wohnung mit ca. 150 qm Wohnfläche, zwei Bädern, Holzofen im Wohnzimmer sowie zusätzlichem Stauraum im Dachboden. Die Fläche eignet sich ideal zur Eigennutzung, als Ferienwohnung oder zur Unterbringung von Personal oder Gästen.
Besonders hervorzuheben ist die unmittelbare Nähe zum touristischen Besuchermagneten Xperium, das ganzjährig zahlreiche Tagesgäste anzieht. Laut Eigentümer wurde die Umnutzung als AirBnB bereits mit der Gemeinde abgestimmt eine ideale Ausgangslage für eine gewerbliche oder teilmöblierte touristische Nutzung.
Ein Objekt mit Charakter, Geschichte und Perspektive in bester Lage des Luftkurorts Sankt Englmar.
Ehemalige Gastwirtschaft mit Wohnung - AirBnB & Gastronomie möglich - direkt beim Xperium!
94379 Sankt Englmar
Die vollständige Adresse der Immobilie erhalten Sie vom Anbieter.
Auf Karte anzeigen
Die vollständige Adresse der Immobilie erhalten Sie vom Anbieter.
Finanzierungszertifikat
In nur zwei Minuten zu Ihrem persönlichen Finanzierungszertifkat.
Infos
| Haustyp | Sonstige |
|---|---|
| Etagenzahl | 4 |
| Wohnfläche ca. | 150 m2 |
| Nutzfläche | 144 m2 |
| Grundstücksfläche | 472 m2 |
| Bezugsfrei ab | sofort |
| Zimmer | 6,5 |
| Badezimmer | 2 |
| Garage/Stellplatz | Außenstellplatz |
| Anzahl Garage/Stellplatz | 2 |
Kosten
| Kaufpreis |
220.000 € |
|---|---|
| Provision |
3,57 % inkl. ges. MwSt. Die Maklercourtage für den Käufer beträgt 3 % aus dem Kaufpreis zuzüglich der gesetzlichen MwSt., somit gesamt 3,57 %. |
Finanzierungsrechner:
Kaufpreis:
600.000 €
Eigenkapital:
600.000 €
Monatliche Rate
0 €
Effektiver Jahreszins
0 %
Sollzinsbindung
10 Jahre
Bausubstanz & Energieausweis
| Baujahr | 1961 |
|---|---|
| Letzte Sanierung | 1984 |
| Bauphase | Haus fertig gestellt |
| Objektzustand | Renovierungsbedürftig |
| Qualität der Austattung | Einfach |
| Heizungsart | Nachtspeicherofen |
| Wesentliche Energieträger | Strom |
| Energieausweis | liegt vor |
| Energieausweistyp | Verbrauchsausweis |
| Energieverbrauchskennwert | 53,5 kWh/(m²*a) |
| Energieeffizienzklasse | B |
53,5
kWh/(m²*a)
Energieeffizienzklasse B
- A+
- A
- B
- C
- D
- E
- F
- G
- H
- 0
- 25
- 50
- 75
- 100
- 125
- 150
- 175
- 200
- 225
- >250
Beschreibung des Objekts
Ausstattung
Wohnung im Obergeschoss (ca. 150 qm Wohnfläche):
* Holzofen im Wohnzimmer
* zwei Bäder (eine Dusche, zwei Badewannen, ein Bidet)
* großzügiger Dachboden mit zwei abgetrennten Lagerräumen
Ehemalige Gastwirtschaft (Erdgeschoss, ca. 144 qm zzgl. Terrasse):
* komplett ausgestatteter Gastraum mit aktiv steuerbarer
Lüftung, Kachelofen, Schankanlage, Soundsystem
* Gastro-Küche mit Ofen, Fritteuse, Industriespülmaschine,
Abzug, Arbeitsflächen und zwei großen Kühlzellen
* Getränkekeller mit Fassanschluss - praktischer Außenzugang
* Außenbewirtung auf der Terrasse mit Markise, Lagerraum darunter
* Flüssiggastank vorhanden
* tolle Außenbeleuchtung
* voll möbliert im original bayerischen Stil
Lage
Das Anwesen liegt zentral im Ortskern von Sankt Englmar, in unmittelbarer Nachbarschaft zum beliebten Mitmach-Museum Xperium, das jährlich tausende Familien und Ausflügler anzieht. Der Standort bietet eine ideale Sichtbarkeit, fußläufige Erreichbarkeit sämtlicher Einrichtungen des Kurorts und ist sowohl für touristische als auch gewerbliche Nutzung hervorragend geeignet.
Sonstige Angaben
Energieverbrauchsausweis Energiekennwert: 53,50 kWh/(qm*a) Energieeffizienz: Klasse B (kl.75) Heizung: Nachtspeicheröfen mit Strom Baujahr laut Energieausweis: 1961
Laut Auskunft des Eigentümers ist mit der Gemeinde bereits abgestimmt, dass eine Nutzung als AirBnB oder touristische Unterkunft zulässig ist. In Kombination mit dem voll ausgestatteten Gastronomiebereich bietet sich ein hohes wirtschaftliches Potenzial für Betreiber, Investoren oder Entwickler. Außerdem ist laut Gemeinde, ein Anschluss an das Fernwärmenetz geplant. Die Immobilie ist nicht vermietet und bezugsfrei.
Grundriss
Plan Wohnung
>
>
Adresse
94379 Sankt Englmar
Interessante Orte
Preis- und Lageinformationen
Preistrend für Bestandsimmobilien in Sankt Englmar