EVOLUTION 136 fasziniert nicht nur mit seinen beiden schicken Satteldach-Varianten mit 38° Dachneigung und 100 cm
Kniestock oder 25° Satteldach und 160 cm Kniestock, sondern es hat noch einiges mehr zu bieten. Denn auch mit dem
eleganten Walmdach, dem schicken Pultdach oder dem modernen Flachdach mit Attika macht es eine ausgezeichnete
Figur. Eines haben aber wieder alle gemeinsam: fantastische Architektur, maximalen Wohngenuss und unendlich viele
Design-Möglichkeiten.
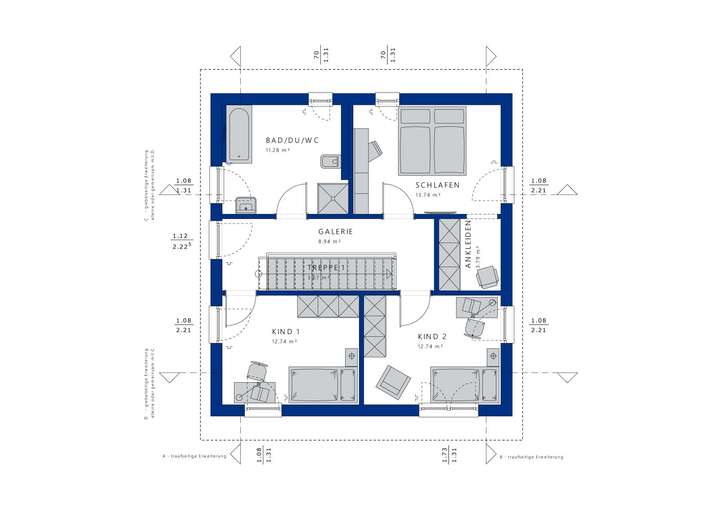
Auch innen bietet die moderne Grundrissgestaltung alles, was das Herz begehrt. Beide Geschosse begeistern durch
eine äußerst intelligente Raumaufteilung, die perfektes Wohnen und Arbeiten im Erdgeschoss mit herrlich großzügigen
Individualräumen im Obergeschoss vereint. Ein besonderes Highlight ist die geradläufige Treppe, die selbst die Diele zu
etwas ganz Besonderem macht.
Exklusives Grundstück + Haus! Neu in der Vermarktung!
26135 Oldenburg (Oldenburg)
Die vollständige Adresse der Immobilie erhalten Sie vom Anbieter.
Auf Karte anzeigen
Die vollständige Adresse der Immobilie erhalten Sie vom Anbieter.
Finanzierungszertifikat
In nur zwei Minuten zu Ihrem persönlichen Finanzierungszertifkat.
Infos
| Haustyp | Einfamilienhaus |
|---|---|
| Etagenzahl | 2 |
| Wohnfläche ca. | 136 m2 |
| Grundstücksfläche | 450 m2 |
| Zimmer | 5 |
Kosten
| Kaufpreis |
495.000 € |
|---|
Finanzierungsrechner:
Kaufpreis:
600.000 €
Eigenkapital:
600.000 €
Monatliche Rate
0 €
Effektiver Jahreszins
0 %
Sollzinsbindung
10 Jahre
Bausubstanz & Energieausweis
| Baujahr | unbekannt |
|---|
Beschreibung des Objekts
Ausstattung
Unsere Bien-Zenker Häuser werden hier in langjähriger Qualität "zur Ausstattung fertig" angeboten. Dazu gehören z. B.:
Außenwände im KFW 40 Energieeffizienzstandard
3-fach-verglaste Fenster im KFW 40 Energieeffizienzstandard
elektrische Alu-Rollläden gedämmt im EG und OG inkl. Smart Home-Steuerung
neueste Wohlfühlklimaheizung Plus - mit kontrollierter Be- und Entlüftung und Wärmerückgewinnung
Kühlfunktion für die warmen Tage im Jahr
Touchscreen, Einzelraumregelung und App-Steuerung
Bodenplatte
Um sich Ihren Traum zu verwirklichen, dürfen Sie noch den letzten Schliff anlegen:
Die Malerarbeiten, Bodenbelagsarbeiten, Innentüren und Sanitärobjekte fehlen noch zum Glück. Auf Anfrage biete ich Ihnen diese Gewerke natürlich gerne noch mit an.
Abschließend muss die Außenanlage noch erstellt werden.
inkl. Bodengutachten
inkl. BlowerDoorTest
zzgl. Baunebenkosten
Möchten Sie Eigenleistung einbringen und dadurch Geld sparen, wir können auch einzelne Gewerke aus unserer umfassenden Leistung rausnehmen.
Sprechen Sie mich an...
Lage
Oldenburg ist eine charmante Stadt im Nordwesten Deutschlands. Sie zeichnet sich durch ihre historische Altstadt mit malerischen Gassen, schönen Parks und grünen Alleen aus. Die Stadt hat eine lebendige Kulturszene, viele Museen und Galerien sowie eine Vielzahl von Restaurants und Cafés, die zum Verweilen einladen. Oldenburg ist auch bekannt für seine Fahrradfreundlichkeit und die Nähe zur Nordsee. Insgesamt eine Stadt mit viel Charme und Lebensqualität.
Sonstige Angaben
Im angegebenen Preis für dieses projektierte Haus ist das Grundstück, welches Sie direkt von Dritten erwerben, bereits enthalten.
Das Angebot ist unverbindlich und freibleibend.
Preis inkl. Bodenplatte, Grundinstallation, Architekt und Wohlfühl-Klima-Heizung+ mit kontrollierter Wohnraumbe- und Entlüftung. Exklusive der Baunebenkosten wie z.B. Hausanschlüsse, Außenanlagen, Notar- und Gerichtskosten.
Es wurde "Zur Ausstattung fertig" gerechnet.
Mit der Ausbauvariante "Zur Ausstattung fertig" können Sie Ihre handwerklichen Fähigkeiten voll ausspielen, wenn Sie die finalen Ausbauarbeiten selbst erledigen.
Im Preis enthalten sind:
-Bien-Zenker Haus außen fertig mit Haustür und Fenstern sowie innen mit Treppe
-Rollläden mit stabilen Aluminium-Lamellen
-Bodenplatte gemäß aktueller Bau- und Leistungsbeschreibung
-30 Jahre Gewährleistung auf die Grundkonstruktion Ihres Bien-Zenker Hauses
-5 Jahre Gewährleistung nach BGB auf die übrigen Bauleistungen Ihres Bien-Zenker Hauses
-Dämmpaket und Beplankung für Außenwände, Innenwände, Dach im ausgebauten Bereich und oberste Geschossdecke
-Elektroinstallation mit Schaltern und Steckdosen
-Sanitär-Rohinstallation in den Wänden
- Heizungsanlage
-Lüftungsanlage als kontrollierte Wohnraum Be- und Entlüftung inklusive Wärmerückgewinnung
-Sanitär-Zwischenverrohrung bis zum Technikraum
-Estrich
Nicht enthalten sind:
-Malerarbeiten wie spachteln und tapezieren
-Wand- und Bodenbeläge
-Innentüren
-Sanitäre Einrichtungen
Gerne bieten wir Ihnen das Haus auch als "Schlüsselfertig" (Bezugsfertig) an.
Abbildungen und Grundrisse zeigen Extras!
Gerne planen wir den Hausbau gemeinsam mit Ihnen auch auf Ihrem bereits vorhandenen Grundstück.
In einem ausführlichen Beratungsgespräch ermitteln wir für Sie gerne eine detaillierte Gesamtkostenaufstellung.
Grundriss
73455-4005-1-g
>
>
73456-4005-2-g
>
>
Adresse
26135 Oldenburg (Oldenburg)
Interessante Orte
Preis- und Lageinformationen
Preistrend für Bestandsimmobilien in Osternburg