Dieses gepflegte Zweifamilienhaus aus dem Jahr 1977 liegt in ruhiger Lage im Ortsteil Oberaden von Bergkamen. Mit insgesamt ca. 198 m² Wohnfläche, aufgeteilt in ca. 125 m² im Erdgeschoss und ca. 78 m² im Dachgeschoss, bietet es großzügigen Raum für Familien oder ein Mehrgenerationenwohnen. Das weitläufige Grundstück von 830 m² besticht durch einen gepflegten Gartenbereich und eine im Jahr 2019 erneuerte Terrasse. Die Immobilie überzeugt durch kontinuierliche Modernisierungen und gepflegte Ausstattung. Das Dach wurde 2016 vollständig erneuert, die Fassade erhielt 2015 einen frischen Anstrich, und die Fenster wurden im Dachgeschoss 2009 sowie im Erdgeschoss 2015 ausgetauscht. Die Gasheizung aus dem Jahr 2007 ist in einem gutem Zustand und bietet eine zuverlässige Wärmeversorgung für beide Wohneinheiten. Für Fahrzeuge stehen insgesamt drei Garagen zur Verfügung, zwei direkt im Haus und eine weitere daneben. Aktuell ist die Wohnung im Erdgeschoss vermietet, während das Dachgeschoss vor Kurzem frei geworden ist. Somit haben Sie flexible Möglichkeiten, das Dachgeschoss selbst zu nutzen oder neu zu vermieten. Dieses Zweifamilienhaus vereint Wohnkomfort, gepflegte Ausstattung und vielseitige Nutzungsmöglichkeiten auf einem großzügigen Grundstück und eignet sich sowohl für Familien, Mehrgenerationenhaushalte als auch als Kapitalanlage.
Attraktives Zweifamilienhaus in ruhiger Lage von Bergkamen-Oberaden!
59192 Bergkamen
Die vollständige Adresse der Immobilie erhalten Sie vom Anbieter.
Auf Karte anzeigen
Die vollständige Adresse der Immobilie erhalten Sie vom Anbieter.
Finanzierungszertifikat
In nur zwei Minuten zu Ihrem persönlichen Finanzierungszertifkat.
Infos
| Haustyp | Einfamilienhaus |
|---|---|
| Etagenzahl | 2 |
| Wohnfläche ca. | 198 m2 |
| Grundstücksfläche | 830 m2 |
| Bezugsfrei ab | nach Vereinbarung |
| Zimmer | 7 |
| Schlafzimmer | 2 |
| Badezimmer | 3 |
| Garage/Stellplatz | Garage |
| Anzahl Garage/Stellplatz | 3 |
Kosten
| Kaufpreis |
449.000 € |
|---|---|
| Provision |
3.57 % inkl. gesetzl. MwSt. |
Finanzierungsrechner:
Kaufpreis:
600.000 €
Eigenkapital:
600.000 €
Monatliche Rate
0 €
Effektiver Jahreszins
0 %
Sollzinsbindung
10 Jahre
Bausubstanz & Energieausweis
| Baujahr | 1977 |
|---|---|
| Letzte Sanierung | 2025 |
| Heizungsart | Zentralheizung |
| Wesentliche Energieträger | Gas |
| Energieausweis | liegt vor |
| Energieausweistyp | Bedarfsausweis |
| Energieverbrauchskennwert | 170,2 kWh/(m²*a) |
| Energieeffizienzklasse | F |
170,2
kWh/(m²*a)
Energieeffizienzklasse F
- A+
- A
- B
- C
- D
- E
- F
- G
- H
- 0
- 25
- 50
- 75
- 100
- 125
- 150
- 175
- 200
- 225
- >250
Beschreibung des Objekts
Ausstattung
Teilklima
Laminat
Fliesen
Vollunterkellert
Kamin
Lage
Diese Immobilie befindet sich im Ortsteil Oberaden von Bergkamen, einer ruhigen und beliebten Wohngegend. Einkaufsmöglichkeiten für den täglichen Bedarf, Schulen und Kindergärten sind schnell erreichbar. Die Anbindung an öffentliche Verkehrsmittel ist gut, und die Autobahnen A1 und A2 sind in kurzer Zeit erreichbar, sodass Pendler die umliegenden Städte bequem erreichen können. Gleichzeitig bietet die Lage eine ruhige Wohnatmosphäre mit naturnahen Bereichen in der Umgebung.
Sonstige Angaben
Der Makler-Vertrag mit uns kommt durch die Beauftragung der Maklertätigkeit in Textform (z.B. E-Mail mit Bestätigung der gewollten Inanspruchnahme) zustande. Die Höhe der Courtage richtet sich nach den ab dem 23.12.2020 in Kraft getretenen gesetzlichen Regelungen zur Teilung der Maklercourtage. Hiernach wird die Courtage regelmäßig für beide Parteien (Eigentümer und Käufer) in Höhe von 3 % zuzüglich jeweils geltender Mehrwertsteuer von 19%, also insgesamt 3,57 % des Kaufpreises einschließlich Mehrwertsteuer bei notariellem Vertragsabschluss verdient und fällig. Die Höhe der Bruttocourtage unterliegt einer Anpassung bei Steuersatzänderung. Grunderwerbssteuer, Notar- und Gerichtskosten trägt der Käufer. Alle Angaben sind ohne Gewähr und basieren ausschließlich auf Informationen, die uns von unserem Auftraggeber übermittelt wurden. Wir übernehmen keine Gewähr für die Vollständigkeit, Richtigkeit und Aktualität dieser Angaben. Zwischenverkauf bleibt vorbehalten. Sollte das von uns nachgewiesene Objekt bereits bekannt sein, teilen Sie uns dieses bitte unverzüglich mit. Die Weitergabe dieses Exposees an Dritte ohne unsere Zustimmung löst gegebenenfalls Courtage- bzw. Schadensersatzansprüche aus. Im Übrigen gelten die beigefügten allgemeinen Geschäftsbedingungen für die Rechtsbeziehung zwischen Ihnen und der EV Unna Immobilien GmbH (Lizenzpartner der Engel & Völkers Residential GmbH).
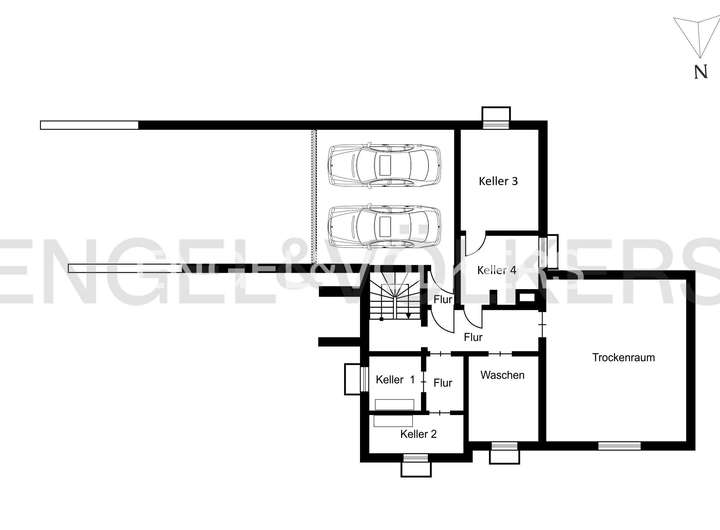
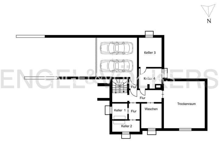
Grundriss
Erdgeschoss
>
>
Obergeschoss
>
>
Kellergeschoss
>
>
Adresse
59192 Bergkamen
Interessante Orte
Preis- und Lageinformationen
Preistrend für Bestandsimmobilien in Bergkamen