Dieses Einfamilienhaus ist weit mehr als nur ein Ort zum Wohnen – es ist ein Ort zum Ankommen, zum Aufatmen und zum Glücklichsein. Mit seiner durchdachten Architektur, seiner hochwertigen Ausstattung und der charmanten Einliegerwohnung vereint es alles, was modernes Familienleben ausmacht: Raum, Ruhe und Geborgenheit.
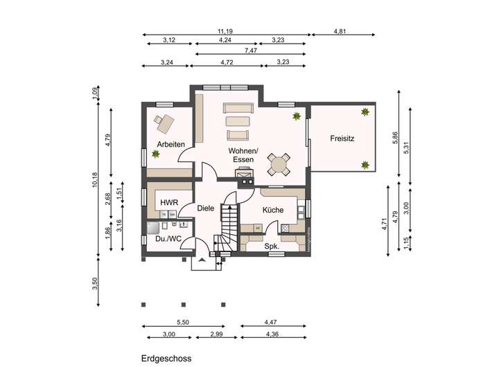
Schon beim Betreten des Hauses spürt man die Großzügigkeit und Harmonie der Räume. Der helle Wohn- und Essbereich im Erdgeschoss bildet das Herzstück – hier trifft man sich, lacht, isst gemeinsam und genießt die kleinen Momente des Alltags. Die großen Fenster lassen Licht herein und führen direkt hinaus auf die Terrasse, wo man an sonnigen Tagen die warme Luft genießen kann. Die angrenzende Küche fügt sich harmonisch in das Wohnkonzept ein und lädt zum gemeinsamen Kochen und Verweilen ein. Der Hauswirtsschaftsraum auf dieser Ebene sorgt für kurze Wege im Alltag. Ein Duschbad sowie ein ruhiges Arbeitszimmer runden diese Etage perfekt ab.
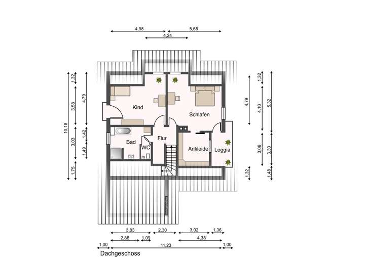
Im Dachgeschoss wird es privat und behaglich. Das großzügige Schlafzimmer mit begehbarer Ankleide ist ein Rückzugsort, der jeden Tag mit einem Gefühl von Ruhe und Komfort beginnen lässt. Ein Kinder- und Jugendzimmer sowie ein Badezimmer ergänzen diese Etage.
Die separate Einliegerwohnung im Kellergeschoss eröffnet neue Möglichkeiten – ob für erwachsene Kinder, Gäste oder als eigener Rückzugsort. Auf etwa 57 m² bietet sie einen hellen Wohnbereich, Schlafzimmer, eine eigene Küche und ein Badezimmer – unabhängig, gemütlich und mit eigenem Eingang.
Zusätzlich verfügt das Kellergeschoss noch über mehrere Nutzräume. Eine Garage, mit direktem Zugang ins Haus, bietet Schutz und Komfort für Ihr Fahrzeug und unterstreicht den durchdachten Charakter des gesamten Hauses.
Dieses Haus ist kein bloßes Bauwerk – es ist ein Stück Lebensraum, der Stil, Wärme und Qualität in sich vereint. Wer das Besondere sucht, wird hier ankommen.
***Rarität: Wohntraum in Bestlage***
56355 Nastätten
Die vollständige Adresse der Immobilie erhalten Sie vom Anbieter.
Auf Karte anzeigen
Die vollständige Adresse der Immobilie erhalten Sie vom Anbieter.
Finanzierungszertifikat
In nur zwei Minuten zu Ihrem persönlichen Finanzierungszertifkat.
Infos
| Haustyp | Einfamilienhaus |
|---|---|
| Wohnfläche ca. | 229 m2 |
| Grundstücksfläche | 759 m2 |
| Zimmer | 6 |
| Badezimmer | 3 |
Kosten
| Kaufpreis |
450.000 € |
|---|---|
| Provision |
3,57% inkl. MwSt.
Käuferprovision |
Finanzierungsrechner:
Kaufpreis:
600.000 €
Eigenkapital:
600.000 €
Monatliche Rate
0 €
Effektiver Jahreszins
0 %
Sollzinsbindung
10 Jahre
Bausubstanz & Energieausweis
| Baujahr | 1994 |
|---|---|
| Heizungsart | Zentralheizung |
| Wesentliche Energieträger | Gas |
| Energieausweis | liegt vor |
| Energieausweistyp | Verbrauchsausweis |
| Energieverbrauchskennwert | 72,9 kWh/(m²*a) |
| Energieeffizienzklasse | B |
72,9
kWh/(m²*a)
Energieeffizienzklasse B
- A+
- A
- B
- C
- D
- E
- F
- G
- H
- 0
- 25
- 50
- 75
- 100
- 125
- 150
- 175
- 200
- 225
- >250
Beschreibung des Objekts
Ausstattung
-Einfamilienhaus mit Einliegerwohnung
-Einliegerwohnung ca. 57 m²
-Garage
-Terrasse im Erdgeschoss
-Balkon im Dachgeschoss
-Gasheizung aus 2015, Firma Viessmann
Lage
Das Haus steht in guter Wohnlage, in einem Wohngebiet am Stadtrand von Nastätten.
Schulen und Kindergarten sowie die Innenstadt mit ihren vielfältigen Einkaufsmöglichkeiten sind auch fußläufig gut erreichbar.
Nastätten an sich bietet eine perfekte Infrastruktur:
Alle Versorgungseinrichtungen wie Supermärkte, Einzelhandel, Ärzte, Fachärzte, Apotheken und Krankenhaus sowie Kindergärten und Schulen sind in Nastätten vor Ort.
Sonstige Angaben
Gefällt Ihnen unser Angebot? Dann zögern Sie nicht und melden sich bei uns.
Wir zeigen Ihnen das Anwesen in einem gemeinsamen Termin vor Ort und begleiten Sie bei den folgenden Schritten zum Kauf Ihres eigenen Zuhauses.
Sie haben Fragen zur Finanzierung oder suchen einen Finanzierungspartner? Auch hier stehen wir Ihnen gerne zur Seite.
Oder haben Sie gleichzeitig eine Immobilie zum Verkauf? Wir kümmern uns darum!
Wir haben dieses Exposé mit Sorgfalt und nach bestem Wissen erstellt. Das Angebot erfolgt freibleibend, alle Angaben beruhen auf uns erteilten Informationen von Dritten.
Zwischenverkauf und Irrtum bleiben vorbehalten.
Wir weisen darauf hin, dass vorhandene Grundrisse nicht maßstabsgetreu sind, Maße, Angaben und Details abweichen können. Für die Richtigkeit, Vollständigkeit und Aktualität der Angaben können wir keine Gewähr übernehmen, auch nicht für mögliche Folgenutzungen der Immobilie.
Die Funktionsfähigkeit der technischen Anlagen haben wir bestmöglich erfragt, können jedoch im Einzelfall hierfür keine Gewähr übernehmen.
Selbstverständlich erhalten Sie bei näherem Interesse die Möglichkeit, das Haus durch Experten Ihrer Wahl ausführlich prüfen und begutachten zu lassen. Für die Klärung Ihrer offenen Fragen stehen wir Ihnen gerne zur Verfügung.
Doch nicht die richtige Immobilie? Dann schauen Sie sich unser weiteres Angebot an: www.zimmermann-immobilien.eu
Grundriss
45105_754141_1985916_91-1167_G
>
>
45105_754141_1985918_91-1167_G
>
>
45105_754141_1985917_91-1167_G
>
>
Adresse
56355 Nastätten
Interessante Orte
Preis- und Lageinformationen
Preistrend für Bestandsimmobilien in Nastätten