Auf einer großzügigen Grundstücksfläche von 1.409 m² eröffnet sich Ihnen ein außergewöhnliches Entwicklungspotenzial in begehrter Lage von Weener. Das Areal beherbergt derzeit ein leerstehendes Mehrfamilienhaus und bietet ideale Voraussetzungen für eine Neubebauung nach Ihren individuellen Vorstellungen.
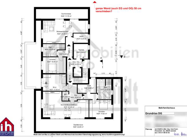
Bereits durch den bisherigen Eigentümer wurden erste Entwürfe für eine moderne Mehrfamilienhausbebauung erarbeitet:
Die Planungen sehen im Erd- und Obergeschoss jeweils zwei bis drei Zimmerwohnungen vor – optimal zugeschnitten auf die Nachfrage nach kompaktem, hochwertigem Wohnraum.
Das Dachgeschoss könnte mit zwei exklusiven Penthousewohnungen samt großzügigen Dachterrassen realisiert werden – mit Raum für Weitblick und moderne Wohnkultur.
Im Außenbereich stehen bis zu 15 Außenstellplätze zur Verfügung, die über eine ruhige Nebenstraße bequem erreichbar sind. Die zentrale Lage in unmittelbarer Nähe zum Stadtzentrum von Weener sorgt für kurze Wege zu Einkaufsmöglichkeiten, Schulen und Freizeitangeboten – ein starkes Argument für künftige Mieter oder Eigennutzer gleichermaßen.
Diese Planungen können Sie direkt übernehmen. Sollten Sie eine andere Inspiration haben, können Sie diese vorab beim Bauamt erfragen. Verwirklichen Sie hier Ihr eigenes Konzept und gestalten Sie Ihr maßgeschneidertes Investmentprojekt – von der Kapitalanlage bis zum hochwertigen Wohnensemble.
Ein Grundstück mit Zukunft – mitten in Weener, bereit für Ihre Vision!
Baugrundstück für MFH im Zentrum von Weener
26826 Weener
Die vollständige Adresse der Immobilie erhalten Sie vom Anbieter.
Auf Karte anzeigen
Die vollständige Adresse der Immobilie erhalten Sie vom Anbieter.
Finanzierungszertifikat
In nur zwei Minuten zu Ihrem persönlichen Finanzierungszertifkat.
Infos
| Vermarktungsart | Kaufen |
|---|---|
| Grundstücksfläche | 1.409 m2 |
| Empfohlene Nutzung | Mehrfamilienhaus |
| Verfügbar ab | nach Vereinbarung |
Kosten
| Miete pro Jahr |
380.000 € |
|---|---|
| Provision |
3,57 inkl. MwSt. |
Finanzierungsrechner:
Kaufpreis:
600.000 €
Eigenkapital:
600.000 €
Monatliche Rate
0 €
Effektiver Jahreszins
0 %
Sollzinsbindung
10 Jahre
Beschreibung des Objekts
Lage
Das Grundstück befindet sich direkt in Weener, einer Kleinstadt im Landkreis Leer in Niedersachsen. In unmittelbarer Nähe befinden sich verschiedene Einkaufsmöglichkeiten. Schulen und Kindergärten sind vor Ort. Auch die Anbindung an öffentliche Verkehrsmittel ist gut, sodass man schnell nach Leer oder Papenburg gelangen kann.
Weener selbst ist eine charmante Stadt mit einer historischen Altstadt und einer malerischen Lage an der Ems. Hier finden Bewohner eine Vielzahl an Geschäften, Restaurants und kulturellen Einrichtungen. Das Stadtbild wird geprägt von liebevoll restaurierten Fachwerkhäusern und gemütlichen Plätzen, auf denen man verweilen kann. Auch die Umgebung lädt zu ausgedehnten Spaziergängen oder Radtouren ein.
Die Region um Weener ist bekannt für ihre idyllische Landschaft und die Nähe zur Nordsee. Die grünen Deichlandschaften und die zahlreichen Wasserwege bieten vielfältige Freizeitmöglichkeiten für Naturliebhaber. Zudem sorgen die maritimen Einflüsse für ein angenehmes Klima, das zu entspannten Stunden im Freien einlädt. In dieser Region fühlt man sich fernab von Hektik und Stress, und kann die Schönheit der Natur in vollen Zügen genießen.